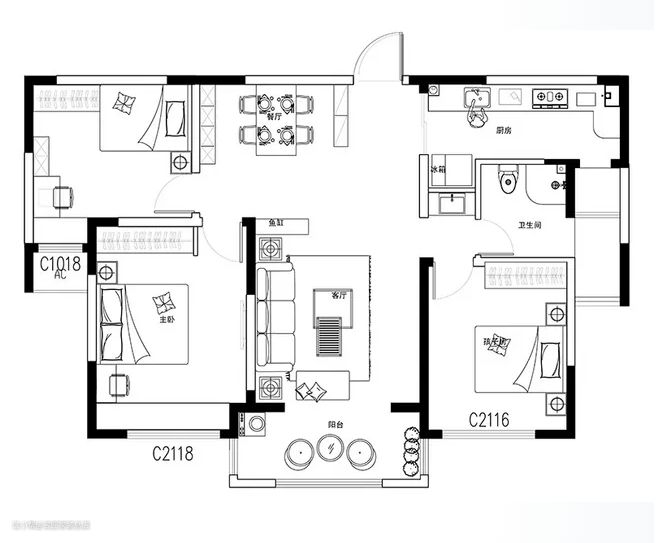
设计亮点

装修前
1.入户鞋柜,敲了部分厨房非承重墙用来做鞋柜,显得空间较大,入户门对客厅缺乏隐私性,设置简单柜体玄关,对于客厅隐私有保护。 2.卧室空间合理设计储物空间,色彩搭配选着低调饱和的色系显得格外温馨舒适,充分利用了空间,让空间依然秩序井然。
装修后
客餐厅一体化,为休闲空间和家人交流空间营造更融恰的氛围,厨房做开放式设计,动线合理,线条流畅
客厅


设计亮点
客厅作为家的中心,采用了大量的白色元素。白色的墙面和天花板,搭配浅色的大理石地板,营造出简约而舒适的空间氛围。舒适的浅驼色的皮质沙发,摆放在靠墙的位置,搭配深色的狗狗摆件营造温馨的氛围,沙发的设计方便客人休息和交流
餐厅

设计亮点
是一个岛台家餐桌的设计,大理石质感的洗手搞出餐桌台面,富有设计和品质的家具在灯光的映衬下熠熠生辉具有光影灵动之美,在此可享受女主人烹饪的甜点,
主卧

设计亮点
主卧室以白灰色为主色调,搭配浅灰色床头搭配浅驼色的背景墙与客厅风格一致,浅色的被子营造出宁静、舒适的睡眠环境。床头两侧分别放置一个小摆件,为房间增添一份清新与活力。窗帘选择了深色布料,与床头相呼应,同时也为房间带来一丝沉稳的气息。
次卧

设计亮点
飘窗靠墙摆放的小台灯很有设计感,墙旁边的画和小凳子旁边的花都显得这个房间格外温馨,白色的兔子是一个可爱的姿势端着一个盘子,可以摆放简约的摆件,铺在地上的粉色的圆形地毯十分舒适,营造一个娱乐的区域。
卫生间

设计亮点
卫生间采用干湿分离设计,洗漱区与淋浴区互不干扰,不仅方便打扫还能增加整体空间的层次感。
