
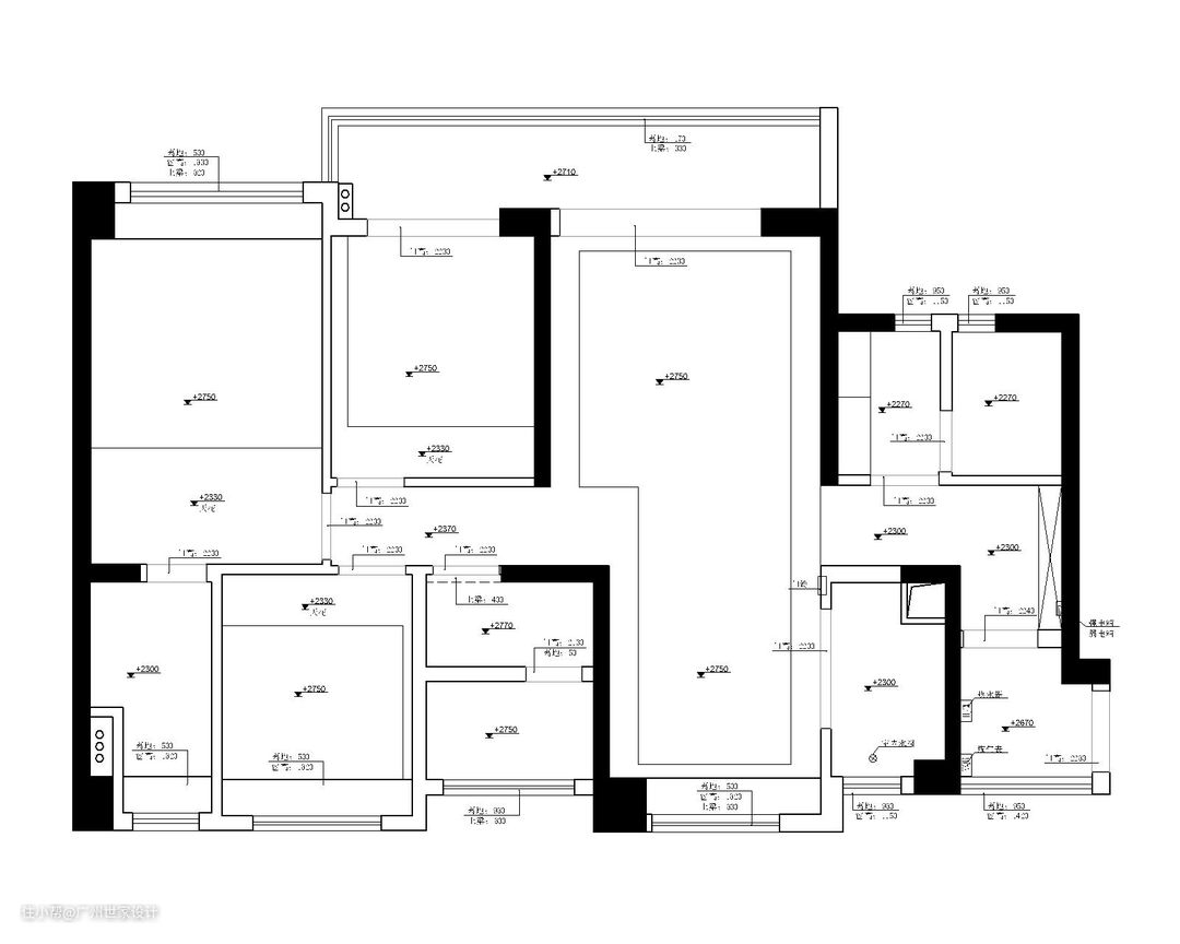
装修前
有了孩子之后,总是为孩子考虑更多。屋主一家三代同堂,为了孩子能更好地就学,购置了这套165平米的学区房,小区周边有幼儿园、小学、中学,孩子的成长阶段中能一直有父母的陪伴;也考虑到离小区不远就是滨江公园,方便老人晨练和散步,享受老年生活。 由于家里人口多,屋主希望公区能更加宽敞开阔,全家人都很喜欢看剧、看电影,作为共享空间,客厅要有影视级的观影效果,闲暇时可以一家人一起看电影,拉近彼此的距离。留出一个房间,作为兼具衣物收纳及办公学习的多功能空间,方便屋主日常处理工作。
装修后
■ 屋主诉求:除了卫生间不做改动,屋主夫妻希望新家能有一个全新的呈现。屋主不喜欢封闭式厨房,认为能够和家人、朋友互动才是最快乐的下厨方式。全屋的设计要以实用为主,收纳、娱乐、音影、办公、健身功能是刚需,风格要简约利落,崇尚极简美学。


设计亮点
1.重新规划空间布局,将分裂的空间融合,优化公区的动线,以最小的改动达到功能最大化; 2.打通厨房与餐厅,做餐厨一体化设计,大U型布局提高厨房利用率,以餐桌为界分割中西厨; 3.阳台纳入客厅,扩大客厅空间,公区更加宽敞明亮; 4.拆除小房间的隔断墙,空间合二为一,打造L型衣柜+桌子一体式布局。

软装搭配
屋主夫妻是电影的狂热爱好者,闲暇时就喜欢宅在家看电影放松心情,受到父母的熏陶,孩子也喜欢看动漫和一些知识类的科普片,而老人却喜欢看戏曲、听评书,三代人三种不同品味,如何才能完美地平衡?针对屋主极高的观影要求,我们选择海信电视为其定制“全屋家庭影院”。 海信的激光电视、液晶电视、艺术电视、移动智慧屏、电竞显示屏及投影仪无一例外,都将超清的画质、鲜亮的色彩、品质的声音等做到了影视级的效果,让使用者在家就能享受影院般的体验,身临其境;而这一系列产品也能完美解决不同户型、不同面积、不同年龄阶段的观影需求。


设计亮点
入户玄关窄长,不适宜有过多的色彩变化,大面积的白色可以包容一切缺陷,让整个空间明亮轻盈起来。右侧墙面做一门到顶玄关柜,解决入户鞋包、钥匙等物品的收纳问题,玄关尽头的装饰画简洁富有艺术气息,为空间注入活力。



设计亮点
屋主追求极简的生活方式,大面积的白留出更多想象空间,赋予空间纯粹、自然的生命力,无主灯设计呼应主题,不同的灯光适配不同的场景,恰到好处的灯光运用,客厅随之开阔起来,通过光影明暗与色彩深浅的对比,使空间层次更丰富有趣。
软装搭配
为了打造影视级的观影体验,我们在细节设计上花了更多的精力: 🏷 关于沙发 四人位的弧形沙发搭配单人小沙发,自由舒适不拥挤,全家人一起观影时形成一个半包围的局面,坐在边边的人也能很好地看清电视里播放的画面,不让角度影响观影体验。 🏷 关于灯光 吊顶四个角及中间区域共有6个防眩射灯,作为客厅的主照明,沙发背景墙造型嵌入灯带,搭配两盏壁灯营造氛围,沙发旁的落地灯是夜晚的最佳搭档,电视上方的2个射灯,光束角45°,观影更清晰,都选择4000k色温,明亮不刺眼,根据不同影片选择不同灯光搭配效果更佳。 🏷 关于电视 环境渲染到位了,硬件设施也不能马虎。电视墙背景空间充足,尽可能选择大屏幕,海信激光电视100L8K实现了屋主对客厅电视的想法。其拥有100英寸的轻薄巨幕,厚度却仅有20mm,挂上墙犹如壁画般与墙面无缝贴合,完美融入空间氛围,下方做壁挂电视柜放置主机,轻盈的质感让空间更显宽敞和大气。 海信激光电视100L8K对观影效果所追求的画质、声音、画幅都达到电影级的标准,LPU数字光学引擎可做到纳米级控光,以高色域、低色差、高色阶的极致表现,平滑细腻的呈现电影原片色彩。 并拥有IMAXEnhanced认证,以独有的DMR(数字原底翻版)领先技术,消除图像中不必要的颗粒和噪点,呈现接近满屏的画幅和超高清的4KHDR画质,将影院的高端视听体验延续到家庭娱乐中,却更加护眼,保护我们的视力。 全新定制哈曼卡顿音响系统,全系组合功率高达120W,7个喇叭3路功放,多种音效360°全息立体环绕,让人仿佛置身于拍摄现场,享受极尽震撼、真实的体验! 同时,海信激光电视100L8K还加入智能语音助手,无需遥控器,一声“小聚”即可解封双手,老人也能操作,最佳的声画效果,却匹配最简单的操作,无愧为“家庭观影最好的电视”。

设计亮点
开放式餐厨一体,将两个具有烟火气息的空间结合,表达一种简单闲适的生活状态。餐厨与客厅之间以简易折叠门隔断,符合燃气公司的通气要求,完全打开时不占用空间,引入了客厅的光线厨房更加通透明亮,同时增强区域间的互动属性,让下厨不再是一个人的事。 左侧为中厨,一日三餐蒸、炸、煎、炒游刃有余;右侧为西厨,烘焙、做咖啡、做饮料增添生活仪式感,而且与餐桌就是一个转身的距离,流畅高效的动线,在最好的时刻享受最好的美食。
软装搭配
餐桌选用深色木质长桌,厚朴的木质在白色的空间里起到点缀的作用,亚克力的桌腿赋予悬浮的视觉效果,带来一丝轻盈之感。



设计亮点
主卧延续整体的空间风格,背景墙点缀灰色,营造出空间的静谧感,又不失舒适。注重功能实用性,将衣帽收纳作为重要体现,满足屋主夫妻主要的衣物收纳需求。
软装搭配
睡前看一部电影,是屋主放松身心最有效的方式,将海信艺术电视放在床尾,私密的空间,可以尽情享受自己喜欢的电影。其带有可拆式落地支架,能够自由灵活地移动,随心摆置,无论躺在床上,还是坐在飘窗上都可以,为生活创造更多可能性。 选择艺术电视放主卧最重要的因素,是被外观及功能的设计吸引,海信艺术电视追求时尚极简设计,同时采用亲肤材质,触感温润,由内而外与主卧简约精致的质感相融合;其首创的AI人感交互数字艺术丰富居住者的生活,还拥有环境感知功能,与真实气象同频,便利又具有互动趣味。 海信艺术电视的“艺术”体现在各个方面,除去艺术的外观,还收纳了海量数字艺术画作,把家打造成梦幻画廊,足不出户就能欣赏各种精美的画,融入家居中氛围感满满,不仅是电视,更是点亮主卧空间艺术的装饰品。



设计亮点
独立的衣帽间作为主卧的收纳补充,L型动线衣柜+梳妆台一体深受女主人的喜爱,黑白的色彩搭配极简又纯粹,木地板自然温润光脚也不怕。 既是衣帽间也是书房,办公时梳妆台就作为办公桌,临窗办公光线明亮,累了还能眺望远景,让眼睛放松一下。
软装搭配
桌面放置海信电竞显示器,它拥有27寸超大屏显,97%DCI-P3高色域,QHD2560x1440分辨率和170Hz高刷新率,能够大幅度提高工作效率,同时物理防蓝光+DC调光技术,呵护双眸,在护眼的同时也不偏色。 在工作之余男主人也会打电竞感受竞技的乐趣,高色域、高分辨率和高刷新率给游戏体验带来极高的享受。海信电竞显示器外观精致,金属壳质感极佳,支架支持升降旋转,能够随手调节,避免了长时间同一姿势注视屏幕僵硬不适的问题。



设计亮点
次卧是老人的卧室,没有繁复的造型装饰,简洁利落,避免老人磕碰受伤。墙面以灰色点缀整个空间,与地面和顶部形成对比,凸显空间的层次感。
软装搭配
老人有自己年代的喜好,我们为老人新增了海信液晶电视U8H,当他们想看戏曲时可以回到自己的房间,安静地享受,也避免影响他人。 次卧面积不大,如果电视太厚会阻碍通行,海信液晶电视U8H薄如壁画,几乎可以达到无缝贴合墙面的效果,超薄无缝的设计就是为这个空间量身定制的。 海信液晶电视U8H定制178°黑曜屏,通过卓越的视角补偿,实现超广无衰减视角,不反光、漏光,正看侧看都没问题;结合智能环境光感功能,根据环境光的亮度和色温变化,实时调节画面的亮度与色温。 内部搭载信芯X画质芯片,实时分析与调控画面,重塑细节,让每一帧画面都有4K的精美画质;同时采用3.1.2多声道空间声场设计,配备全方位的出音单元,沉浸式体验真实、清晰的声像,让老人享受着美妙的声视觉进入梦乡。


设计亮点
屋主的孩子是男孩,对于飞行有很深的向往。儿童房设计以飞行为主题,墙面用山川和各种能够飞行的工具、鸟类的墙布装点,开阔的画面延伸出宽敞的视觉效果。通过榻榻米将飘窗台的面积利用上,提高空间利用率,床下抽屉式储物柜增加儿童房的收纳空间。
软装搭配
有趣舒适的睡眠环境,搭配上0有害蓝光护眼的海信Vidda投影仪,直接投屏在墙上,享受高品质的观影体验却不伤眼。其采用原生护眼科技过滤有害蓝光,同时自动感应人体活动,进入光源范围及时息屏并语音提示,保护孩子视力。 它的内核搭载海信自主研发的LPU三色激光引擎,在亮度、散斑抑制、色差控制等方面全维度升级,画质呈现极具冲击力。海信Vidda投影仪携手JBL定制了一套HiFi级音响系统,经由哈曼团队调校感受沉浸式影院体验,是投影也是音箱,享受视觉和听觉的盛宴。

设计亮点
卫生间洗手盆外置,缓解多人口家庭使用高峰期的压力,厚朴的木色调洗手柜,与餐厅相呼应。


设计亮点
洗衣机烘干机叠放嵌入阳台家政柜,从卫生间换下脏衣服到放进洗衣机清洗,动线便捷流畅。
软装搭配
次卧外的部分阳台空间为健身活动区,老人早起活动身体,女主人也有练瑜伽和做有氧运动的习惯,海信移动智慧屏电视是平板电脑的放大版,它拥有27寸超大显示屏和23220mAh大容量锂电池,画面清晰,连续3h长效续航;还提供专属AI私教、多设备互联、语音交互等功能,同时覆盖全网健身资源,居家也能轻松健身。 支架一体式的外观设计,角度可调节、高低可升降,甚至支持横竖旋转,轻薄身材、底坐带滑轮可任意移动,人在哪里它就可以跟到哪里。不需要遥控器,语音控制解放双手,喊一声“海信小聚”帮你完成,操作简单快捷。 在屏幕显示方面,海信移动智慧屏电视采用全新IPS高清类纸屏,减少反光和倒影,观看视角更为广泛;同时拥有专业调校技术高端画质,配备DTS V-X天空环绕音,氛围带屏音响,营造愉快、轻松的居家氛围。 在喧嚣的城市生活中想要找到一个最适合自己的生活方式,让自己静下心来感受生活、享受生活、热爱生活,正是现代极简美学所传达出的理念。从影音设备技术的不断创新升级上可以看出,人们对生活品质的追求是不会停止的,海信所打造的全维度、沉浸式的影院级观影体验,将人们内心的标准拔高了一个非常大的维度。 #海信视像尽显美好生活
