

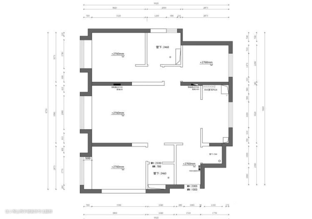
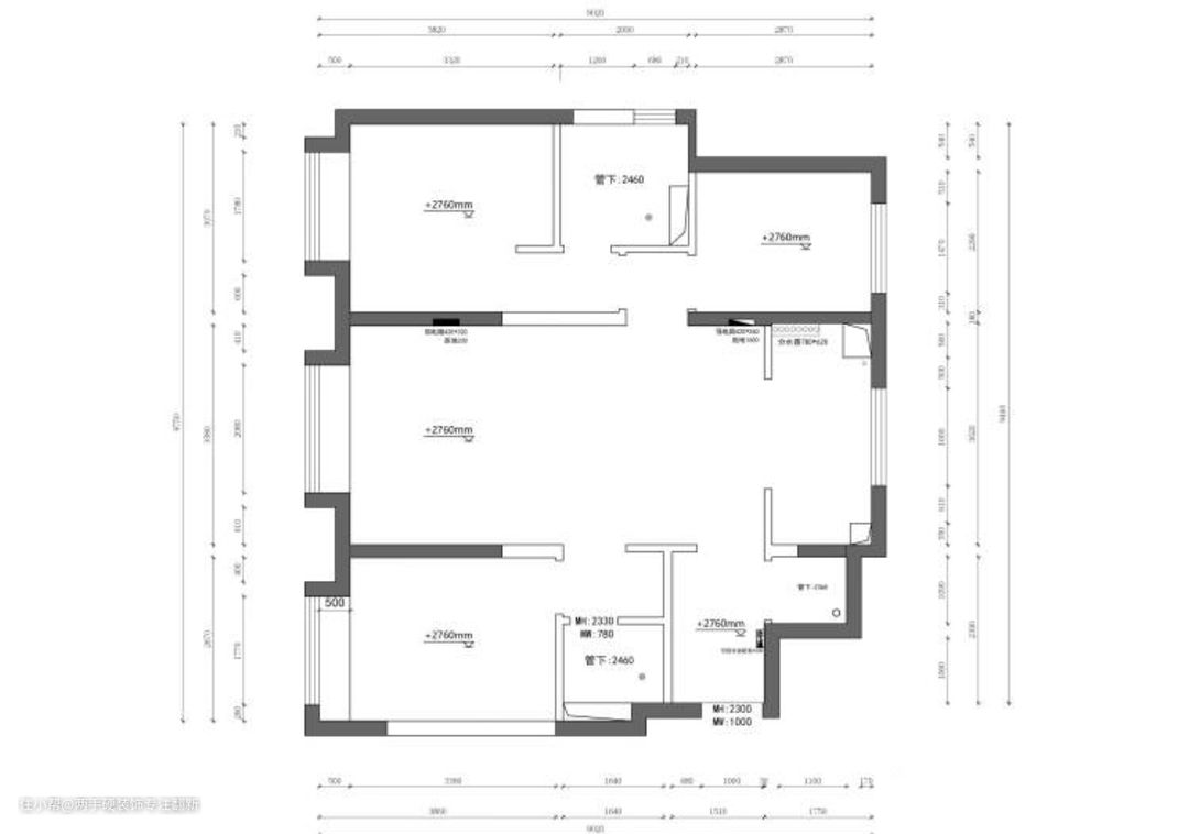
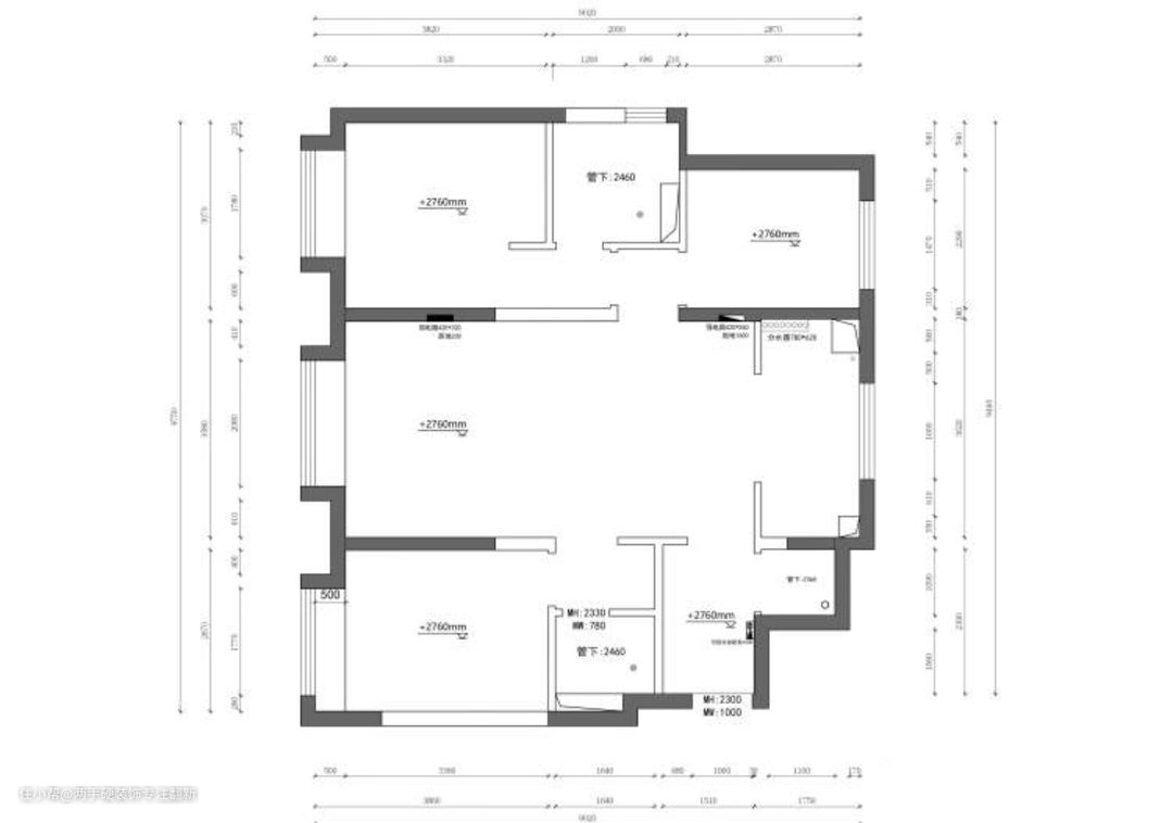
装修前
根据业主的实际需求,结合房屋特性,进行了优化与调整,具体亮点如下: 1.改变客卫结构,取消淋浴功能,给到更多空间实现收纳扩展,同时放大入户区域,视线更加辽阔; 2.LDK一体化设计,开放式厨房与餐厅融为一体,同时放大两个区域的面积,操作动线更加舒适便捷; 3.舍弃主卧旁的小次卧,将主卧打造成大套房设计,丰富收纳与实际功能,提升居住体验,幸福度飙升。




设计亮点
简洁清爽的白色将空间铺满,黑色作为点缀丰富空间质感,大平顶无主灯设计大气高级,奠定全屋的现代简约基调,营造舒适宜居的空间氛围。
软装搭配
大白墙以简约的石膏线条点缀,摒弃繁杂装饰,至纯至简,优雅的留白迸发纯净浪漫之美。一张深色绒布沙发,随性而沉稳,无形之中带给人满心的放松之感。




设计亮点
客餐厅呈开放式的布局,浅灰色地砖通铺整个公区,色彩淡雅和谐,塑造高级气质。延续客厅的无主灯照明,打造出简约自在的就餐空间,一顶清透的飞碟灯做氛围光源,餐厅层次分明,温馨舒适。
软装搭配
餐岛一体居中而置,四周的洄游动线让餐厨充满社交属性,加强家人间的沟通交流,家庭氛围和谐融洽。

设计亮点
经典的黑白配色,橱柜上浅下深,自然和谐,流畅的U型布局,搭配中央岛台,开阔性与实用性实现最优解,下厨时光轻松自在。




设计亮点
主卧延续简洁干净的黑白风格,搭配清爽的无主灯设计,床头背景墙采用格栅板点缀,辅以氛围吊灯,睡眠环境更加舒适温馨。
软装搭配
主卧延续简洁干净的黑白风格,搭配清爽的无主灯设计,床头背景墙采用格栅板点缀,辅以氛围吊灯,睡眠环境更加舒适温馨。


设计亮点
裸色系软包材质包裹床周区域,安全感爆棚,打造出梦幻童趣的睡眠环境,床头摆放同色系床头柜,温馨光影洒落,伴随孩子安稳入眠。

设计亮点
卫生间有次卧改造而成,空间宽敞,采光明亮,一如既往的黑白配色营造出低调内敛的高级感。整体通过玻璃隔断设计延展空间视觉,达到干湿分离的效果,创造舒适的洗浴体验。
