
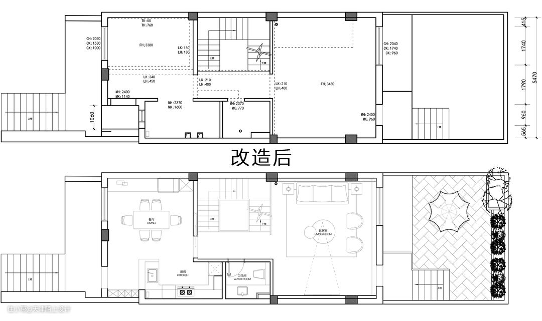
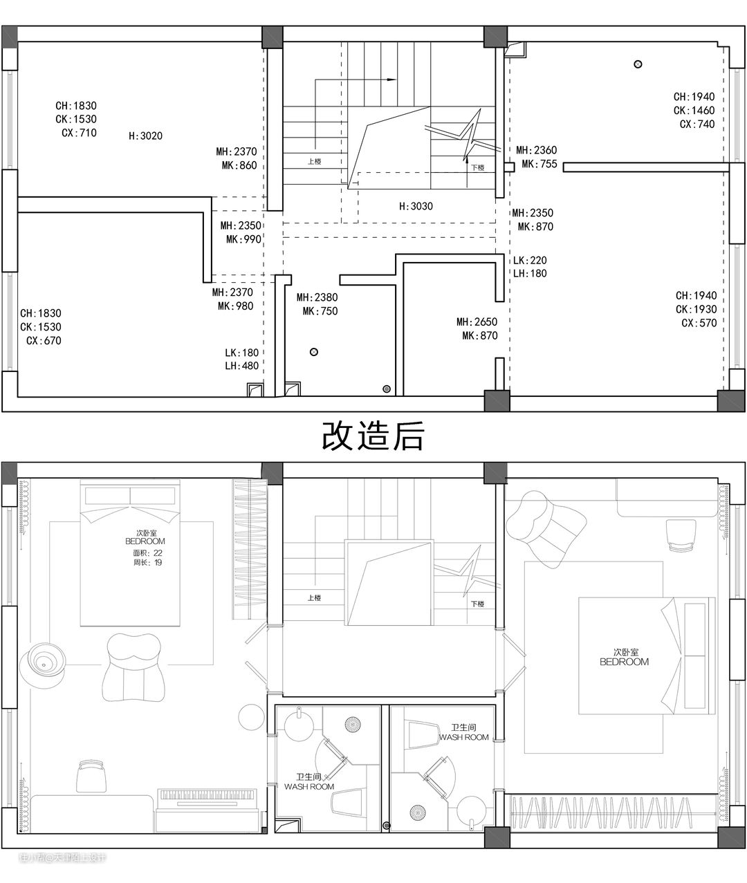
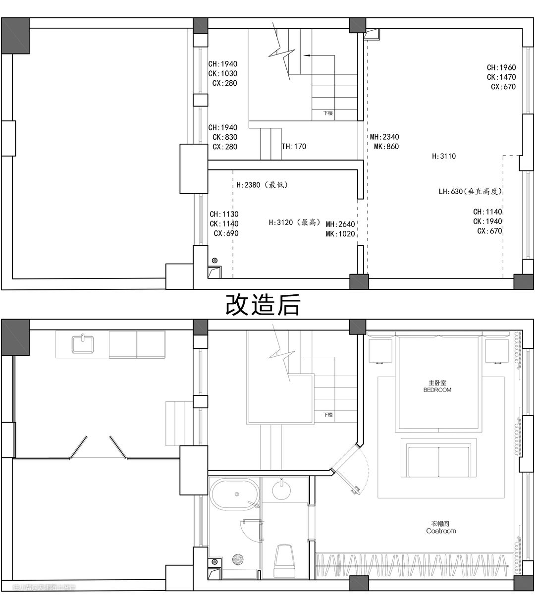
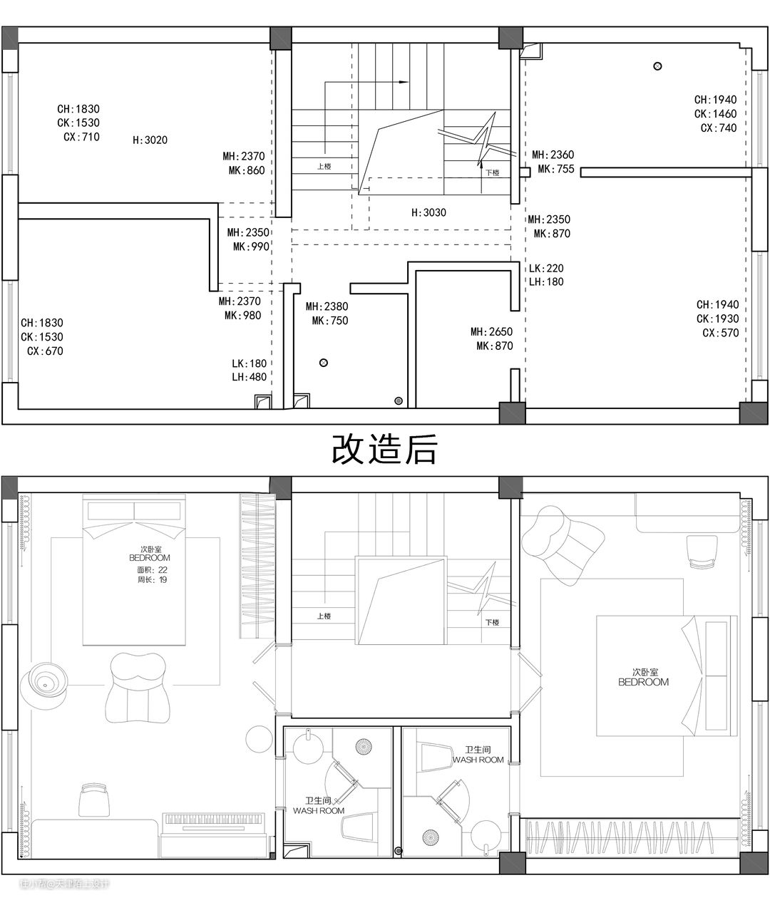
客户是通过我们之前服务的老客户介绍过来的,购买的是一套3层带地下室的连排别墅,居住人口为业主夫妇和2个女儿。 整体规划也很清晰,负一层主要为储藏室和休闲娱乐区,一层需满足会客厅,封闭式餐厅,厨房,卫生间,二层为2个女儿的房间,希望实现2个带卫生间的套房。三层设为主人房,三层的户外露台做为洗衣房,




设计亮点
虽然是别墅,但是整体的面积比较小,结合客户居住人口和需求,整案设计后为3室4卫的结构空间。考虑到造价负一层整体就是白墙设计,通过一面墙的镜子扩宽整体空间,一家人可以在这个空间运动,健身,瑜伽,休闲,吊顶采用圆形线性灯,设计感十足,弧形沙发的使用,让这个地下室实现无限的可能。 · 将一楼的门厅位置外移和厨房相连,增加入户门厅的同时也扩大了厨房的空间 · 重新分割厨房和卫生间之间的墙体,缩小卫生间的同时也增大厨房的空间 ·将整个过道的墙体往卫生间偏移,以保证二层两个套房过道的舒适度 · 斜切房间门成为整个房间的亮点,不仅让过道变宽敞,而且让进门后的主卧也无限放大




设计亮点
整个客厅没有过多装饰,无主灯的设计让整个客厅显得的更加高挑 大白墙、浅灰色沙发和黑白纹路地毯,在客厅中被运用得淋漓尽致 黑白灰为主色调,彰显朴素高级大气之美 家具皆选择了简单而有质感的款 - 弧形电视墙的设计很好的增加了客厅的延伸感。 造型上简洁实用,家具一切从简 通过落地灯与灯带营造空间气氛 放弃传统吊灯的装饰,让整体空间回归到最自然最纯粹的状态




设计亮点
收纳柜均采用免拉手设计,亮光材质好擦洗 收纳柜门极简收口,一门到顶,没有多余线条


设计亮点
厨房布局为典型的U型厨房,烹饪做菜动线十分顺畅 吊柜地柜整体色风格调统一,均用的奶白色柜门,非常的有质感 吧台的设计,拓宽了整个客厅的视觉效果,让整个厨房餐厅通透了很



设计亮点
三层为主卧套房,斜切房间门成为整个房间的亮点 不仅让过道变的宽敞,而且让进门后的主卧也无限放大 敞开式定制架的设计可随手放置业主的衣服 将舒适的双人床放在首位 缓和的色调更有助于二人睡眠



