
装修前
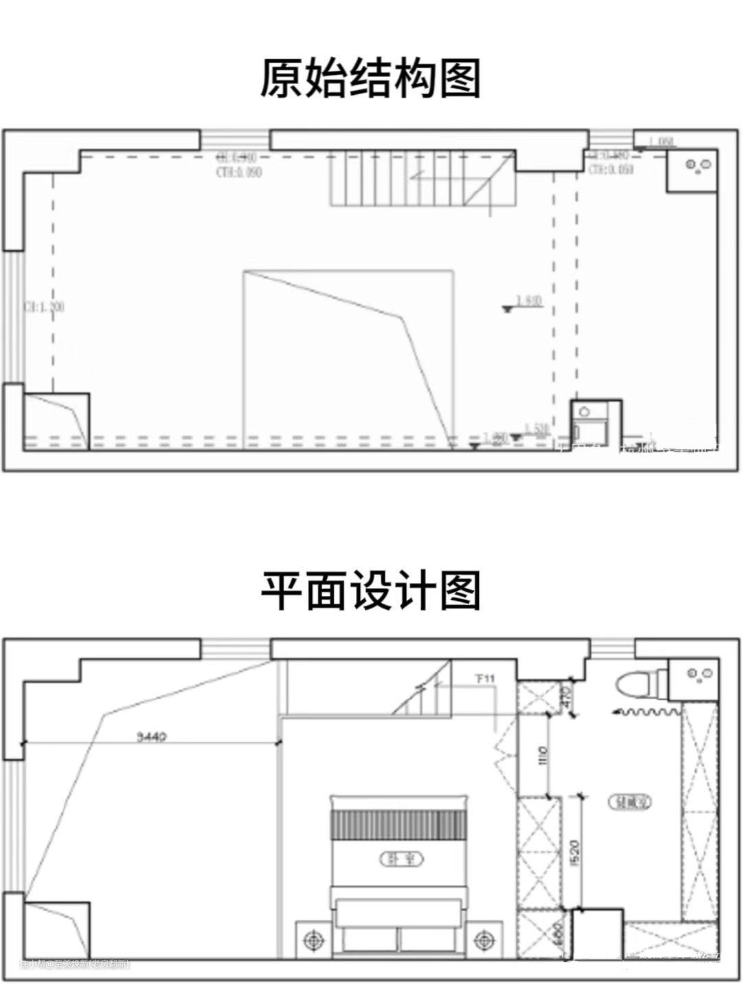
原始结构图: 本案的户型为1室2厅1厨1卫,改造前的空间分配上较为逼仄,现设计师把重心放在了空间自由上,力求每一平的空间都得到充分利用。
装修后
平面设计图: 改造后的户型图,以空间划分为重点,通过一定的空间改造,使得客厅空间得到最大程度的扩张,大面宽视野,将阳光引渡入室,打造充沛的采光面。



对比改造之前的玄关布局,进门的左手边就是玄关柜的设计更加方便自然。焕新后增加了半开式玄关柜与换鞋凳,提高了玄关的功能性,入门更加具有仪式感。 右手边靠墙做玄关收纳柜,用于入户时收纳鞋子以及满足临时置物功能,增加摆物空间与收纳空间,同时增加换鞋凳、挂衣区等功能,做到了“玄关虽小,五脏俱全”。



客厅的改造设计是本案的一大亮点,在户型允许的范围内,通过一定的空间改造,最大程度增加户内的采光面积,以通透自在的空间,容纳理想生活。 客厅空间方正,迎面而来是大落地窗,采光极佳,墙面采用了暖色系的色系搭配,将现代风与自然风完美过渡,墨绿色沙发搭配暖色系墙面,色彩上彰显了现代感。



改造之前没有明确的餐厅区域,通过设计师对空间的合理考量,在增加客厅楼梯一线的设计中,增加了餐厅的位置,同时,楼梯下的位置还可以用作增加收纳空间,一举两得。 餐厅和客厅在同一个空间内,楼梯和卫生间外墙共同构成了这一方小天地。转身处就是开放式厨房,若有烹饪的需要,料理上桌十分方便,多一步怕远,少一步怕挤。空间位置可以说是利用到恰到好处。



对比之前的厨房布局,设计师靠墙做一字型全开放式厨房,吧台洗手台一体,简洁不简单。 浅墨绿色整体橱柜定制,搭配按压式无痕柜门设计,整个空间简约干净,清新大气。再与客厅墨绿色沙发风格呼应,再点缀着些绿植,空间中就有了诗意与自然在流淌。




对比之前的卧室空间布局,设计师根据通过对业主生活需求的考虑,对二楼空间做出一定的取舍,使室内空间更加具有层次感。同时,小而不紧的卧室空间,配以柔和的灯光,呵护生活的私密感。 嵌入式的灯光加上暖灯的小设计,无一不是在为卧室增添安宁的元素,体现着设计师对于家的又一层理解。 卧室的风格突出了素雅与舒适,避免使用亮眼的色块,让整体空间更加平和,点缀浅紫色,打破了单纯黑白灰带来的空旷感,在静谧的空间中增添了一抹温馨。



对比之前的卫生间稍显逼仄的布局,焕新后明显增加了卫生间的功能性。 设计师对光线的把握也体现在小小的卫生间之中,小飘窗的设计,让这方小天地也有了生气,加大了空间的延伸感。 卫生间做常规的台盆区+马桶区+淋浴房设计,干湿分离,洗衣自由,整体兼顾颜值与功能。台盆区采用灰白大理石搭配灰色瓷砖,整体现代高级又有质感。
