设计亮点

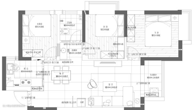
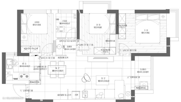
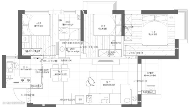
装修前
三房两厅一厨一卫,卫生间只有一个,早上和每天洗漱的使用会比较拥挤。户型虽然南北通透,但是被厨房和阳台进行隔离,又被一个阳台局限客餐厅的采光就是厨房以及阳台,厨房后期制作完后,阳台变成了晾晒区,使用会比较频繁,影响客厅美观和采光
客厅


设计亮点
将阳台纳入客厅空间之后,这面大落地窗让这里成为了绝佳的“观景台”。客厅的面积只有30平,四米的沙发在视觉感上得到了延伸,一体式的背景木饰结合木格栏栅增加空间层次感,悬浮式吊顶的运用让空间层次感有所提升,搭配深色地砖整体光感强烈的色调由繁杂变的统一
餐厅

设计亮点
餐厅的风格沿用了客厅的风格,保持了风格上的连贯性,剔透的光源也提升空间空间整体的灵动性
软装搭配
餐厅和客厅,动线顺畅,一气呵成,极度改善了原本空间狭小的问题。
主卧

设计亮点
温馨、简单是对卧室的第一印象,床头的粉色背景墙,搭配两个不规则吊灯,加以金色线条的点缀,让温馨的空间多了一丝轻奢的美感。双眼皮吊顶提升层高,在不知不觉中增大空间感。
次卧

设计亮点
保留飘窗设计可以打造休闲一方,藕粉色窗帘与床品颜色呼应,整体打造一个安静温馨的睡眠环境。
卫生间

设计亮点
卫生间选择台上盆,方便打理清洁,下方的悬挑抽屉将洗漱备用品收入其中,方形化妆镜背面镶嵌整圈灯带
