
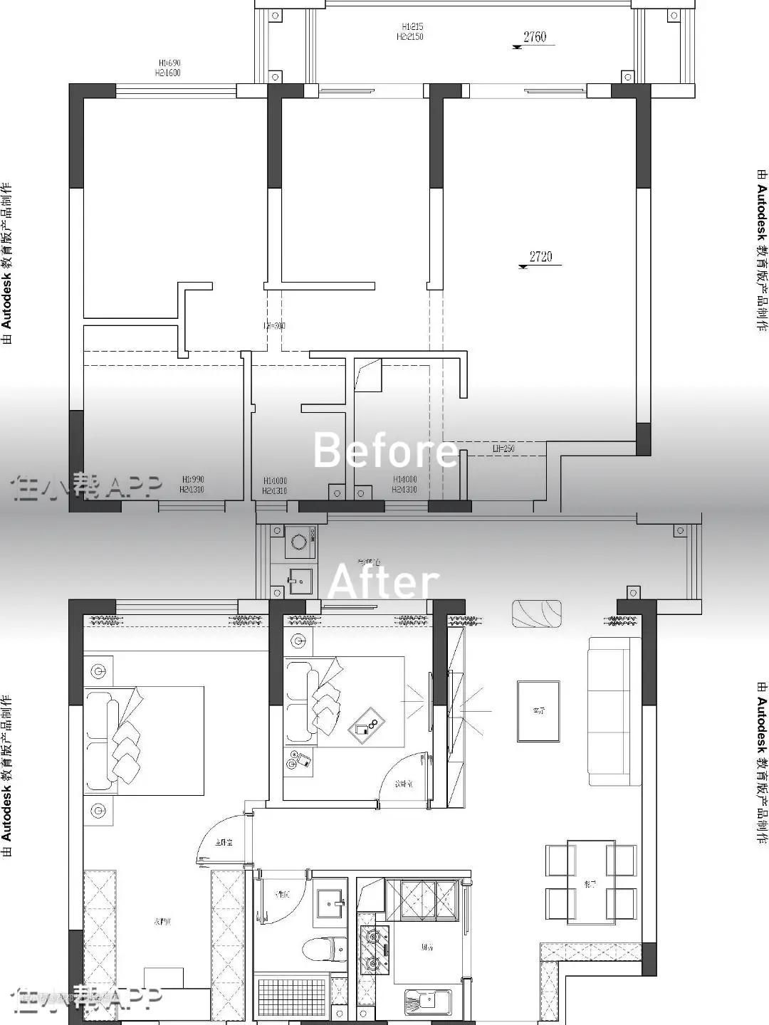
装修前
1.一进门的地方旁边没有空间做鞋柜,不是很方便; 2.有阳台移门,但是视线受阻让客餐厅看起来不大; 3.原始结构是三房,次卧室仅有1米5的床和一个衣柜的空间,主卧室和旁边的儿童房都比较偏小。
装修后
1:玄关旁边的墙不是承重墙,设计师就借了120mm的厚度,满足了做鞋柜的条件; 2:餐厅也比较小,借客餐厅300mm空间做了餐边柜,把餐边柜和鞋柜做成L型转角柜连起来;拆除阳台移门,做一个拱形门和超大落地窗; 3:把小的房间的墙全包拆了给主卧包起来做了一个衣帽间,解决女孩子衣服多放不下的烦恼,业主很喜欢在飘窗上看书的感觉,设计师就加了一个悬空飘窗柜。









设计亮点
客厅以简洁温暖的白色铺垫,通铺柔光砖干净又显大,背景墙使用细腻的石膏线雕花装饰,切合了法式对称美学、雕花精妙、线条优美的特点;治愈奶油白依附着柔和的几何弧线,将法式风的浪漫与现代空间的简约融合,调和出客厅优雅简练的底色。 奶白色沙发尽显柔情与高级,进入客厅的那一刻开始,就仿佛跌入大团的云朵里,身心都变得治愈平和。当法式遇上奶油风,再融合多种现代元素,不失法式浪漫的同时,又如同与松软绵密的榛子奶油蛋糕撞了个满怀,治愈温馨触手可及。 弧度优美的拱形门洞建立起客厅与阳台流畅联动,大尺度落地窗,保证室内的明亮通透,圆弧造型的拱形门与石膏线条的结合,让硬装也能营造烂漫的装饰效果。一袭洁白的梦幻帘,将客厅所需的光照,调和至舒适的明度,阳光正好,微风不燥,岁月静好。 天使爱丽丝托盘雕像高级又精致,让人眼前一亮;整个客厅法式奶油风格弥漫着复古、自然主义的基调,不禁让人奔赴一场充满浓郁的艺术气息的“童话屋”。







设计亮点
客餐厅一体节省空间,简约式大理石餐桌搭配上金属色的餐椅,打造出静谧的浪漫美感。餐厅区域光线柔和,营造了满满的浪漫氛围感。 由于进门处的空间较小,设计师把餐边柜和玄关鞋柜连在一起,做成L型转角柜,中间悬空加上女主人喜欢的爱马仕橙,一抹鲜艳的颜色带来丰富的视觉享受,这样设计让小户型的空间看起来更加轻盈、通透。



设计亮点
厨房遵循L型动线布居,高效便捷,大单槽、嵌入式洗碗机一应俱全,白色哑光橱柜与地砖相映衬,吊顶植入灯带,备菜无惧背光烦恼。









设计亮点
主卧延续了法式的纯粹,双眼皮吊顶与石膏线的结合,令空间简约不失层次感,弥漫着优雅的气息。没有过多的色彩和修饰,仅在床头放了一个水晶玻璃造型的落地灯,在夜晚点亮空间,少而精的元素让卧室拥有设计感的同时兼具舒适性。 飘窗铺上飘窗垫,放上小毛毯,沐浴着暖煦阳光、感受着清爽微风,嘬茶赏景、畅游书海、听乐观影,或就这么慵懒的躺上一躺,将心绪放空,漫享偷得浮生半日闲的自在,给自己一份清闲安静的松弛感。 把最小房间的墙拆了,做了一个步入式衣帽间包进卧室,让进入卧室衣帽间这件事变得很有仪式感。整体延续简洁干净奶白的风格,搭配毛绒小巧软座椅并且打造悬浮桌,空间散发静谧舒缓氛围。 双开门玻璃衣柜设计,破开整柜的压抑,明亮灯带的加入,带来更多的精致感。梳妆台上方的天花板同样预埋灯带,淡化大白墙的冰冷感。




设计亮点
次卧以奶油白色为基调,布置一张白色软包床,奶白色云朵灯软糯可爱,让简单的空间增添了甜蜜温馨而唯美浪漫的氛围。


设计亮点
卫生间的干区单独拎出,实现布局的干湿分离,白色岩板台面,配合台中盆使用,整洁干净而无卫生死角;下方悬挂抽屉柜,物品拿放变得十分方便,给人一种很整洁的素雅感。



设计亮点
很多人觉得住一楼又潮湿又阴冷,但是一楼采光是比较好的,通风和视野效果也很好,装上一个超大的落地窗,进门看过去风景很不错! 还有一个小心机的设计,落地窗旁边窗户做了一个成年人都可以直接钻出去的小门,这样刚好给小狗留了一个小道,随时可以找路过的小狗耍,方便狗狗交朋友~
