


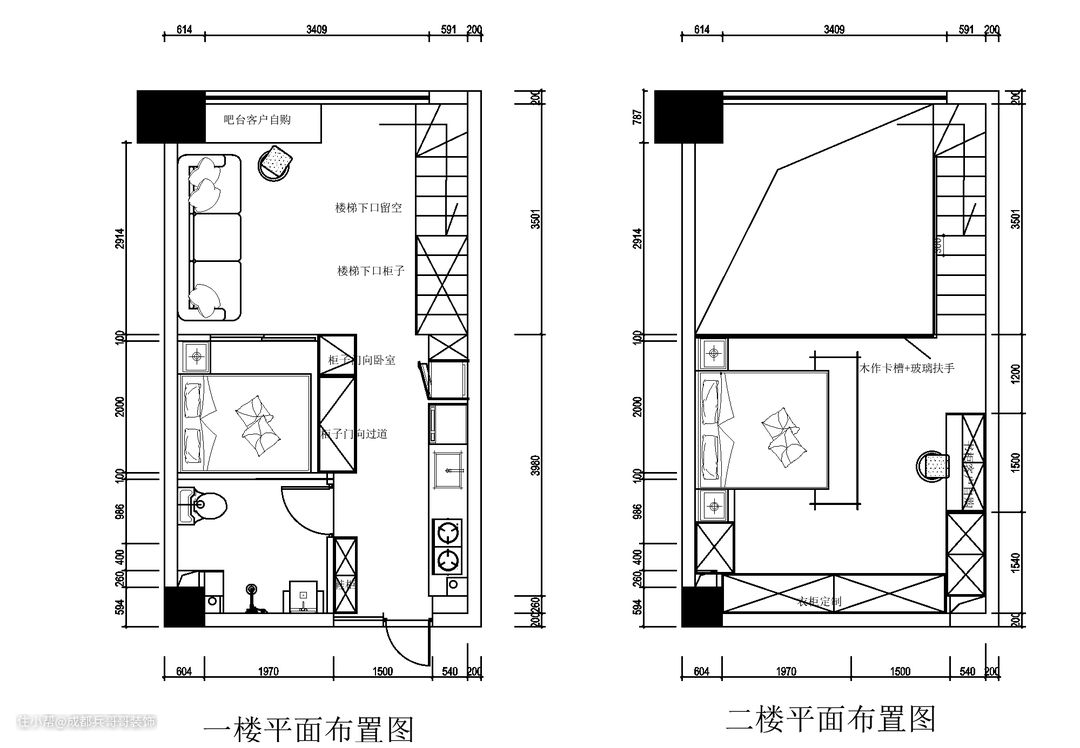
🔶🔸🔹🔷本套loft复式案例,是长度为8.161米、宽度为4.814米、层高是4.2米的公寓,类似于两个正方体拼在一起,长宽尺寸还不错,可以自由打造栖居生活…… ▶房屋是位于成都市·华宇旭辉·锦绣广场,所处地段商业丰富,可用于出租、自住,对整个室内的装修品质有较高要求。 ▶屋主想要保留两个卧室,不希望二楼隔层满搭建,显得压抑,主打现代简约风,不过时还经久耐看。最终设计师依据业主要求,将阁楼镂空半搭建,上下两层楼都拥有一间卧室,互不干扰,生活舒适性更好~~ 🟠整个loft公寓空间设计: 1️⃣一楼:客厅 餐厅 厨房 玄关鞋柜 卧室 卫生间 2️⃣二楼:主卧 衣柜 保留全景落地窗,挑空4米多设计,选择一字形转角楼梯,室内空间感不压抑,采光通透感也不错💕 ✨✨一起来看看每个空间的故事吧✨✨







设计亮点
loft公寓,一眼望去,便能看到室内空间的整体布局,所以往往半搭建效果要好看很多。如果论使用面积和实用性的话,满搭建比半搭建更受喜欢。但层高4米左右的公寓,为了降低层高带来的压抑感,往往选择有挑空的搭建方式。 这套公寓,钢结构阁楼镂空半搭建,靠窗位置保持4米多的挑空区域,不仅能带来很好的采光效果,室内通透感绝佳~~ 另外值得一提的是,阁楼搭建好后,一般不建议砌墙把空间分隔开来,那样空间暗淡无光,室内也会呈现出十分压抑的效果。所以这套loft选择了半高实木玻璃扶手的设计,不仅安全耐用,还能让空间互动性、采光通透性更好。







设计亮点
本案loft选用了一字形转角楼梯连接一二楼,楼梯下方做了一整排储物柜,木地板踏步+实木玻璃扶手+几何壁灯,简约大气又好看~~ 楼梯踏步尺寸:80cm*23cm*19.2cm(长*宽*高),根据常住人口身高设计,上下楼梯十分舒适~~




设计亮点
一楼入户空间,是钢结构阁楼搭建之后的下方空间,包括厨房+卫生间+玄关柜,功能布局全面,有效将有限空间完美利用起来,不错的设计👍



设计亮点
厨房,设计在进门右侧,一字形布局,上方一整排吊柜+下方一整排地柜+嵌入式洗衣机,储物收纳功能超赞👍








设计亮点
客厅,挑空4米多高度,开放式设计,保留全景窗户,后期安装电视和沙发、茶几,面积空间足够,硬装完工后色彩搭配简单自然~~





设计亮点
主卧室,是放在二楼空间的,木地板铺贴,可以放置一米八/两米的床+床头柜,还可以安装书桌,卧室最里侧装了一整排嵌入式衣柜,满足日常收纳储物需求,整个空间看上去也更加整洁干净~~



设计亮点
次卧室,位于一楼,可以作为长辈房或儿童房,安装的是玻璃推拉门,里面能够放下1米5的床,做了嵌入式衣柜,收纳空间不错~~





设计亮点
卫生间在一楼,流行式干湿分离,马桶区+盥洗台+淋浴间,功能全面合理。面积不大,但五脏俱全👍👍
