
本案例是个毛坯复式楼,屋主蔡蔡同学是一个刚研究生毕业的单身女白领。无独有偶,在找到我们之前,蔡蔡同学也对比了好几个设计方案均不太满意,经我们深入沟通,蔡蔡同学作为精致的新时代独立女性,和所有小女生一样有颗浪漫的心,喜欢与世界温柔对话,她的诉求其实很简单: 1、风格上喜欢简简单单的奶油风,不喜欢太多过于纷繁复杂的颜色,疫情之下,宅家能让她有个最舒适的状态; 2、虽是单身,但是父母偶尔会来小住,所以要保留两室; 3、要有足够的收纳空间。


设计亮点
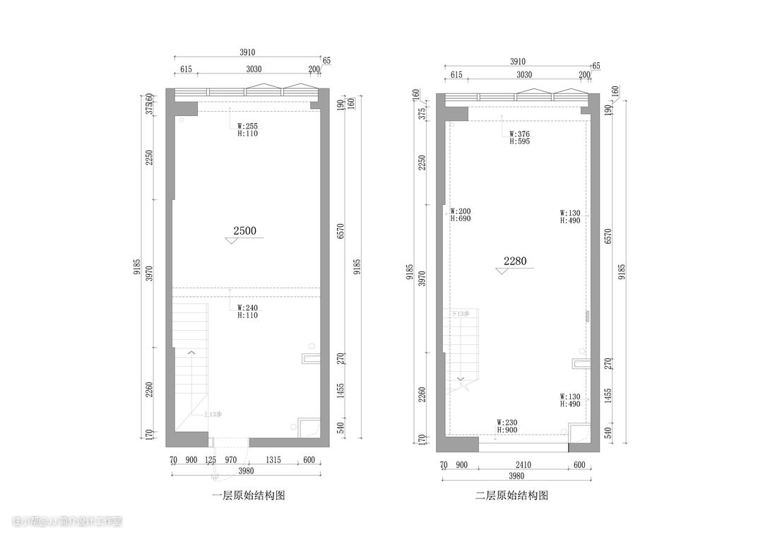
▲原户型图: 1、此户型单面采光,西照,空气不对流; 2、商住两用户型,楼层较矮,存在楼面不平整; 3、倒好的楼板和楼梯保持不动。 ▲平面布置图: 1、针对单面采光:①一楼做开放式厨房,让客餐厨一体化;②二楼主卧做落地窗,窗户不做任何遮挡,增加采光;③次卧连接着楼梯面采用长虹玻璃,透光不透影。 2、针对单面户型空气不对流:全屋做了新风系统,既保证了空气质量,又解决了靠路边产生的噪音。 3、针对楼层矮,楼面不平整:全屋无主灯,定制5公分嵌入式筒灯,明装轨道灯来照明;一楼采用局部边吊隐藏空调及新风设备,二楼采用超薄平吊来解决楼面的不平整。 4、倒好的楼梯和楼板保持不变:一楼客餐厨,作为公共区域,二楼卧室,作为私人空间,动静分离的布局。


设计亮点
▲玄关 进门左手边就是楼梯,确切的说这个户型并没有玄关,但玄关处该有的收纳我们也不会少,我们利用楼梯下方的三角空间,顺应斜面阶梯定做了鞋柜和储藏间,外加内嵌一个大冰箱,冰箱开门处正对着我们的厨房,方便拿取食物,此处的收纳处简直不要太香。#玄关#楼梯收纳


设计亮点
▲客餐厅 蔡蔡同学目前单身,平时对于餐厅的需求不大,一个人的时候客厅的茶几就是她的就餐区,所以客餐厅连成一体,不仅增加采光还增加利用率;一楼公区空间狭小,选用米灰色地砖600*1200通铺,没有门槛石的遮挡,在视觉上空间有强烈的延伸感,空间看起来更显宽敞,浅色的地砖,空间整体更加的明亮;因客厅宽度较窄,搭配简洁形体较小的沙发和茶几,使得空间更加开阔;全屋无主灯+明装轨道灯为客厅提供明亮照明,也是蔡蔡同学的一大喜好;因楼层的高度选择边吊,来隐藏空调和新风系统;客厅和厨房顶部连接处有一根横梁,结合厨房顶部的多处管道,做了平吊设计;整体墙面奶油暖色漆搭配浅色家具,整个空间都温温柔柔的。 #客厅#客餐厅一体


设计亮点
▲背景墙 不做任何造型的电视背景墙,简单干净的刷白墙壁,闲暇时刻躺在沙发上来一部投影电影,生活就是这么的惬意。#客厅#电视背景墙#投影


设计亮点
▲餐厅 一楼公区整体空间小,客餐厅一体化,加上一个宜家的折叠餐桌,平时蔡蔡同学就餐位置基本在客厅,有朋友客人来时,宜家的折叠餐桌同时也能满足四五人就餐。#餐厅#折叠餐桌



设计亮点
▲厨房 对于小户型,开放式厨房非常的合适,没有门的阻碍,空间宽阔还更加的整体,也增加了和客厅的互动感;原始的L型厨房改成U型的吧台和餐厅连接,不仅增加了操作空间,同时也满足了平时餐桌不使用时的隐藏收纳。 厨房顶部的管道较多,为隐藏管道及楼梯处的横梁,厨房顶部做了平吊;与客厅的连接处做了一组展示柜,不仅可以收纳,视野上对厨房零散部分进行了有效遮挡,让空间更加的简洁。 #厨房#开放式厨房



设计亮点
▲阳台 原户型没有阳台,为了生活需要及便利,用一帘白色纱帘来隔开客厅和阳台,有客人来时,白色纱帘来遮挡阳台上的衣物,不影响采光又能规避私人物品,平时纱帘打开,客阳台一起,更加通透明亮。顶部隐形晾衣绳随拉随用,伸缩自如。 #阳台#隐形晾衣绳


设计亮点
▲楼梯 进门的左侧就是楼梯,云朵拉灰的大理石踏步,不易变形,硬度高,耐磨性强,好护理,护理后又如全新一般,小钢槽玻璃扶手,简洁好打理,又能采光。 #楼梯#大理石踏步#玻璃扶手




设计亮点
▲主卧 楼顶做了超薄平吊解决了原楼面的不平整,床头做了弧形吊顶,内包了原始的梁,梁下隐藏了新风系统,内嵌5公分筒灯来照明;因楼层较矮,特意选了靠背及床脚较矮的床铺,整体不会显得过于压抑,但又能满足智能扫地机的进出。 #卧室#新风


设计亮点
▲次卧 次卧平时留给蔡蔡同学父母来小住,因次卧是一个封闭空间,为增设新风,在走管上安排从主卧、卫生间的梁下走管再到达次卧;次卧的楼面梁有个高低差,结合这个高低梁,梁下定制了一整排衣柜,不仅弱化了梁的高低差,又增设了一整面的收纳;封闭式空间没有窗户可照明,床脚处的墙面连接着楼梯面采用了长虹玻璃,透光不透影。 #次卧#衣柜#长虹玻璃


设计亮点
▲卫生间 一楼的公卫只做了浴室柜和马桶,二楼原始设计没有卫生间,因私人空间需要增加了卫生间和淋浴房,淋浴房内做了壁龛设计,不仅方便拿取,还扩大了淋浴房内的空间功能;卫生间的这套浴室柜配的是智能浴镜,自带照明光圈,镜子上的小圆片区是放大镜,方便蔡蔡同学的日常清洁化妆。#卫生间#智能浴镜#浴室壁龛
