
装修前
设计理念:这是一套现代混搭的装修案例。本案屋主想要一间有温度的亲子美宅,在满足日常生活的功能外,实现人与人之间的有效互动与交流。设计师在户型上进行大刀阔斧的改动,将三房改为两房,实现中心空间的最大化,打造集读书+休闲+活动的大客厅;并舍弃过道,采用隐形门联接卧室区与公区,保证空间整体性。
装修后
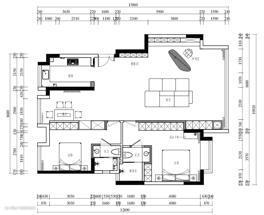
▲ 户型图解析:本案为三室改两室,意在释放更多空间。北进门入户,开门即见厅。公区运用开放式设计手法,打造通透舒适的大开间。舍弃鸡肋过道以两扇隐形门作为休息区的入口,保证空间的整体性,进一步强化空间的家居氛围。



设计亮点
▲ 入户左侧靠墙定制多功能玄关柜,满足换鞋+挂衣+收纳的多重属性。内嵌灯带让整体沉浸在柔和的氛围里,赋予空间恰到好处的美。
软装搭配
▲ 玄关柜与沙发后侧的图书收纳区转角相连,统一材质同一色彩,给予屋主心爱的手办、书籍一席之地。趣味玩偶适时加入,心旷神怡。





设计亮点
▲ 客厅,由景观阳台与原餐厅整合而成,且去茶几化设计,没有花哨的装饰和陈设,给亲子互动留出富裕的空间,刻画出家的美好与安宁。地面选用人字拼木纹砖铺贴,结合顶面无主灯设计,演绎温润柔和的混搭格调。奶茶色与橙色拼接的布艺沙发,营造清雅的空间氛围。
软装搭配
▲ 沙发居中摆放,背后采用透明展柜+开放层板,规划趣味图书区,也是手办展示区。运用氛围灯带与木格栅的背景饰面结合,凸显层次。整合多个空间,将三室改为两室,实现客厅的最大化,打造中心化客厅。有时候无需浓墨重彩,落落大方的设计也可描摹出家的形状。



设计亮点
▲ 餐厅由原始次卧改造而成,入口处弧形垭口设计,结合顶面无主灯,营造温馨舒适的用餐环境。柔和的光线与温暖的木地板相互映衬。
软装搭配
▲ 旁侧预留冰箱嵌入位,与柜体完美融合,提升空间利用率。设计一组开放格,运用清简的白色系,打造简约时尚的用餐环境,舒适又美观。

设计亮点
▲ 厨房使用木色橱柜,U型布局提高空间利用率,木地板凸显温润质感。高低台设计让烹饪更加轻松,打造一个实用且舒适的操作环境。




设计亮点
▲ 主卧背景墙采用靛蓝色墙漆,素雅的床品增添舒适度。地面铺设木地板,营造温馨舒适的睡眠环境,让屋主来一场沉浸式的深度睡眠;床尾打造一整排收纳柜,黑色极简拉手提升整体美感。满足一年四季各类收纳需求,使空间更加整洁有序,营造出平和舒适的空间氛围。
软装搭配
▲ 主卫拆除非承重墙实现空间外扩,干湿分离设计提升使用体验。采用黑玻推拉门隔断增加私密性,打造简约时尚且实用的卫浴空间。

设计亮点
▲ 次卧为儿童房,牛油果绿色背景墙清新活力。定制一组白色柜体满足收纳需求,趣味玩偶的加入增添童趣,打造温馨舒适的儿童成长空间。
