

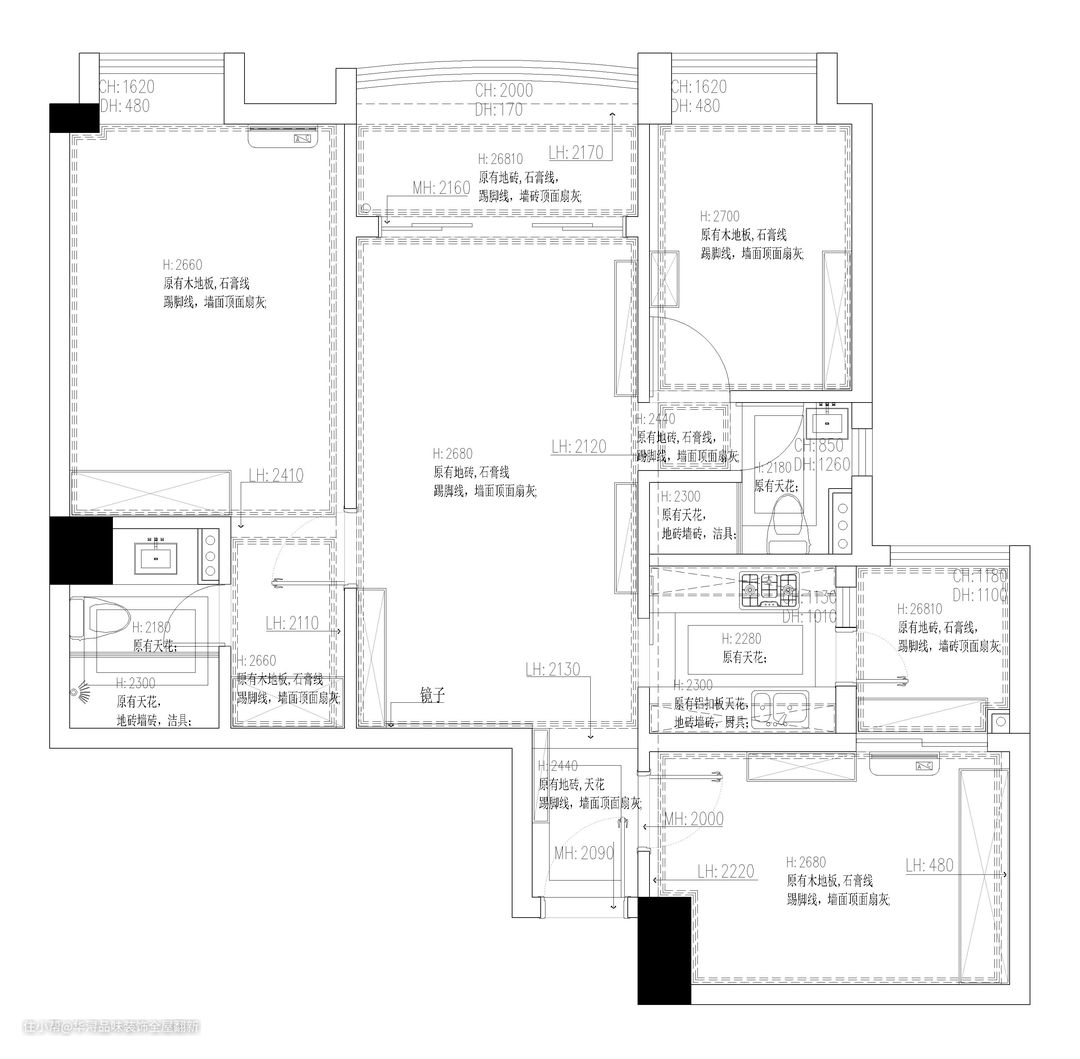
装修前
本案是一个三口之家的住宅项目,业主购置这一套房子主要是方便孩子上学,希望整体居住氛围能有足够的松弛感。 原户型分析: 1.入户玄关空间狭窄、局促,收纳空间不足; 2.公卫动线不合理; 3.生活阳台空间利用率较低,厨房操作空间较小; 4.主卧衣帽间利用率不高,通风效果较差空间潮湿。
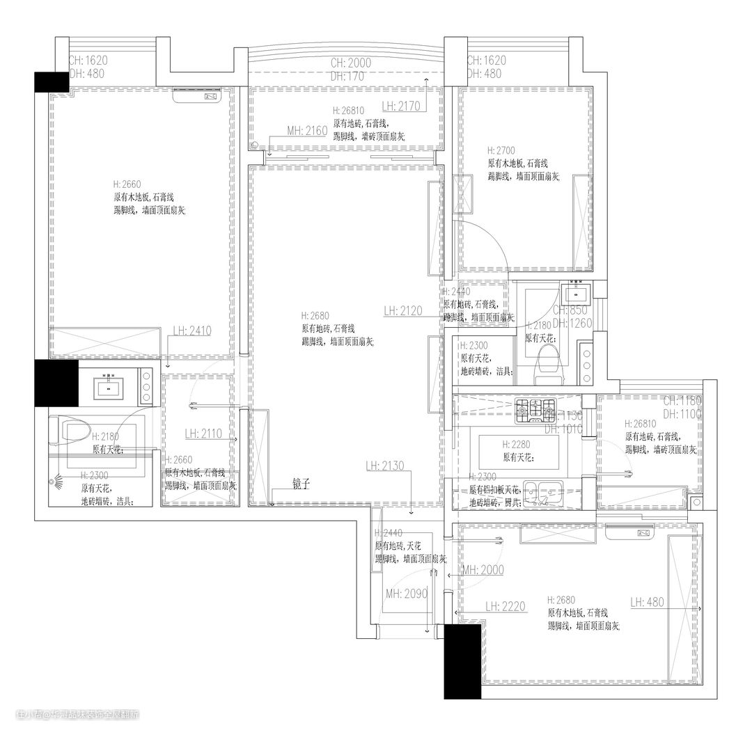
装修后
设计师想营造一种自由与舒适至上,纯粹又不失温暖的治愈空间,因此选择了奶油风,色调透着温柔和淡雅,线条简洁带有圆润感。在后疫情时代,设计师希望通过奶油风的空间,给居住者带来温暖和治愈的能量。 设计亮点: 1.将靠近玄关的卧室改造为鞋帽间和书房,拓宽玄关空间,同时也能丰富玄关的功能性,增加收纳空间。 2.改变公卫门洞位置和开启方向后动线更流畅,空间利用率更高。 3.生活阳台打通纳入厨房,增加厨房操作空间,并在门口增设电器柜及储物柜,提升收纳能力。 4.调整主卫格局,将衣柜设置在外侧,让主卧的空间利用更合理;同时将飘窗区域改造为休闲、储物一体的多功能空间。


设计亮点
原本玄关较为狭长、昏暗,收纳空间不足,设计师将靠近大门的卧室缩小面积,同时增设鞋帽间。 这让玄关的功能性更丰富,可以提供大量收纳空间,壁龛的设计也可以提高玄关空间的颜值,一进门就让人心旷神怡。





设计亮点
拆除原有推拉门,将阳台封窗纳入客厅,让自然光能更好地进入客厅空间,整个空间更通透明亮,也能更完美地表现奶油风的空间质感。利用原本阳台一侧的空间设置家政区,保留阳台的功能性,将空间利用最大化。 客厅空间采用留白的设计手法,搭配纯色柔光砖通铺,柔和的色彩搭配将奶油风的温柔治愈一点点渲染开来。双眼皮吊顶内嵌灯带的设计,让空间的精致度和氛围感更上一层楼。 悬浮式电视柜与开放性储物柜都做了弧形处理,圆润柔和的造型是奶油风的基础元素,空间呈现更柔软、温柔的质感。
软装搭配
可爱的摆件和绿植给空间增添了生机与活力,打造更具趣味性和生活气息的家居环境。



设计亮点
延续客厅的奶油色调,餐厅同样选择温柔清新的配色,在白色的餐边柜中加入奶咖色,丰富空间层次感,纯粹又不失温暖,让整个空间被温暖和治愈的氛围所包裹。
软装搭配
简约的餐桌椅搭配造型别致可爱的吊灯,营造出充满意趣又温馨舒适的就餐氛围。

设计亮点
将生活阳台打通并入厨房后,让原本狭小的空间变得宽敞和舒展,大大增加了操作台面积与收纳空间。 白色台面与浅色系橱柜起到提亮空间的作用,清洗区、灶台与备菜区分布更合理,三角动线使得烹饪时操作更流畅、便捷。

设计亮点
改变门洞位置和方向后的卫生间格局更规整,空间利用更合理。墙面采用大尺寸瓷砖,具有更好的防水、防潮效果,且视觉效果柔和清爽。 利用镜柜提升卫生间的收纳能力,侧边的开放格与台盆柜色调统一,为空间增添的一份温暖的气息。





设计亮点
主卧暖调的护墙板与木地板构筑温暖、恬静的空间,与护墙板同色的悬浮式床头柜,赋予卧室灵动、轻盈的空间魅力,使整体呈现明亮、温馨的空间氛围。 在飘窗位置设计了储物区,利用飘窗两侧及下方空间满足更多收纳需求,飘窗也作为休闲区,给业主一个放松身心的治愈空间。储物柜拐角处利用大弧角线条来衔接,视觉效果更柔和,让温柔的氛围在空间中弥漫。 原本衣帽间位于主卫对面,空间阴暗潮湿,在调整卫生间的格局后,将衣柜设置在采光和通风效果更好的位置,在保证有足够收纳空间的同时,也有利于衣物的保存。



设计亮点
女儿房清新淡雅,没有过多的装饰但洋溢着浪漫的氛围,是充满了少女心的小天地。由衣柜延伸出的书桌,让空间层次感更分明。 在床尾设置了储物柜,开放格设计给孩子心爱的玩偶一个容身之处,让卧室更富有童真童趣。


设计亮点
玄关增设鞋帽间后,将靠近入户大门的卧室改造为书房,一字型的悬浮式书桌合理利用空间,提供宽敞舒适的学习、工作环境。 靠墙的一侧做了大书柜,将全家的书籍整齐收纳。玻璃柜门不仅可以防尘,更好地保存书籍,也可以增加空间的通透感。
