

装修前
这是一套房龄约18年的户型,和现在新小区相比,户型的原始结构并非那么理想。特别是客厅西边阳台出去的门洞位置,使得方正的客厅少了一个角,而且电视背景和沙发背景也不对中。在设计的时候我结合了这种户型的特点和业主喜欢的新中式风格,在顶面设计的时候顺势设计了一个"八"字造型的吊顶,配上胡桃色实木线条。沙发后边靠近窗户的位置设计了一块护墙和壁灯,让电视背景和沙发对中。顶上的八角造型和原始户型非常吻合,把户型原本的劣势转化成优势。接着我把书房设计成开放式的,做了一个八角实木门套,和顶上的八角造型相呼应,书房的空间既和大厅相连,又有自己独立的区域。
装修后
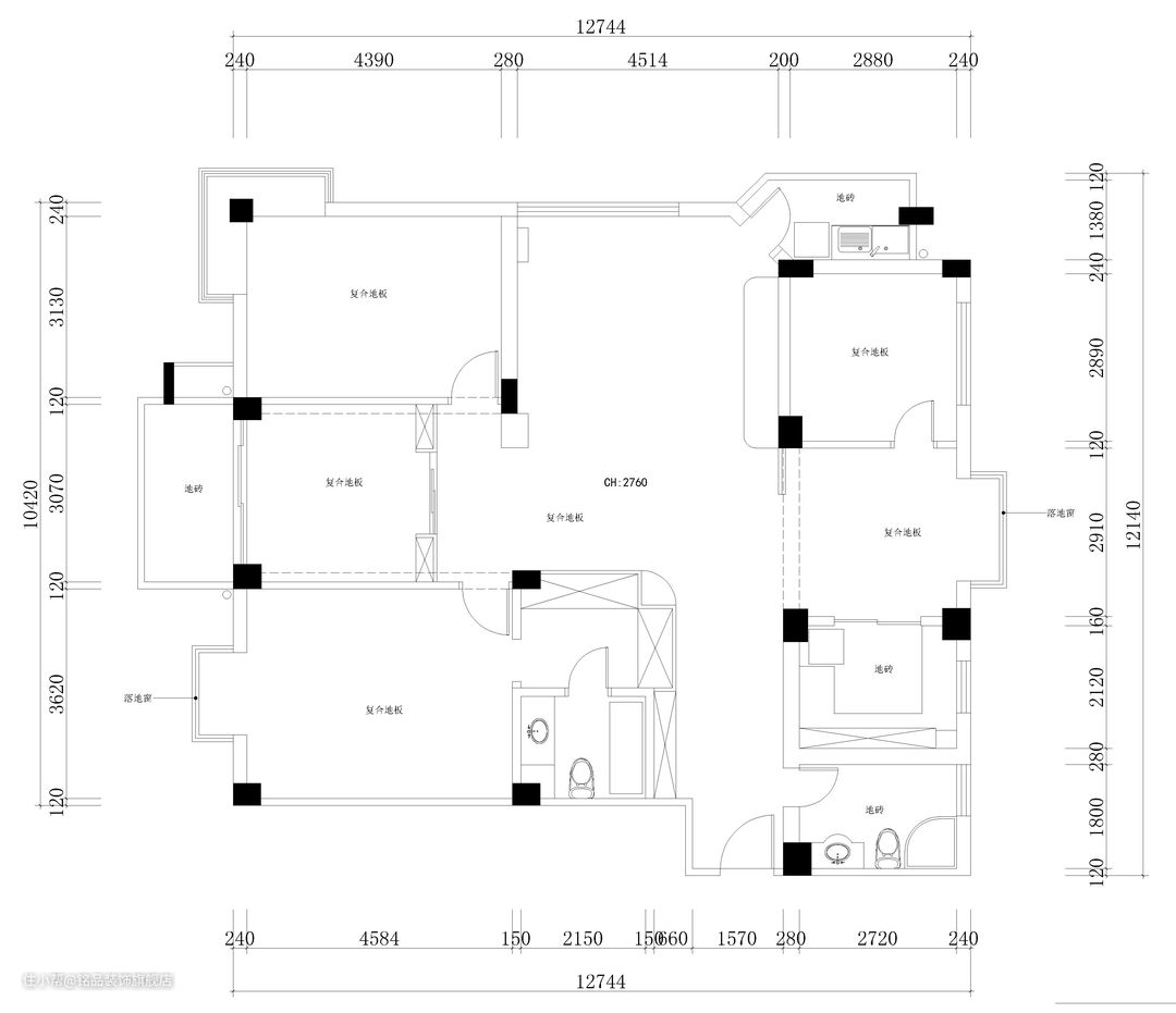
平面设计图 设计理念:以简单的造型为基础,添加了中式元素,使整体空间更加丰富、大而不空,厚而不重,有格调又不压抑。将现代元素和传统元素结合在一起,以现代人的审美和生活习惯打造富有传统韵味的空间。#户型 #户型图 #平面设计图









设计亮点
在设计候我结合了户型的特点和业主喜欢的新中式风格,在顶面设计的时候顺势设计了一个"八"字造型的吊顶,配上胡桃色实木线条。整屋在色彩上用红系中朱砂红来强调中式气韵,电视背景墙由沉稳的黑色和干净的水墨纹瓷砖,佐以陶瓷元素等,现代式设计融合了传统中式元素,相得益彰。 沙发后边靠近窗户的位置设计了一块护墙和壁灯,让电视背景和沙发在一条中轴线上,同时也呼应了吊顶的走线。点睛之笔:顶上的八角造型和原始户型非常吻合,把户型原本的劣势转化成优势,形成灵动新趋势。#沙发背景墙 #沙发 #吊顶#客厅 #吊顶 #新中式
软装搭配
中式壁灯和胡桃木元素的家具~#沙发 #茶几 #壁灯







设计亮点
餐厅设计完全符合了东方美学的概念。呼应整屋的胡桃木餐桌椅、整面墙的木饰面充满韵味。餐厅主灯以陶瓷元素延展开来,古色古香。 中式韵味通过空间的陈设、雕镂中的古典纹样营造出更显华丽、优雅、更具韵味的空间视觉张力。取其意、演其境、用其韵,不分繁冗与岑寂,中式之美便是东方生活的姿态。#餐厅 #餐桌 #餐椅#餐厅 #餐桌 #吊灯
软装搭配
由于厨房面积有限,为了最大程度利用可用空间,我们把冰箱挪出厨房,做了内嵌式的处理,在餐厅侧设计了整面墙的柜子,门侧柜体中部留出30*90cm,进深40cm的位置做了开敞格,可以放一些小家电。#餐边柜 #冰箱 #餐厅

设计亮点
考虑到厨房空间有限,我们把厨房设计成大U型,让下厨动线更加明确。吊柜跟地板都设计成艾格浅灰,门板做了无拉手设计,考虑业主身高,把原本80cm的操作台面提高至89cm,更符合业主实际情况的设计才是好设计。#厨房 #橱柜 #收纳



设计亮点
主卧以大白墙为主基调,搭配深木色的床及地板,床品选择比较丰富的花色,让空间看起来没有那么单调。床头和床尾的盆栽还有吊灯都选择了中式元素的。#卧室 #床 #吊灯 化简为繁。次卧没有用过多的色系点缀,我们把纯白定位卧室的主基调,干净清爽。同时木质地板中和了空间的清冷感,木质温润入心。床尾飘窗设计了一个简单清爽的工作台面,这样即使应对突发的工作需求也可以“足不出户”。#卧室 #书桌 #收纳



设计亮点
把衣帽间包进卧室,方便业主家日常生活起居安排。在这个充满东方元素的空间环境中,女主人希望将衣帽间简洁干净化,我们将传统文化与现代简洁审美相结合,在提炼经典的中式元素的同时,又对其部分空间进行简化和丰富。#衣帽间 #衣柜 #收纳


设计亮点
考虑到实际使用情况和需求,我们把卫生间设计成三分离式。做了玻璃淋浴房隔断式,保证了空间的明亮与通透,同时也方便打扫卫生。卫生间整体选择统一色调,从视觉效果上扩大空间,增加整体性,这样看上去也更加干净整洁。洗手台盆下方留出高35cm的空间,可以放置脏衣篓。#卫生间 #干湿分离 #玻璃隔断




设计亮点
接着我把书房设计成开放式的,做了一个八角实木门套,和顶上的八角造型相呼应,书房的空间既和大厅相连,又有自己独立的区域。#书房 #墙 #书柜
