

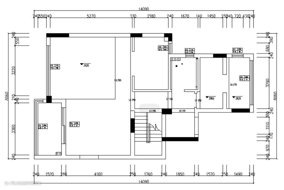
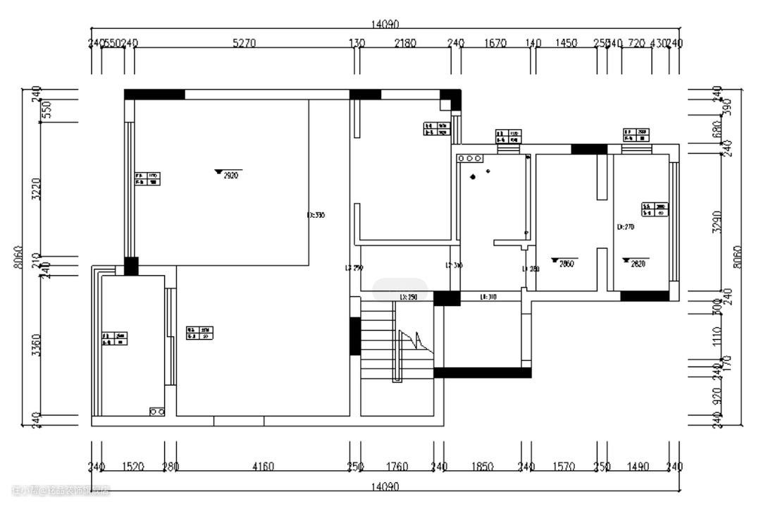
装修前
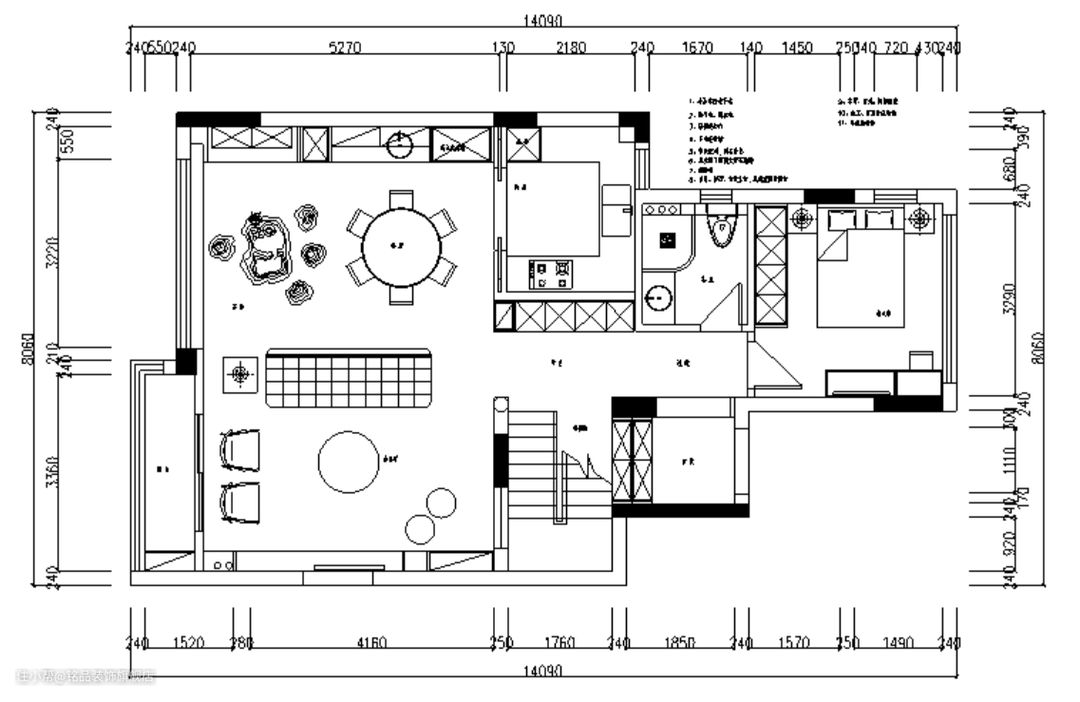
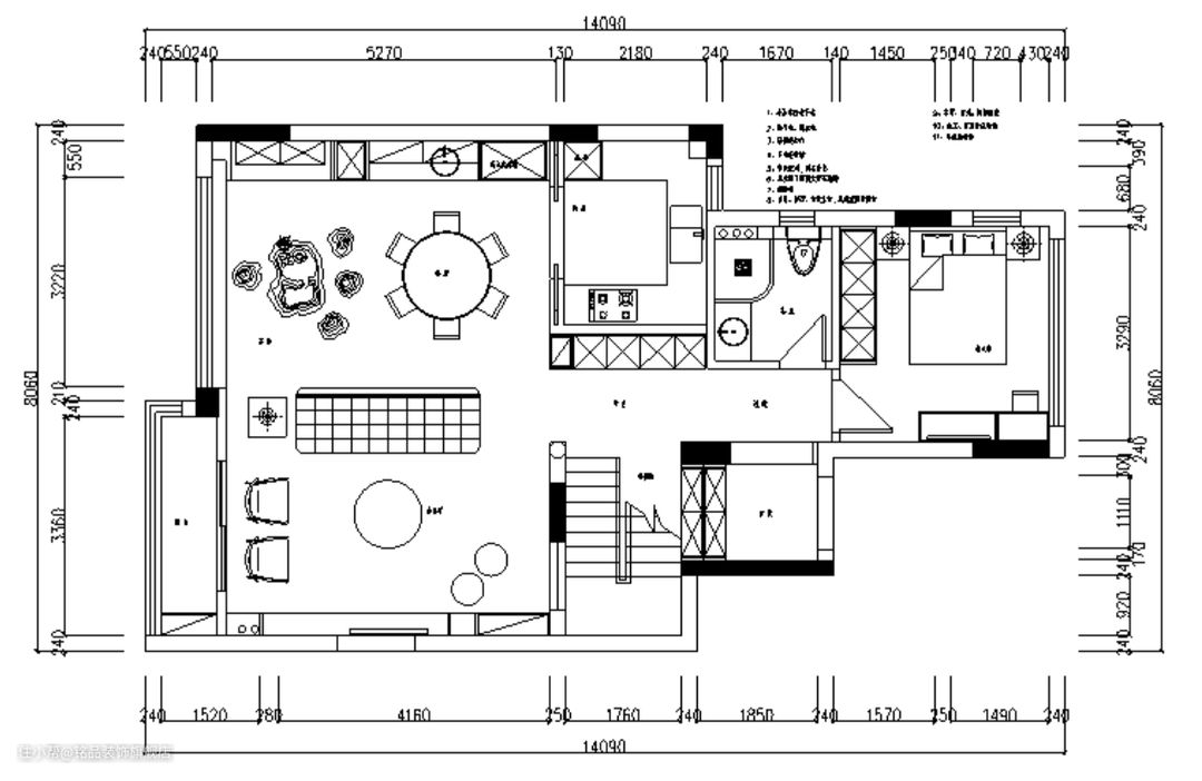
本期案例是跃层户型,空间配置四房两厅,面积180平,一楼主要做活动空间使用,配备客餐厅、厨房和客卧、客卫。二楼主要做休息空间。客餐厅是大横厅的布局,空间的采光和视野都比较好。空间多运用大理石、木饰面,皮革等现代的元素,营造现代风的高级气质,再通过一些摆件带来轻奢感。
装修后
设计亮点: ① 把阳台纳入客厅,打通公共空间,客餐厅做了大横厅的布局。 ② 一楼配备了见客卧,把空间打通,合理规划出客卧和客卫。 ③ 二楼空间没有大的改动,主要是合理规划,配备出三室两卫。 #户型 #户型图 #平面图

设计亮点
玄关造景墙做了半圆弧的处理,运用大理石和金属元素交相辉映,打造气场十足的入户端景。为了让视线没那么空洞,这里搭配了宝石绿的玄关桌+水蓝色摆件,透过光的媒介,传递着流动的生命力。#玄关 #玄关桌 #玄关造景








设计亮点
公区有大面落地窗的加持,采光面、通风、视野都有一定程度的扩大,再搭配无主灯+无吊顶设计,整个空间特别宽敞。 横厅布局将客餐厅合并,沙发不靠墙作为软隔断,让客厅形成洄游动线,有效增加空间的利用率,提升空间的格调感。 电视背景墙局部铺贴花色大理石,用来丰富墙面的层次感,黑色大理石地台落地,做电视柜使用。电视区的两侧墙面分别做了木饰面隐形柜,来提升公区的储物空间。 沙发选了灰撞橘色的皮质沙发,整齐造型很简约,真皮材质的质感和舒适度都很棒。茶几选了亚克力搭配大理石的双茶几,材质的混搭让空间质感更为丰富。#电视背景墙 #沙发 #客厅#客厅 #横厅 #沙发
软装搭配
绿色系的窗帘有种大自然的清新感,搭配大盆栽的绿植,可以净化视线让人心情愉悦。 心心念念沙发旁放一个落地灯,之前选的几款放上去总是差点感觉,选来选去还是经典设计的钓鱼灯不会出错



设计亮点
餐厅选了1.58米直径的圆餐桌,搭配白色和蓝色吃皮餐椅,简直配一脸呀。圆形的吊灯也是很吸睛,和餐桌做了呼应。 靠墙定制了嵌入式的冰箱餐边柜,柜子都上的反弹器免拉手设计,简洁中透露着藏不住的高级感。整墙一字型的餐边柜,收纳空间太大了,冰箱放这里还可以分担厨房的收纳压力。餐边柜中间留出的台面,做了一排插座和水吧台,方便后续用一些厨房小家电。#餐厅 #餐桌 #餐边柜

设计亮点
厨房布局采用的U型布局,橱柜柜门是灰拼棕的亚克力材质,不建议用肤感膜,油污沾上很难道理。吊柜做的门板下挂1cm,这样柜门外观简洁,并且开柜门的时候收不回直接触碰到柜门,避免做饭时手油油的。调味料瓶和日常用到的铲具采用了上墙收纳的形式,可以有效保持台面的整洁。#厨房 #橱柜 #U型厨房





设计亮点
主卧硬装上还是以白色调为主,背景墙做了木格栅+花灰色硬包墙,在床和背景墙的之间还加了L型的护墙板,可以有效保护家具和墙面的摩擦感,白色的护墙板让室内光线都变得明亮了许多。 床选择了一个棕色系的皮质床,高床背+直线条,带来身体上的舒适和视觉上的享受。床侧的空地放了把单人椅,方便日常有一个坐的地方。#单人椅 #床 #床头背景墙#卧室 #背景墙 #床




设计亮点
儿童房的背景墙做了上下拼色设计,浅蓝+深蓝的配色,很清爽,也适合男生。床侧定制了整墙衣柜,满足日常储物需求,床尾放了张学习桌,方便孩子学习做作业。#儿童房 #背景墙 #衣柜

设计亮点
卫生间做了L型的布局,墙面地面统一铺贴了灰色的瓷砖,简约大气又耐脏。台盆区做了镜柜+悬空柜,方便日常卫生清理,也有了储物空间。#卫生间 #镜柜 #干湿分离
