


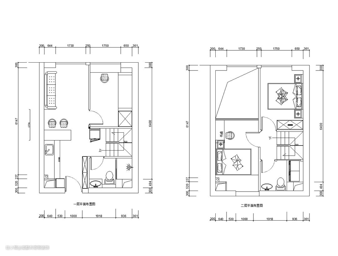
❤🧡💛💚💙💜🤎❤ 本案例位于成都市·海伦天麓,建筑面积60m²,套内面积30m²,层高4.2米,有梁的地方层高3.9米,是一套loft小公寓,长宽尺寸为5.655米*5.147米。 该公寓进行了二层钢结构搭建,选择1/4镂空,3/4搭建,钢混结构,承重更足,使用年限更久。屋主要求保留3个卧室,一二楼都要有卫生间,喜欢现代简约风格。设计师根据其需求,给出以下4点建议: 1.钢结构阁楼:因为层高不高,所以挑空设计会好很多,整个室内采光也会有所改善; 2.楼梯:保留3个卧室,楼梯就需要占地面积很小,而且还很实用,可以搭建U形钢结构楼梯; 3.采光性:室内层高4.2米,钢结构全搭建的话室内就会会暗沉,压抑感很强,所以全景窗户留了一半出来,挑空客厅设计,室内采光感得到了解决; 4.二楼次卧靠客厅这一侧,建议不砌墙选择全景玻璃隔断,室内采光通透感更好。 🔴【一楼空间:客厅 餐厅 厨房 卫生间 书房 入户玄关】 🟣【二楼空间:主卧 次卧 卫生间】





设计亮点
这套loft公寓楼梯选择U形楼梯设计,钢结构搭建而成,花纹钢板+槽钢的搭配,再做木基层+铺贴木地板,嵌入感应灯带+壁灯+实木玻璃扶手,楼梯下方做储物间,简约温馨又实用。



设计亮点
入户空间,右侧玄关鞋柜,安装了嵌入式灯条,感应式设计,拥有换鞋凳,通顶式设计储物十足。


设计亮点
厨房,一字形开放式设计,一整排吊柜+地柜,满足日常储物收纳功能。嵌入了洗碗机和电磁炉,上方吸顶式抽油烟机,水盆是台中盆,安装了抽拉式水龙头,日常清洁十分方便。






设计亮点
客厅,挑空设计,墙面简单涂刷白色乳胶漆,摆放两米多皮质沙发+投影仪幕布,提前预留了幕布盒子,白天看电视的效果也不错,纵享家庭影院。




设计亮点
主卧设计在二楼,考虑到私密性,侧边砌的满墙,旁边有通风的窗户,室内通透感不用担心。基本功能考虑到位:1.8米大床+推拉门储物衣柜+床头柜,空间上简约干净、整洁美观。





设计亮点
次卧在二楼靠挑空客厅的区域,全屋通铺木地板,衣柜嵌入式推拉门,可以满足四季收纳。卧室侧边全景玻璃窗,可以看到客厅的空间,视觉感很好。



设计亮点
书房,设计在一楼客厅旁边,空间面积将近8个平方,全屋木地板铺贴,顶部无主灯设计,效果简约自然。







设计亮点
一楼卫生间:干湿分离设计,悬空浴室柜+智能马桶+淋浴间。 二楼卫生间:悬空浴室柜+墙排式马桶+热水器+洗烘一体机,卫生间侧边不砌墙选择全景磨砂玻璃,透光不投影,空间感更好。
