

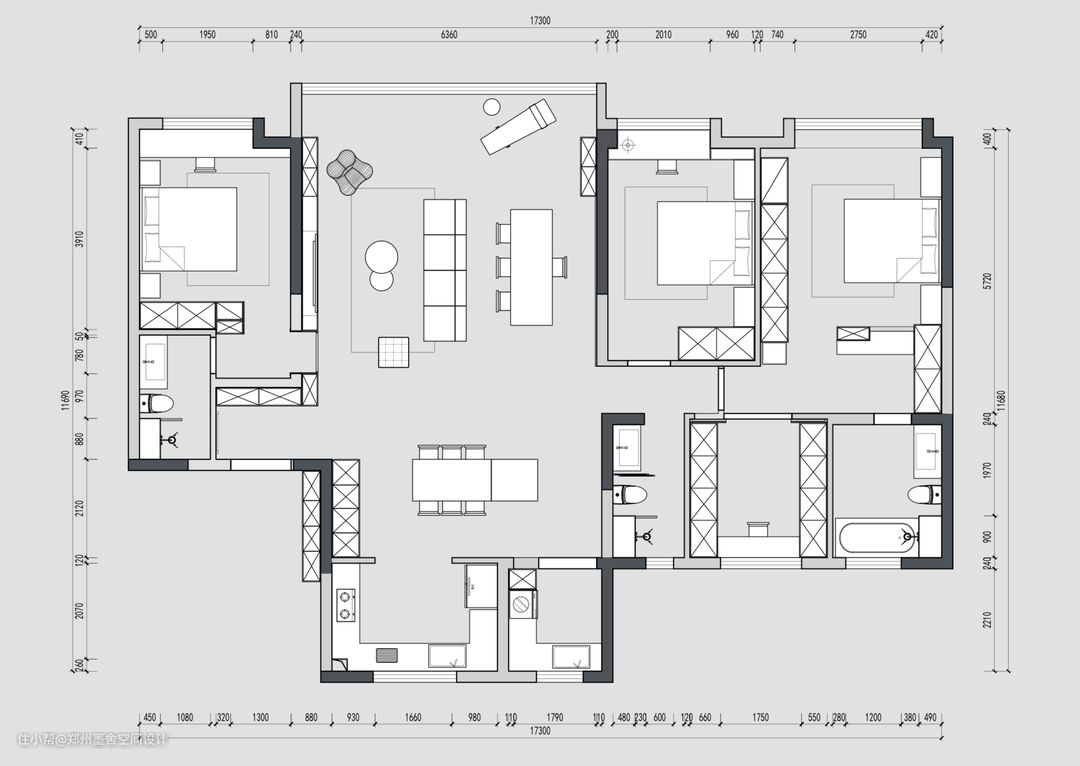
装修诉求 家🖤 室内的储物空间要多,需要收纳很多的物品,喜欢意式风格,简约大气。客厅吊顶想要有星空顶 ,和无主灯设计。此外,餐厅局域需要满足六人用餐。还需要一个单独的家政间,和主卧室的衣帽间,客卫干湿分离。 装修前: ★户型分析优点: 1.通过平面看,房屋结构还是比较方正和实用的,可以满足大部分的业主需求 2.室内承重墙较少,户型可规划性强,根据业主的需求,调整室内布局 3.整个户型动线通畅,南北通透 ★户型分析缺点: 1.部分空间面积较为局促 2.卧室门洞在客厅空间中 装修后: ★装修亮点: 1.鸡肋飘窗改书桌,空间利用嘎嘎棒。将飘窗台整体向外延伸20公分,设计悬浮式书桌,底部空间宽敞方便放腿,使用起来更舒服 2.主卧镂空挂衣区太实用了。次日穿搭或常穿的单品都可以挂在这里,拿取方便 3.南北通透+客餐厅一体,意式大横厅设计,秒变大平层。整个吊顶采用了无主灯设计,客厅做了悬浮吊顶,搭配暖光灯带,满足空间照明的前提下让整个空间也显得特别温馨,局部加了射灯及轨道灯作为重点照明,满足整个空间的光源设计 4.餐桌+岛台一体化设计,可以最大化利用空间。强调就餐仪式感的同时,也将入户与客餐厅动线分为两个回字形。岩板岛台+原木餐桌,呼应了整个大空间的主题色调,极具设计感。 5.入户玄关运用线条几何分割的穿插手法,营造出整个空间的质感与品味,让原本的入户玄关,多了些现代潮流感,演绎出时尚简约的现代格调 6.电视墙连次卧“隐形门”一体设计,将门完全隐形于墙中,保持一面墙的整体性,让空间更显大,比起传统室内门,隐形门颜值高,存在感低,可以通过隐形门拉宽墙面


■入户做玄关柜+换鞋凳一体,每天进出都很便捷。穿插式的玄关柜,黑色抽屉穿插咖色柜子,无把手反弹门设计,隐藏收纳又简约。下方镂空,放置常穿的鞋子,拿取方便。

■把茶台纳入客厅,作为茶室,空间显大的同时,增加空间的功能性,长辈在此处休闲饮茶,小朋友平时也会在这里写作业,家人的身影在这里时有交错。


■储物+展示背景墙,造型简洁,既满足了使用,又充满格调。电视背景墙下是大理石跳色,营造时尚又不失奢华的视觉效果。

■餐厨采用开放式一体的设计,原木餐桌和橱柜搭配白色地面,视觉上看起来干净简单,高级感十足上面一盏吊灯,增添用餐氛围。超大的六人餐桌足以满足日常全家人的就餐需求,就算聚餐也不在话下。


■卧室墙和地面的色颜统一协调,墙面选择奶茶色调,给人以舒缓轻松的体验感,床头背景墙使用木饰面和低饱和度的护墙板拼色设计,配合灯带营造氛围感,搭配造型简单的落地式床,床头背景墙添加吊灯,打破单调感同时营造一定的艺术气息,简约而不简单。卧室衣柜做一门到顶不积灰还美观耐看 。
