
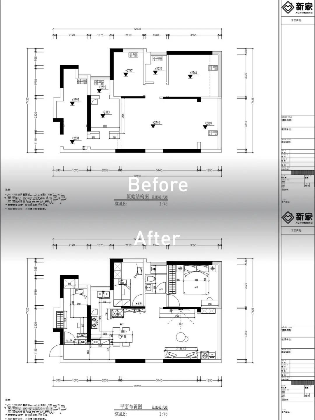
装修前
屋主的设计想法需求: 1、调整厨房原始格局设计,需要半开放式厨房,满足烹饪舒适需求; 2、需要增加一个小卧室空间,满足家里老人或客人临时居住需求; 3、客厅需要整洁有序,考虑做个整墙收纳柜,满足收纳整理需求; 4、阳台半封窗设计,需要同时满足通风和封闭性功能。
装修后
设计师改造设计: 1、厨房入门方向改变,拆除一侧墙体及入门墙体; 2、新增加的小卧室,新砌入门门头过梁及部分墙体,与柜体一同融合设计; 3、客厅与阳台打通一体化,因为楼层不高,选择推拉门外移形式,起到灵活遮风挡雨功能。


设计亮点
厨房半开放式的设计,改变了原始入门方向,现在向着餐厅区域,餐厨连接性得以提升,动线走向更加灵活舒适。厨房推拉门选择“吊轨门”,其主要特点在于在天花位置安装轨道和滑轮,有助于整体空间动线的平滑无碍。半开放式减少了厨房与客餐厅之间实体墙隔断,采用透明玻璃推拉门作为隔断,空间增大,视野开阔,让空间变得开阔、明亮,在与餐厅备餐、用餐过程中,无需长距离传递备菜,缩短了动线,在使用功能上也更加便捷,大大提高了烹饪效率。



设计亮点
餐边柜的设计,按照业主的需求点出发,左侧预留空间刚好的冰箱位置,满足冰箱镶嵌入内,右侧为常规餐边柜设计,中空格放置壁挂管线饮水机,在水电设计施工的时候,同时预留好水位和电位,使用管线饮水机的时候,需要注意配合净水器同时使用,这样在满足不同温度热水的时候更加健康,免去了频繁添水的麻烦,这让我们不再需要每天去关注水量,节省了时间和精力。餐桌位置得益于半开放式厨房的设计,预留了一个小插座的位置,用于满足日常在家吃火锅的时候灵活供电。


设计亮点
入户进门是走廊型玄关空间,左侧是新增加的小卧室,右侧安装上异形洞洞板,可以满足进门后日常小物品的随手放置,可以用来挂衣服和包包,原木色的板材颜值也是满满,满足小户型空间利用。 走廊型的玄关设计,需要借助原始户型的纵深感,把玄关柜与墙体融为一体,让整个入户玄关空间看上去舒适美观。




设计亮点
客厅的整面电视背景墙都是柜体,相较于传统落地电视柜,增加了充足的储物容量,合理分配空间,杂乱物品都能轻松收纳入柜。柜体两侧不同功能区分,左侧是玻璃展示柜,右侧是大空间家政收纳柜,满足像吸尘器和清洁用具的收纳放置,电视上方柜体部分增加可活动层板,按照所需存放物品灵活调节高度,满足一些不常用的物品摆放。 在水电设计的时候,预埋好了一根50管,电线和网线就从50管里面直接穿到下方抽屉里的插座,很好的隐藏了起来,同时下方抽屉是下翻门板设计,这样才能满足插座隐藏在抽屉里面。


设计亮点
在1m²左右的空间面积,阳台柜上柜没有做的太满,增加了一个长条开放格,整体视觉空间通透,洗手台紧邻窗户,有更大的台面操作空间,阳光照的到洗手台位置,干湿条件得到改善,右侧是洗烘一体机,不会显得局促,使用的时候会更加舒适顺手。



设计亮点
卧室以简约的空间氛围,保持优秀的采光效果,加以独立式梳妆台,轻便小巧不会占用太多空间,同时独立式的梳妆台还可以替代床头柜,满足梳妆台的简单收纳需求。在面积有限的情况下,在卧室门的一侧设计一字型柜体,这样日常拿去衣物会比较便捷,而且是衣柜到顶的设计,顶部可以放些不常用物品,比如被子、换季的衣物和一些杂物等等,充分利用垂直空间,上下同时很好的兼顾到不浪费



设计亮点
儿童房是一个定制的L型上下错位床设计,同时下铺还是一个榻榻米的设计,占地面积合理充分利用,整体设计见缝插针地放置了柜子、书架、写字台,上铺高度和护栏安全性提升,节省空间的同时又大大降低了安全隐患。

设计亮点
卫生间面积空间较小,在淋浴区的设计上没有做淋浴房隔断,选择的是在干湿区安装挡水条,同时向地漏位置做一定的坡度,来实现快速排水,地面死角较少,更加方便日常清理。浴帘隔断的效果在日常使用上更加灵活,浴帘使用时间长了,潮湿发霉还可以简单更换新的,价格上也是便宜,在选择材质的时候需要多注意浴帘垂度和耐用性,磁吸聚酯纤维材质性价比较高,在日常淋浴的时候不容易贴在身上。
