设计亮点

装修前
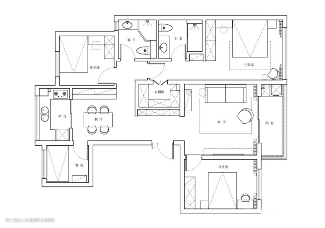
本案户型结构方正,南北通透,四房两厅一厨两卫的格局,原始户型刚好满足屋主的需求,又因为是精装交付,所以户型结构没有进行拆改。
客厅





设计亮点
客厅没有太多冗杂的装饰元素,大道至简营造平和静谧的居家氛围。米开朗基罗曾说:“美是净化过剩的过程,人生就是如此,要想活的美,就得删繁就简,去掉多余的东西,生活越是简单,内心才能越绚烂丰盈。” #现代 #客厅 #精装房
软装搭配
遵循删繁就简的原则,隐形门和电视背景墙融合,空间更加统一和整体,白色成品电视柜点缀,原木+白一直都是最舒服的配色。#现代 #客厅 #精装房 #隐形门 #电视背景墙
餐厅


设计亮点
原始开发商交付的木色门套没有进行调整,深色的餐椅与吊灯相映成趣,给人一种落落大方的舒适感,充满力度却不张扬的简约线条,极具疏离感与冷静感,营造精致的气质。#现代 #餐厅 #精装房
软装搭配
上下分段的餐边柜设计,满足电器的嵌入又增加了台面的收纳和操作空间,满足小家电的使用及收纳便利性。
主卧



设计亮点
卧室以黑白灰为主色调,配合灯光、线条元素营造利落现代睡眠空间。#
软装搭配
打破常规的衣柜设计,减少空间的呆板和单调,丰富收纳空间。
