
本项目为90后小年轻来杭州打拼的首套房,常住成员只有业主以及小猫猫,另外还考虑将来伴侣以及未来小孩的成长空间。业主拥有对生活品质都有着极高的追求,希望打造一个精致舒适的居住环境。 我们仔细分析现在和未来的需求之后,把带有现代简约+法式的设计思维贯彻到其中,以舒适为核心,塑造高级温暖自由的生长空间,让屋主能够在空间中摆脱平日工作及回归到生活的本真。不论生活多么疲倦,保持浪漫的感觉,注重生活的方式,这便是我们想呈现的状态,正如优雅,是平凡生活里永不过时的仪式感。




设计亮点
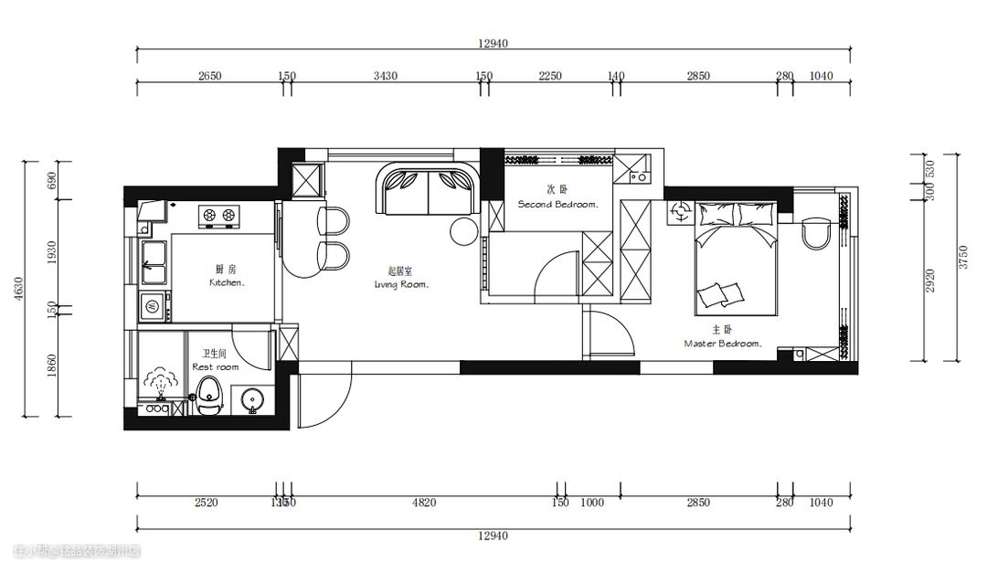
客厅是比较狭长的户型,如果用传统的沙发靠墙,客厅会被分的很碎,业主的接受度也高,直接沙发靠窗摆放,如今客厅满是阳光的味道。米白色的沙发,也自带温暖和慵懒,和法式的氛围融合的很好。 电视背景墙融入法式碎花,整体突出法式复古气质,精致优雅的石膏线条和小角花游走于顶墙纸上,比起纯粹的留白更添质感,碎花壁纸搭配线条感护墙板,中古的电视柜,也是家里的美景。

设计亮点
厨房外做了一个小吧台,这就是餐厅了,延伸出的胡桃木桌板,再加2个高脚凳,满足1-2个人的就餐。为了放置油烟的外散,桌上加了一组推拉窗,平常做饭的时候拉上窗,也能放置油烟的扩散;打开窗户空间又很透亮。

设计亮点
厨房是L型的布局,一个人使用绰绰有余,洗衣机也安排在厨房里,留出日常洗衣的空间。橱柜用了拼色的设计,上柜米色拼下柜紫色,柜门自带拱门,法式的仪式感出来啦~厨房的管线也用玻璃罩隐藏起来了。



设计亮点
床头清新的紫色和复古花鸟壁纸,让人在城市节奏中享受自然的空间想象力,拱形的元素和角花吊顶走边,带来法式独有的浪漫感。空调选了挂机,但是有了遮罩帘,多了些美感。 床是空间唯一的深色系,床头独特的拱形设计,浓浓的复古味,像4扇小窗户一样,外观上美感十足。阳台包进了卧室,做了拱形墙,墙面过渡的很流畅柔和,梳妆台安排在这里,拥有充足的光线,全身镜也能满足日常照镜子的需求。


设计亮点
次卧作为客房使用,床选用了榻榻米的形式,床头和床底都有收纳空间。进门右侧做了一组衣柜,承担衣物收纳的需求,另一侧放了斗柜,既能当书桌使用,也可以收纳些物品,一举两得。



设计亮点
卫生间舍弃传统淋浴房,用玻璃砖做出隔断,既打造干湿分离的效果,又不影响室内的采光。台盆柜选了镜柜,柜下也有收纳空间,日常洗漱物品都能做到隐形收纳。
