
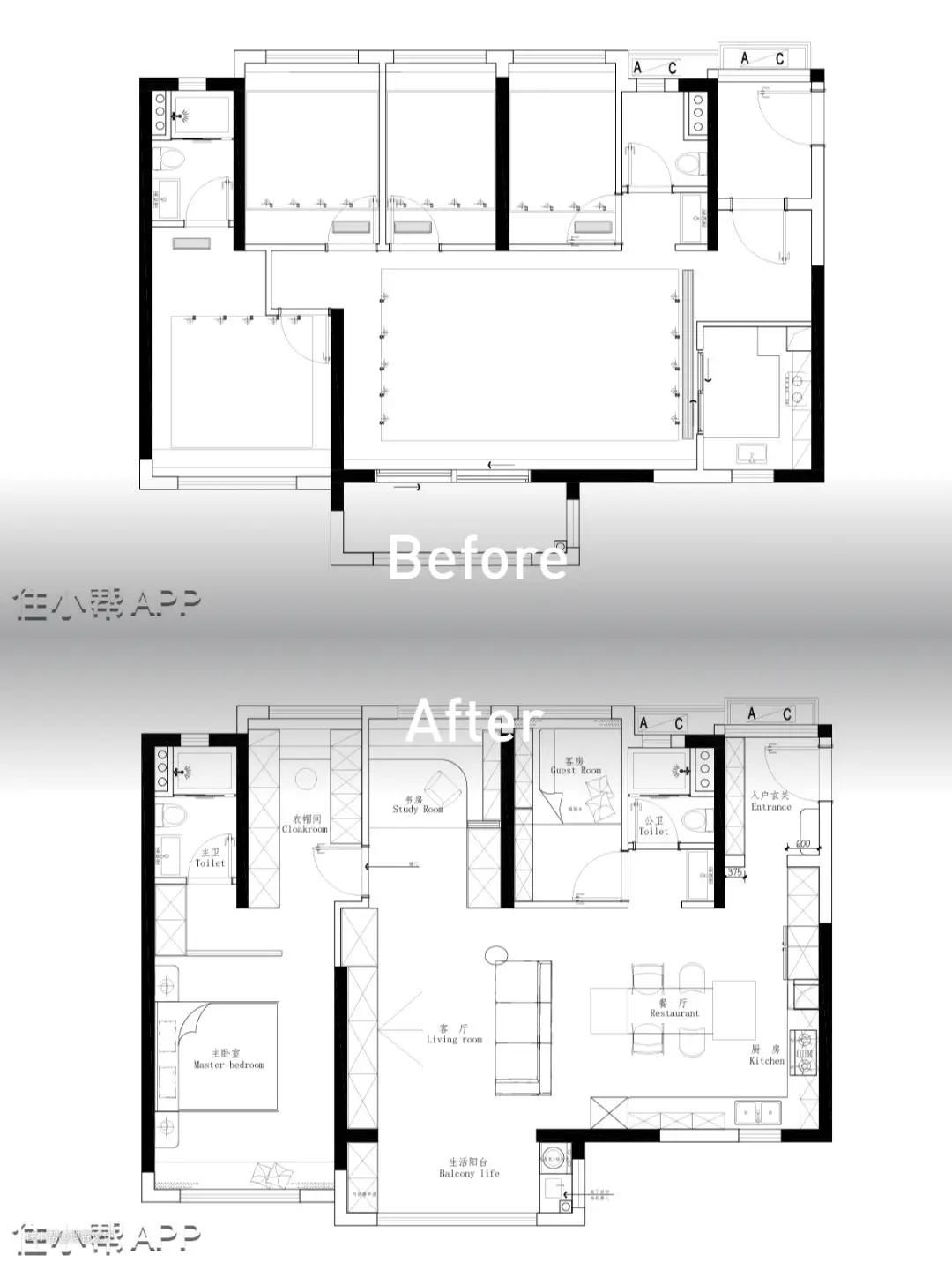
装修前
①原本的厨房客餐厅都较小,考虑打开餐厅、客厅、书房形成连贯通透的大型洄游动线 ②收纳空间不足,考虑增加大量收纳柜,增加储物空间 ③缺乏独立衣帽间 ④男业主需要电竞区
装修后
①餐厨一体化设计,有效扩大视觉效果,优化生活动线,加强社交互动性 ②阳台封窗,扩大客厅可用面积,改善采光通风 ③主卧采用套房模式,配备独立卫生间和独立衣帽间丰富卧室功能,满足日常需求 ④释放一间卧室,将书房改为半开放,让公共区域的生活动线及视野优化(书房私密或开放随意切换)








客厅以饱和度较低的色系为主,营造柔和宁静的室内氛围,选择墨绿色皮面沙发点缀,可以达到弱化灰白色的单调和冷硬感,呈现温馨舒适的视觉效果。 将阳台纳入客厅后,扩大室内面积,拉伸空间纵深感,视觉上也更加宽敞通透。阳台设置洗衣区(洗衣机+烘干机),另一侧设置实木矮凳搭配简约边几,闲雅静坐于此,尽享休闲放松一隅,丰富生活场景,赋予空间更多可能性。 电视背景墙和书房背景墙连贯,同样的色调与材质,保证空间的统一性和整体性,视觉得到更进一步的延伸。电视背景墙上大小不一的开放式储物柜,用于分类收纳。



餐厅、客厅、厨房相互连通,开放式的空间布局,带来极为通透的观感,餐桌作为中岛分割并形成大型的洄游动线,构建一个互动频率极高的家庭核心区。 餐桌岛台一体化设计更显协调感,扩大空间,提高利用率,增强家人之间的互动交流,拉近彼此的距离。



L型橱柜台面结合收纳高柜,收纳蒸烤箱,实用功能强大,同时为厨房提供了良好的操作空间以及充足的储物空间。 餐厨一体化能够让一家人在下厨时互动交流,厨房的功能不再是单一的烹饪,而是增加了社交属性。





主卧是做套房,配备衣帽间,扩容储衣储物的空间,弥补空间不足。床尾做了定制的隔板,兼具收纳展示等功能需求。 飘窗铺上飘窗垫,钢琴键的造型,营造舒适温馨的氛围感, 轻薄的纱帘最大限度的展现窗外的美景与引入自然光线,令房间更加通透舒适。

将书房改为半开放,实现客厅空间的通透性以及客厅、书房的互动性。依靠窗的位置,定制悬空书桌,兼顾日常的办公与学习。
