
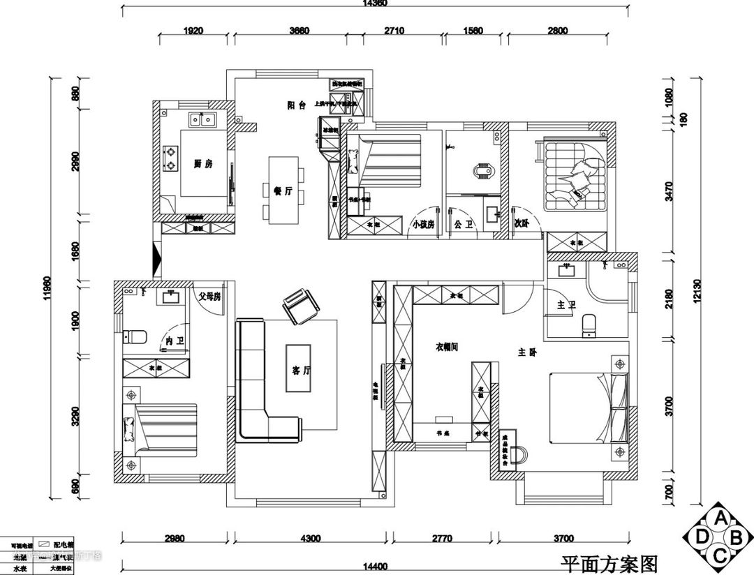
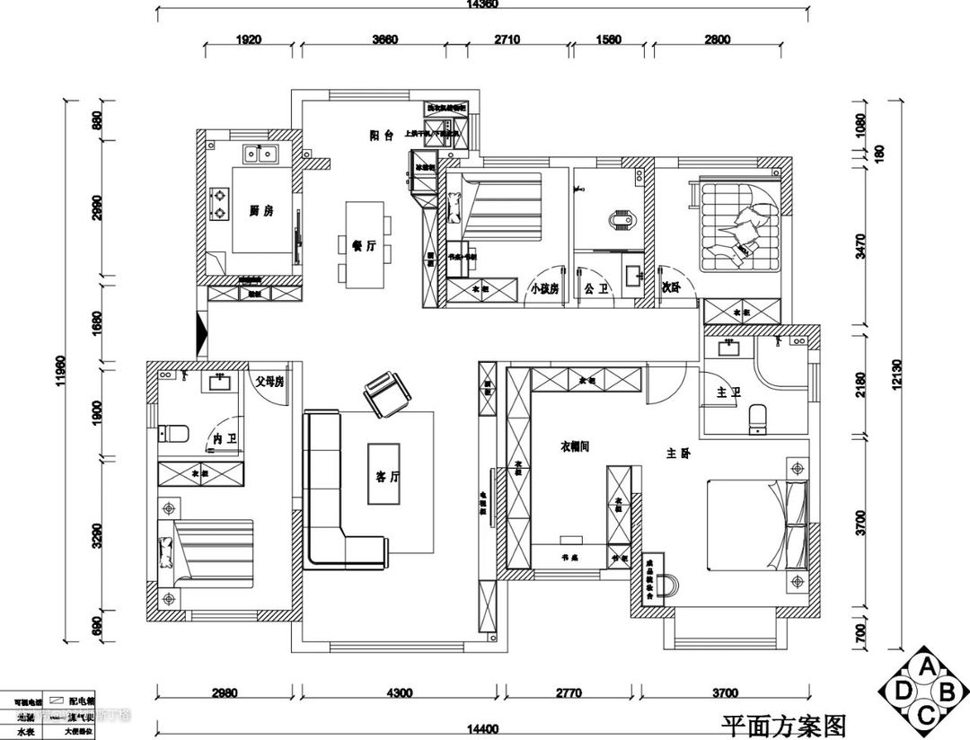
今天这套案例,就是斯丁格设计师精心打造的160㎡现代轻奢质感雅居。全屋以清润的黑白灰色调配合通透的平层户型,大气感油然而生! 除此之外,室内定制长达4.8米的储物式电视墙,以及合并两间卧室、打造带步入式衣帽间的主卧大套房等设计,也💯%满足了屋主对于功能的需求,十分值得借鉴。 【设计亮点】 1.无主灯布局不压层高,配合地面通铺,尽显大平层大气感; 2.打通一间次卧做主卧大套房,拓展出步入式衣帽间,双面环绕储物柜收纳力超强,临窗居中定制极简梳妆台,并用镜子替换其中两扇柜门,实用性MAX。



设计亮点
客厅的设计真是让人眼前一亮!简洁而又不失格调,白色和棕色的搭配恰到好处,显得既温馨又明亮。大理石纹理的地板,搭配深色木纹的墙面,让整个空间更加有层次感。长方形白色桌子简洁大方。
软装搭配
沙发是浅棕色的,舒适又美观,配上多个抱枕,让人一看就想坐下来放松一下。对面的大型内嵌式电视,不仅提供了极佳的观影体验,也让整个客厅更加现代化。

设计亮点
长方形大理石餐桌简约而大气,桌面光滑如镜,倒映出室内的光影。四把椅子分别采用红色和白色,色彩对比鲜明,给空间增添了活力。 💡嵌入式照明设备和壁灯为餐厅提供了充足的光线,营造出温馨舒适的氛围。 🌸大理石纹理的瓷砖地板,既防滑又耐磨,为餐厅增添了一抹豪华感。
软装搭配
📚餐边柜设计巧妙,多层隔板可以放置各种书籍和装饰品,不仅实用还充满艺术感。

设计亮点
灰色与白色的主色调,犹如一曲优雅的交响乐,在空间中轻轻奏响。 🌈地面铺设的大理石纹理瓷砖,增添了一份自然与质感。 🌸橱柜则是白色的,简洁而大方。
软装搭配
💦左侧的水槽设计得十分人性化,方便我们清洗食材和餐具。 💖墙壁上安装的多个灯具,提供了充足的照明,让厨房的每个角落都充满了温暖与光明。

设计亮点
主卧采用木质和米色的搭配,不仅显得温馨,还给人一种自然放松的感觉。这样的色调搭配,不仅适合休息,也能让人在忙碌的生活中找到一丝宁静。
软装搭配
其次,灯光的设计也是亮点。长形的LED灯条不仅提供了充足的照明,还营造出了一种柔和的氛围。在这样的灯光下,无论是阅读还是休息,都能让人感到舒适和放松。

设计亮点
👗👠 首先,映入眼帘的是那排黑色的玻璃门衣柜。黑色,代表着稳重与神秘,而透明的玻璃门则打破了沉闷,让人一眼就能看到里面的衣物和配饰,整齐又方便。 🎨 整个衣帽间的色调以浅色为主,给人一种宽敞明亮的感觉。墙面和地板的色调搭配得恰到好处,既不会过于刺眼,又能营造出一种温馨舒适的氛围。

设计亮点
🌈卫生间采用灰色与黑色的主色调,让空间显得既低调又不失奢华。大理石纹理的瓷砖,从墙壁延伸到地板,不仅提升了空间的质感,更给人一种干净整洁的视觉享受。 💦双水槽的设计,满足了日常洗漱的需求。 🚿最吸睛的莫过于那个大型的玻璃淋浴间。透明的玻璃设计,让空间更加通透,也增加了视觉的延伸感。黑色的淋浴头,更是提升了整个淋浴间的品质感。 💡天花板上嵌入式的照明灯具,不仅提供了充足的照明,更为整个空间增添了一丝现代感。

设计亮点
次卧的色彩搭配很和谐,以米色和白色为主色调,给人一种清新脱俗的感觉。床头板选择了棕色,与整个房间的色彩完美融合,营造出一种低调而又不失格调的氛围。 🌈落地窗的设计让卧室充满了自然光,窗帘半拉开,透过窗户可以看到室外的景色。 🌲木质地板的铺设,让整个空间更加温馨舒适。
软装搭配
💡墙上的金色吊灯绝对是亮点之一!它的造型超级独特,由多个零件组成,仿佛是一个艺术品,点亮了整个空间。

设计亮点
长辈的房间用的是比较简洁的装饰,以白色和木色为主,让人瞬间感受到家的宁静与舒适。 💡金色的吊灯,造型简约而现代,为房间增添了一抹亮丽的色彩。 🌸半透明的窗,为房间增添了一份浪漫与优雅。当阳光洒进房间,窗帘轻轻飘动,仿佛在为这个空间注入生机与活力。 🌳浅色木地板,让整个空间更加明亮、宽敞。
软装搭配
🎨墙壁上,一幅大型人像画引人注目。古典的装束,仿佛穿越时光,带我们回到古希腊或罗马时期。

设计亮点
🌈🏠书房采用的是暖色调的基调,让人感觉温暖而舒适。 🎨🖼墙壁和天花板上的金色装饰线条灯,仿佛给空间披上了一层奢华的面纱,显得既高贵又不失雅致。
软装搭配
🪑🍊那张椭圆形的大理石桌子,搭配橙色的椅子,简直就是现代与复古的完美融合。 🗿黑色的人物雕塑,静静地立在角落,为整个空间增添了一丝神秘和艺术感。


设计亮点
卫生间采用灰色大理石瓷砖的墙壁和地板,让整个空间显得高级感十足。👑 玻璃淋浴间采用了黑色边框,既增添了神秘感,又让整个空间显得更加宽敞明亮。
软装搭配
中央的深色木质洗手台,简约而优雅,与整个空间的设计风格完美呼应。🪑
