

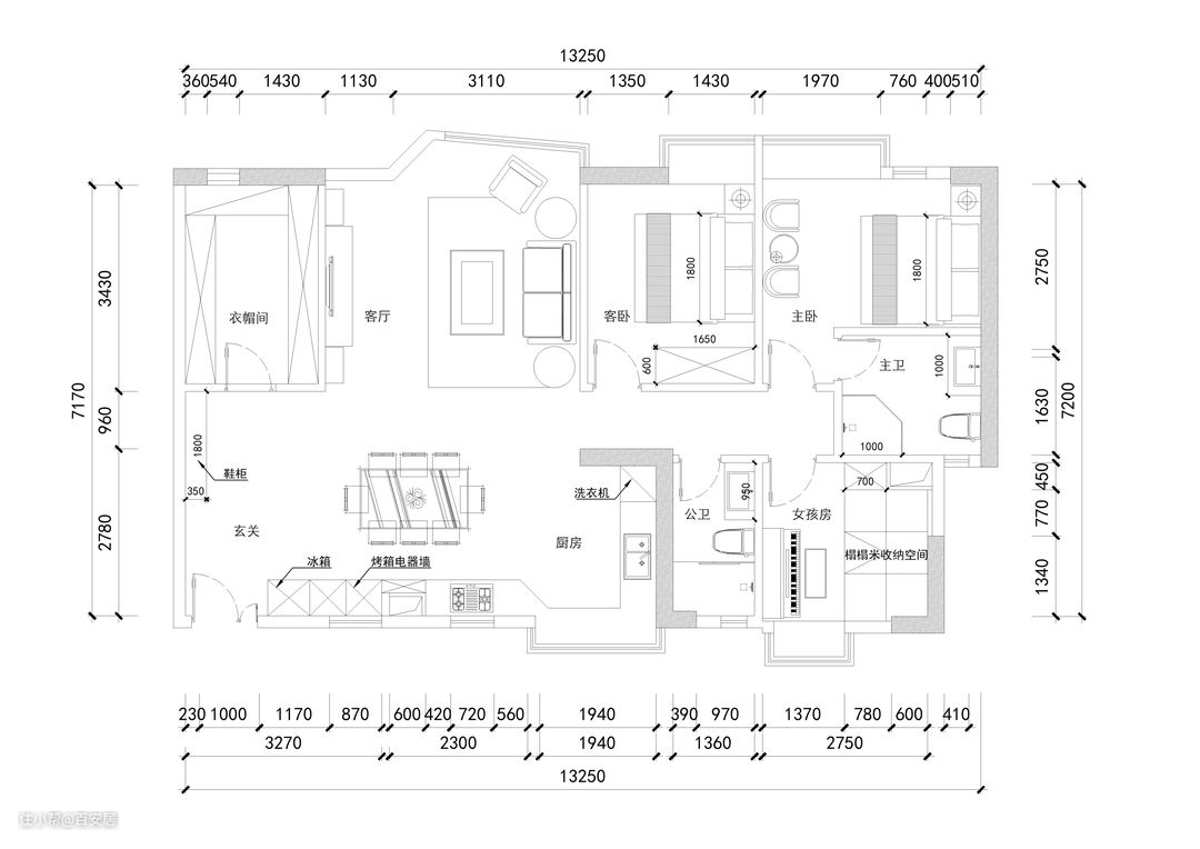
本案位于广州市珠江新城,看起来简洁的装饰,其实背后凝聚的是设计师再三斟酌的考虑和新意。与业主属于第二次设计合作,所以彼此之间有更多的了解及信任。业主对生活有着自己的追求与想法,设计师运用自已的设计手法来满足业主。公共活动区域采用大面积的白色简洁明亮,留出独立多功能房则以储物收纳为主。水蓝色的主题背景墙面,纯净、清爽,营造出一个安静舒适的居住空间。



设计亮点
白色的整体色调,胡桃木与白色相拼接的家具,沙发背景刷了一个水蓝色的墙面漆,客厅营造出一种清新、宁静又充满现代感的居住空间。水蓝色这种色彩既不会过于刺眼,也不会显得过于沉闷,恰到好处地营造出一种轻松愉悦的氛围。当阳光透过窗户照射进客厅,水蓝色的墙面仿佛泛起层层涟漪,让整个空间都充满了生机与活力。在这里,无论是与家人围坐沙发聊天,还是独自一人品味一杯咖啡、阅读一本好书,都能感受到那份美好与舒适。



设计亮点
餐厨一体化的设计,是本案家居设计的一大亮点。走进他,你会被那种简约而不失格调,实用而不失美感的氛围所吸引。 实木餐桌椅居中摆放,餐桌是简约直线条款式,餐椅采用了布艺材料,质感柔软,坐感舒适,这样的家具不仅实用,而且能够提升整个空间的品质感。边烹饪边与家人聊天,既可以做美食又可以增进家人们的感情真是个不错的设计方案。

设计亮点
开放式厨房打破了传统厨房的封闭格局,让厨房更加通透、明亮,增加与餐厅之间的的互动交流。L型的料理台,增加了电器高柜,合理布置了冰箱与洗衣机,沿墙体摆放把餐厅牢牢的包围了起来,餐厅有了包裹感,橱柜更是得到了很大的储藏空间。纯白色的烤漆门板隐形拉手,嵌入式的筒灯提供了充足的照明,让厨房空间更加明亮、舒适。


设计亮点
业主对于卧室的追求是舒适与宁静,但又想有个人的风格。飘窗上铺设了白色大理石作为台面,灰色窗帘,台面上加入了一些亮色系的抱枕,装饰性花瓶,还有一盆绣球花为卧室增添一丝活力和趣味性。实木家具的选用保障了卧室环境的健康与安全,采用米白色的墙面乳胶漆,并单独把床背景刷成湖蓝色,简单的搭配营造了安静放松的氛围。

设计亮点
现代风的卫生间讲究实用与美观并存,力求打造出一个既舒适又实用的空间。墙地一体的瓷砖整体性很强,米色打底天然大理石纹,同一个方向排列犹如瀑布视觉效果完美。顶面白色铝扣板安装灯具,光线通过墙面反射给人一种宽敞明亮的感觉。卫生间分区很清晰,钢化玻璃不锈钢淋浴房,洁白坐便,胡桃木门板纯白色台盆面,配色简约大方。
