




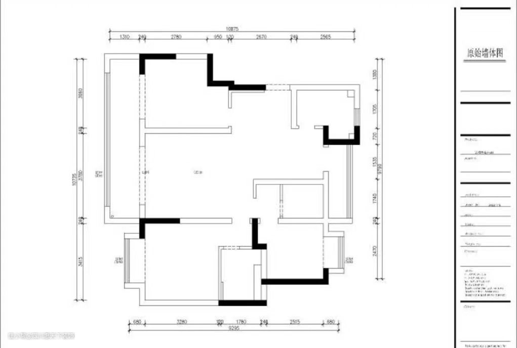
装修前
设计说明: ①这个精装房基本上进行了全部重新拆除的改动(厨房保留) ②地板拆除后选用了浅橡木色的地板,全屋做了无主灯的设计 ③破除了原有厨房的隔墙,做了开放式的餐厨空间(小面积推荐) ④没有做复杂的电视背景墙,整屋在硬装的改动上做了简约化的设计 ⑤阳台虽然打通了,但通过设计与功能划分,保留了2个看似独立却有关联的效果 ⑥对外围进行了干湿分离的处理,确保一家人使用起来更加方便。 ⑦家里的所有软装都是设计师帮助屋主网络挑选的,性价比很高,有需要的可以聊。
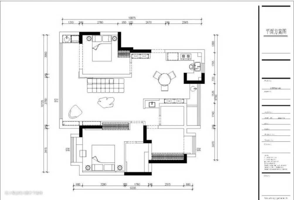
装修后
①基本上进行了全部重新拆除的改动(厨房保留) ②地板拆除后选用了浅橡木色的地板,全屋做了无主灯的设计 ③破除了原有厨房的隔墙,做了开放式的餐厨空间(小面积推荐) ④没有做复杂的电视背景墙,整屋在硬装的改动上做了简约化的设计 ⑤阳台虽然打通了,但通过设计与功能划分,保留了2个看似独立却有关联的效果 ⑥对外围进行了干湿分离的处理,确保一家人使用起来更加方便。


设计亮点
美观兼实用 是玄关的最佳诠释 柜门线条流畅利落,加上开放格点缀 更是增加了入户空间的层次感






设计亮点
整体打造的木质感空间相呼应 结合舒适的布艺沙发 既能享受到舒适的坐席,又能感受自然舒适的原木风气息 客厅阳台一体化的设计可以引入更多采光,更好提升空间的通透感 整体采用了米白色为基调,让整个空间色调一致 更有观赏性和美观性 客厅地面我们选择了原木色地板 拉升室内空间的同时,也能很好地增强视线效果 PS:客厅没有安排电视,因为在客厅侧面阳台区,做了一个嵌入式投影





设计亮点
民以食为天 其实一个好的就餐环境,真的可以增加食欲 餐厅+定制柜的设计实用又美观 以定制收纳柜为餐厅背景 既有收纳功能,还能让整体空间的层次感更强

设计亮点
厨房是自带的,拆除了移门,做开放式。内部没有做过多的改动。




设计亮点
卧室保持了整体空间的色彩风格 柔和、舒适的色调让人置身于此感受到更多的温馨与治愈 含蓄、简单、百搭,共同营造出了轻松舒适的睡眠氛围 柜门拉手选择了极简隐形式拉手,色调也与整个空间形成呼应 使用简约而实用的设计理念 体现出时尚与实用的风格。 利用飘窗自然而然的打造了一个兼顾办公的书房功能。 因为房子建筑面积之友113,实际使用面积并不大 因此,如果单独做一个书房出来,非常的浪费且利用率不高。



设计亮点
浴室采用了干湿分离的布局设计 上厕所和洗漱互不打扰 既增加卫生间空间利用率,也能更方便处理卫生问题




设计亮点
传统的封闭阳台,渐渐退出历史舞台了 如今阳台的功能已经变得多样化了 它不再限于晾晒衣物,堆积杂物 只要把阳台布置好,开放式阳台 就是一个休闲放松的不二之地 种绿植,晒太阳,在欣赏到大自然美景的同时 还能呼吸到新鲜的空气
