




装修前
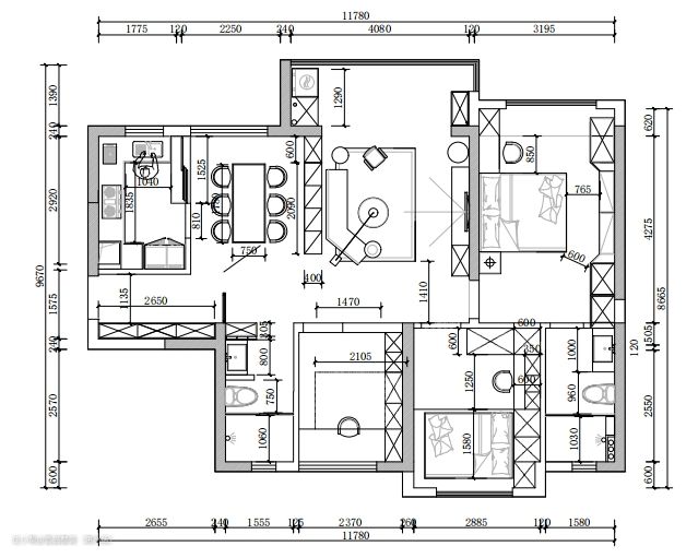
原始户型解析: 1、户型很周正,后期软装摆放较容易,但有一个问题是入户到主卧的走廊空间太过浪费 2、厨房小空间采光一般,建议冰箱内置 3、餐厅空间太小,没有位置安装餐边柜 4、横厅布局,整个视野很开阔,99方的空间更加宽敞明亮
装修后
改造方案解析: 1、入户狭长空间做一体柜设计,玄关+餐边柜+公卫半墙端景,三者合为一体 2、厨房与餐厅拆掉做开放式,餐厅这边的窗台前做矮柜,满足采光空间 3、客餐厅吊顶做无主灯设计,灯光点缀营造全屋氛围感




设计亮点
客餐厅吊顶连通做无主灯设计,中间筒灯+线形灯满足灯光需求,侧边内嵌灯带营造悬空效果。简单电视柜做悬空造型,侧边深木色木格栅增添不对称的美。
软装搭配
客餐厅中间摆放2.8m的深绿色沙发,将客餐厅两空间划分开。搭配米白色不规则茶几,褐色边几,双色对比互相衬托,营造浪漫的柔顺的生活气息。




设计亮点
餐厅与厨房打通做餐厨一体设计,窗台矮柜保留采光面,与橱柜的衔接处做斜切柜设计,中间岩板餐桌与黑白配色为主,简约更大方。





设计亮点
为了视觉上提高空间,将厨房的门洞拆掉做开放式,与餐厅做一体化设计。里面U型布局,冰箱内置,旁边的空隙做竖排到顶柜,个性化设计加强全屋的储物面积。




设计亮点
主卧开间只有3.2m,为了增加储物,床尾安装整排到顶柜,个性化设计的凹字造型,在中间床体位置内凹,保证有70以上的通过空间。床头连接窗台做悬空化妆桌,增设开放竖柜,化妆品的拿取更方便,摆放也很详细。





设计亮点
为了充分利用空间,次卧定制高脚床设计,连接飘窗台,将飘窗60cm宽的空间都利用起来。床尾定制到顶柜,增加储物。门边的到顶柜连接到床头做转角书桌一体柜,留空设计方便后期的使用空间。




设计亮点
公卫将浴室柜单独拎出来做三分离,无钱拆掉与玄关柜做一体柜设计,底部端景+上部玻璃砖墙,确保采光更显设计感。里面淋浴区在墙上砌墙做壁龛。内嵌铝材壁龛,黑灰搭配更高级。



设计亮点
阳台与客厅打通,两边圆弧拱门起过渡作用,里面安装到顶柜,内嵌洗烘机,提前确定好款式、尺寸、规格,也就能做到这种完美贴合的状态。
