3D全屋

方案解析
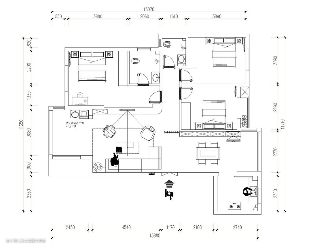
客户对施工工艺有一定的要求,喜欢色彩选择搭配明朗干净的感觉,洁净的清爽感。 客户对房屋原始结构的空间设计感到不合理,着重关注客厅、卫生间与卧室的空间设计,在保证有充足的个人空间前提下,也要满足正常的通风采光与收纳储物。 因此,在设计过程中,将客厅与阳台,餐厅与杂物间的墙壁打通,形成了一整片贯穿的空间,提高了整体的纵深感,而在餐厅旁的次卧,则是将外墙的位置在不影响机器设备安放的前提下,对齐另一个次卧,扩大了空间的使用面积。


客厅

次卧A

餐厅

厨房

主卧

次卧B

卫生间



客户对施工工艺有一定的要求,喜欢色彩选择搭配明朗干净的感觉,洁净的清爽感。 客户对房屋原始结构的空间设计感到不合理,着重关注客厅、卫生间与卧室的空间设计,在保证有充足的个人空间前提下,也要满足正常的通风采光与收纳储物。 因此,在设计过程中,将客厅与阳台,餐厅与杂物间的墙壁打通,形成了一整片贯穿的空间,提高了整体的纵深感,而在餐厅旁的次卧,则是将外墙的位置在不影响机器设备安放的前提下,对齐另一个次卧,扩大了空间的使用面积。








