
装修前
房子是一个复式毛坯的空间,原有的建筑结构空间一楼和二楼都比较零碎,入户玄关的空间很小,厨房的面积也不大。二楼主卧正对出去是一个加气站,环境较为复杂也比较吵闹。
装修后
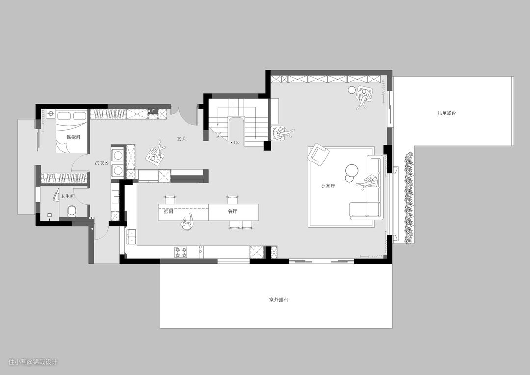
我们重新优化了空间的布局,将入户玄关扩大,厨房空间扩大并且做了开放式的厨房,二楼卧室和原有的次卧做了对换,还将原有挑空的空间做了楼板加建,增加了一个次卧的空间。通过整体的布局优化,让整个一楼和二楼的空间变得更加的合理,更符合业主的真实需求。

客户需求: ①:入户玄关比较小,鞋子比较多,满足不了储物~ ②:厨房太小,不够使用~想做开放式的厨房空间~ ③:一楼需要一个卧室未来做为保姆间或者是客房使用~ ④:卫生间只需要一个就可以了~ ⑤:客厅的空间比较大,想保留空间的这种大尺度感~ ⑥:儿童需要有一个独立的玩耍区~ ⑦:一楼的花园想要有一个花廊、一个可以荡秋千或者是烧烤的亭子、有假山鱼池、大草坪还有可以种植蔬菜的地方,对于植物希望是可以一年四季都有不同的花可以开,还想要很多的果树,一年四季都可以品尝到不同的新鲜蔬果。

平面规划: 1️⃣:将入户右侧的卫生间进行了拆除,并入了玄关的空间~ 2️⃣:调整了一楼客房的面积,增加了一个可以通往花园的过道~ 3️⃣:将一楼靠近厨房的储物间进行了拆除,并入了厨房的空间,并且重新调整了去往院子的过道~ 4️⃣:将厨房设计成了一个开放式的厨房空间并且和餐厅整体结合在了一起~ 5️⃣:在原有挑空的位置做了楼板分层,电视墙一侧做了整组储物柜 6️⃣:将一楼的露台作为了儿童的独立玩耍区来使用~ 7️⃣:客厅出去的空间做了一组休闲平台放置了一些户外的家具~ 8️⃣:院子根据客户的需求整体做了规划和设计。

客户需求: ①:需要增加一个房间作为老人房使用~ ②:主卧外部环境较为复杂,比较吵闹,看如何可以规避~ ③:主卧需要一个独立的衣帽间,不需要办公~ ④:二楼主卧和儿童房都需要独立的卫生间~ ⑤:想要有一个小的空间可以陪伴孩子的地方~ ⑥:二楼也需要有一个公共的卫生间给老人房或者是二楼休息的时候使用。

平面规划: 1️⃣:将原有挑空的空间做了搭建,增加了一个独立的房间作为老人房使用~ 2️⃣:调整了主卧的位置,将主卧和原有儿童房的空间进行了对换~ 3️⃣:主卧空间的调整也带动了主卧的衣帽间和卫生间布局的改动~ 4️⃣:在老人房的外面增加了一个卫生间作为公卫使用~ 5️⃣:调整了儿童房的布局,增加了一个独立的卫生间~ 6️⃣:在楼梯上来的空间,做了一个起居室,可以供二楼空间使用~



设计亮点
入户玄关设计精巧且实用。进门右侧设计了一组黑色与水泥色调的储物柜,不仅风格现代,还能轻松容纳鞋子、衣物和各类杂物。左侧配置了一面全身镜,既方便出门前整理仪容,又在视觉上扩大了空间感。 整个玄关区域采用了平顶式设计,简洁大方。天花上安装的磁吸轨道灯,不仅美观,更为空间提供了充足的照明。地面铺设的白色岩板大砖,光洁如镜,既提升了整体的美感,又便于日常清洁打理。整个入户玄关设计,既注重实用性,又兼顾了美观与舒适度。
软装搭配
正对大门,一组别致的天花软膜造景映入眼帘,这一设计旨在模拟自然采光,让人一进门就感受到明亮与温馨。造景墙两侧采用水泥色护墙板,增添了一抹工业风的硬朗与时尚。旁边摆放了一组橙色休闲椅,不仅作为换鞋凳使用,更为空间增添了一抹活力。此外,一盏优雅的落地灯和实用的边几相映成趣,营造出温馨舒适的氛围。

设计亮点
厨房墙面装饰以灰色大理石纹岩板,其自然的纹理为厨房带来高雅的质感。地面铺设白色大板岩板砖,清爽易洁,同时与墙面和台面形成色彩对比,增强了空间的层次感。吊顶简洁处理,使用白色乳胶漆,使整个厨房空间更显宽敞明亮。照明方面,巧妙地结合了磁吸轨道灯与射灯,既满足了基础照明需求,又营造出温馨舒适的用餐氛围。
软装搭配
开放式厨房与餐厅一体化设计,采用中岛式布局,打造出一个四周通畅、自由流动的空间。厨房的吊柜与地柜以L型排布,既实用又美观。吊柜选用黑色柜门,显得高贵而神秘;地柜则采用水泥色调,透露出简约现代的工业风格。厨房操作台面使用黑色岩板,坚固且耐用,与吊柜色彩相呼应,为厨房增添了沉稳的气质。



设计亮点
西厨与厨房空间的操作台流畅延续,实现了烹饪区域的连贯性与高效性。在操作台上方,巧妙地设置了一个固定的窗户,这个设计不仅为厨房引入了自然光线,更与窗外的花园休闲露台形成了绝妙的呼应。香格里拉帘的搭配,既调节了光线,又为空间增添了一丝柔美的氛围。
软装搭配
餐桌与厨房的中岛台紧密相连,打破了空间的常规界限,使得整个餐饮区域更显宽敞与自由。餐桌选用的是成品潘多拉奢石材质,独特的纹理与色泽彰显出无与伦比的奢华感。镜面不锈钢桌腿的设计,以其现代而稳固的造型,巧妙地支撑着餐桌的台面,展现出一种简约而不失格调的美学。 为了营造温馨的用餐氛围,特别选择了一款线性极简吊灯。其简洁的线条与柔和的光线,为整个用餐区域带来了舒适与宁静。而黑色的皮质餐椅,不仅提供了极致的舒适度,更以其经典的黑色调,与整个空间的现代简约风格相得益彰。




设计亮点
客厅的面积比较大,差不多有将近50平米,这个客厅设计兼具了实用性与美观性,打造出了一个宽敞、明亮且极具设计感的居住空间。客厅地面选用了鱼骨拼的木地板,这种独特的铺装方式不仅提升了空间的视觉延伸感,更为整个客厅增添了一份优雅与复古的魅力。两侧采光的设计让客厅光线充足,通透明亮,而电动梦幻帘的运用则使得光线调节更为灵活,为客厅营造了不同的光影效果。吊顶采用了平顶式设计,简洁大方,而沙发区域的悬浮式吊顶与磁吸轨道灯的组合,不仅提供了充足的照明,还营造出了一种现代而时尚的氛围。




设计亮点
家具与装饰的选择也充满了设计感与实用性。L型的米白色布艺沙发柔软舒适,其靠背可以自由移动,极大地提高了空间的灵活性与使用效率。半球加黑色玻璃的茶几独特而时尚,上面的不锈钢狗狗抽纸盒更是增添了一份趣味与活泼。角落里的黑色钓鱼灯与可以旋转的顶天立地书架,不仅提供了实用的照明与收纳功能,还成为了客厅中的一处亮点。



设计亮点
电视墙一侧的整组柜子设计巧妙,巴士电动滑轨的运用使得白色柜门的开启变得轻松而富有科技感,同时黑色的不锈钢展示格与地面形成了呼应,增添了空间的层次感。
软装搭配
客厅中的艺术品与装饰品也恰到好处地点缀了空间。黑色皮质休闲女王椅、葫芦落地灯、黑色皮质躺椅以及米白色地毯等元素的加入,不仅提升了空间的舒适度与温馨感,还使得整个客厅更加生动与多彩。



设计亮点
楼梯设计以现代简约为主题,同时巧妙融入了艺术与实用性。地面铺设了爵士白岩板,其优雅的色调与细腻的纹理,为楼梯赋予了高贵而纯净的气质。在楼梯踏步的墙角,精心设计了隐形踢脚灯,不仅提升了行走的安全性,更在夜晚为楼梯间增添了一抹温暖的光影。扶手选用了白色钢板材质,线条优雅且极具造型感,既展现了现代工艺的精湛,又确保了使用的舒适性。墙面则涂刷了水泥色的艺术涂料,其质朴的色调与艺术感十足的纹理,与楼梯的整体设计风格相得益彰。
软装搭配
值得一提的是,在一楼楼梯中间的位置,业主特意为春节期间布置了一组红色灯笼雕塑。这些雕塑以鲜艳的红色和传统的灯笼造型,为空间注入了浓厚的节日氛围,彰显了中国传统文化的韵味。 楼梯的主灯则选用了一款设计独特的白色葡萄吊灯。吊灯以葡萄为灵感,造型别致,光影效果温婉而浪漫,为楼梯间提供了柔和而充足的照明。吊顶采用了简洁的白色平顶设计,进一步强化了空间的开阔感与现代气息。


设计亮点
二楼起居室作为连接三个卧室和楼梯间的枢纽,设计得既舒适又实用。地面铺设了原木色的鱼骨拼木地板,这种独特的铺装方式不仅美观大方,还为空间增添了一份自然温馨的氛围。墙面一侧延续了楼梯间的水泥色艺术涂料,呈现出质朴而现代的艺术感,而另一侧则选用了灰色的乳胶漆,为空间增添了一丝沉稳与宁静。
软装搭配
靠近窗户的一侧,设计师巧妙地用白色岩板打造了一个造型别致的套口,既提升了空间的整体美感,又凸显了设计的精致与巧思。窗户则采用了下悬窗设计,搭配了一款白色的梦幻帘,使得光线调节更为灵活,同时为起居室营造了一种朦胧而梦幻的视觉效果。




设计亮点
在软装方面,角落里摆放了一组米白色布艺休闲沙发,柔软舒适且极具设计感。地面上铺设了一款米白色花朵造型的地毯,不仅提升了空间的温馨感,还与沙发形成了和谐的呼应。此外,设计师还巧妙地放置了一个小推车作为边几,既方便移动又增加了空间的灵活性。靠近主卧一侧,摆放了一个成品的白色装饰架,上面陈列了众多装饰品和植物,为空间增添了一份生活气息和艺术感。旁边还配有一组白色的中古风落地灯,不仅提供了充足的照明,还成为了起居室中的一处亮点。



设计亮点
主卧的设计以宽敞舒适为主题,地面铺设了优雅的鱼骨拼木地板,为整个空间奠定了温馨自然的基调。床头一侧,上半部分装饰了白色岩纹的护墙板,下半部分则选用了铜制金属质感的护墙板,这种材质与色调的组合既现代又奢华,为卧室增添了一丝高级感。卧室中央摆放了一款1.8米的双人床,床头靠背采用米白色设计,简洁而舒适。床尾地面则铺设了一款素色的羊毛地毯,柔软且质感十足,进一步提升了卧室的舒适度。 在吊顶设计上,卧室巧妙地利用了原有层高的叠级,通过弧形的优雅过渡,实现了平顶的设计。这种设计不仅保持了空间的开阔感,还赋予了卧室一种流畅与动感的视觉效果。照明方面,采用了射灯作为空间的主光源,营造出温馨而柔和的光线环境。同时,右侧床头还装饰有一款别致的吊灯,为卧室增添了一份独特的氛围。



设计亮点
床尾处设有一组白色的衣柜,采用了悬浮式设计,既节省了空间又增加了现代感。衣柜下方还配备了一组悬浮的抽屉柜,方便收纳日常用品。此外,在床尾与衣柜之间的角落,精心搭配了一款米白色的布艺休闲单椅和一款透明亚克力与金属材质的小推车,这些家具不仅实用还极具设计感。
软装搭配
卧室的窗户设计也颇具匠心。左侧窗户采用了香格里拉帘,为室内带来柔和的光线同时保障隐私;而右侧窗户则选用了奶咖色的遮光帘和白色的纱帘做搭配,既美观又实用,可根据需要灵活调节光线。


设计亮点
卧室的衣帽间与卫生间相对,设计了一扇白色极简的双开门,不仅方便通行,还为卧室增添了一抹简约而优雅的气息。地面延续了卧室的木地板,保持了整体风格的一致性,同时也为衣帽间带来了温馨自然的氛围。
软装搭配
衣帽间的柜体整体采用了白色的设计,开放式布局使得衣物一目了然,便于挑选和搭配。整个空间的内部规划非常合理,充分考虑了不同衣物的存储需求。长款衣物、短款衣物以及各类小物件都有专属的收纳空间,抽屉的设计也满足了小件物品的整理需求。



设计亮点
主卧的卫生间经过精心设计,实现了干湿三分离的布局,确保了空间的舒适与实用性。推开双开门,首先映入眼帘的是由透明玻璃巧妙隔断的马桶间与淋浴间,这样的设计既保障了隐私,又使得空间显得通透而现代。卫生间的墙地面选用了灰色大板砖进行铺贴,这种材质不仅耐磨耐脏,其灰色调更为空间增添了一份沉稳与高级感。吊顶则选用了白色乳胶漆,简洁而明亮,与地面的灰色大板砖形成了和谐的色彩对比。
软装搭配
成品浴缸被放置在洗手盆的对面,为屋主提供了一个放松身心的私密空间。洗手盆采用了悬浮式设计,白色的双台盆岩板一体盆不仅美观大方,而且实用性强,下面的白色抽屉更是为收纳洗漱用品提供了方便。 镜子的设计也别具一格,采用了镜柜的形式,既可作为装饰,又增加了储物空间。更为贴心的是,镜子上下都安装了暗藏的灯带,为洗漱化妆提供了充足且柔和的光线。




设计亮点
女儿房被打造成了一个梦幻般的公主空间,洋溢着甜美与温馨的气息。进门一侧,整面粉色的墙面如同童话中的城堡,为小公主营造了一个充满浪漫与想象的世界。地面铺设了原木色的木地板,不仅环保自然,更为房间增添了一份温暖与舒适。 房间的吊顶采用了悬浮式设计,简洁而不失时尚感,与粉色的墙面和原木色的地板相得益彰。进门左侧,巧妙地设计了一组柜子加书柜和写字台的组合,白色的柜门清新雅致,与原木色的书桌形成了柔和的色调对比,既实用又美观。
软装搭配
靠窗一侧,特别选购了一款符合人体工学的学习桌和学习椅子,为小公主的学习生活提供了良好的环境。桌子下方,一款小太阳花的地毯铺展开来,仿佛是花园中的一片绚烂,为房间增添了一抹生动的色彩。




设计亮点
卧室中央摆放着一款原木色的冰棍床,简洁而不失童趣。床上方搭配了白色的蚊帐和粉色的纱幔,轻盈飘逸,为房间增添了一份梦幻般的美感。这样的设计不仅让小公主感受到公主般的待遇,还能为她提供一个安全、舒适的睡眠环境。 床头的机器人床头柜别致而富有科技感,不仅实用,还能满足小公主对奇幻世界的好奇和想象。角落里的报刊架则可以为小公主展示她的阅读成果和珍藏的读物。
软装搭配
窗帘的选择上,米咖色的遮光帘与白色的纱帘相结合,既保证了良好的遮光效果,又为房间增添了一份柔美和神秘感。当阳光透过纱帘洒入房间,整个空间都弥漫着温暖与希望的气息。



设计亮点
儿童房的卫生间设计简洁而现代,整体采用了白色的爵士白岩板进行铺贴,这种材质不仅耐磨耐脏,而且其优雅的白色调为空间带来了一种清新明亮的感觉。吊顶选用了白色的乳胶漆,与地面材质形成了统一的色调,营造出一个整洁而舒适的环境。 为了更好地满足使用需求,卫生间进行了干湿分区的设计。淋浴区和马桶区域通过透明黑色边框的玻璃进行了隔断,这样的设计既保持了空间的通透性,又有效地防止了水汽的扩散,使得卫生间更加干燥、清洁。
软装搭配
马桶选择了智能型号,提供了更为便捷和卫生的使用体验,展现了现代家居的科技感。此外,洗漱区也是定制的白色岩板台面,与整体的白色调保持一致,既美观又实用。铜制金属镜架更是为洗漱区增添了一份时尚与质感,让孩子在使用时也能感受到家居的美观与舒适。



设计亮点
老人房的设计注重舒适与实用,同时不失时尚感。背景墙采用了水泥色的艺术涂料,这种独特的色调为房间增添了一份沉静与质朴的美感,很适合老人的居住空间。涂料产生的艺术效果,也使得墙面不再单调,充满了设计感。
软装搭配
房间内摆放了一款黑色的皮质成品床,不仅舒适度极高,而且其黑色调与水泥色背景墙形成了鲜明的对比,为房间增添了一份稳重与奢华感。与此同时,白色的储物柜设计简洁大方,提供了充足的收纳空间,对于喜欢整洁的老人来说,这无疑是一个非常实用的设计。 窗帘选择了奶咖色的遮光帘和白色纱帘的组合,既保证了良好的遮光效果,又能让房间充满柔美的光线。这种色调的选择也非常符合老人的审美,营造出一个温馨而宁静的休息环境。


设计亮点
一楼客厅外的儿童休闲露台,是孩子们自由挥洒创意与活力的乐园。这个精心设计的空间,不仅为孩子们提供了一个安全、舒适的玩耍环境,更激发了他们的创造力和想象力。 整个露台的地面采用了黑色的防腐木,这种材质不仅耐磨、耐腐蚀,还为露台增添了一份自然的韵味。白色的外墙栏杆既保证了孩子们的安全,又为露台增添了一份优雅与美观。顶上的玻璃吊顶则让露台充满了阳光与温暖,让孩子们在玩耍的同时,也能感受到大自然的恩赐。
软装搭配
走进露台,首先映入眼帘的是孩子们色彩斑斓的画作,它们被精心地展示在角落的画板上。这些画作充满了童真与童趣,是孩子们内心世界的真实写照。地面上散落着各种颜色的彩笔,仿佛是孩子们在创作过程中不小心遗落的,让人不禁想象起他们作画时的专注与投入。除了绘画,孩子们还可以在这里进行各种手工创作。小推车里装满了五颜六色的颜料,供孩子们随时取用。他们可以在这个露台上尽情地发挥自己的创造力,用双手创造出属于自己的艺术作品。

设计亮点
露台的另一侧,一个蹦床成为了孩子们的另一个欢乐源泉。他们在这里尽情地跳跃、欢笑,释放着童年的活力与激情。蹦床不仅锻炼了孩子们的身体,还让他们在玩耍中学会了平衡与协调。 这个儿童休闲露台,不仅是孩子们成长的乐园,更是他们童年回忆的宝贵财富。在这里,他们学会了创造、学会了分享、学会了成长。


设计亮点
客厅另一侧通往的休闲露台,仿佛是一个秘密花园的入口。露台上,一把太阳伞为桌椅投下斑驳的影子,营造出一片清凉的小憩之地。在这里,时光似乎变得缓慢,让人忘却尘世的纷扰。



设计亮点
与之相连的是一条长长的花廊,月季花簇拥着廊顶,绽放出绚烂的色彩。每当微风拂过,花瓣轻轻飘落,如同梦境中的粉色雨丝。花廊的尽头,一个多功能的花架映入眼帘,它不仅是烧烤的好去处,还承载着孩子们荡秋千的欢声笑语。一串串葡萄从花架上垂下,晶莹剔透,仿佛在诉说着丰收的喜悦。


夕阳西下,小女主手里提着果篮,兴高采烈地在院子里采摘果实。她的身影在夕阳的余晖中显得格外娇小和可爱。采摘完果实后,她迫不及待地跑到草坪上,与妈妈一起分享自己的劳动成果。这样的画面充满了家的温馨和幸福,仿佛时间都在这一刻静止了,只留下母女俩的欢声笑语在空气中回荡。
