设计亮点


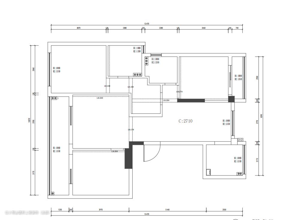
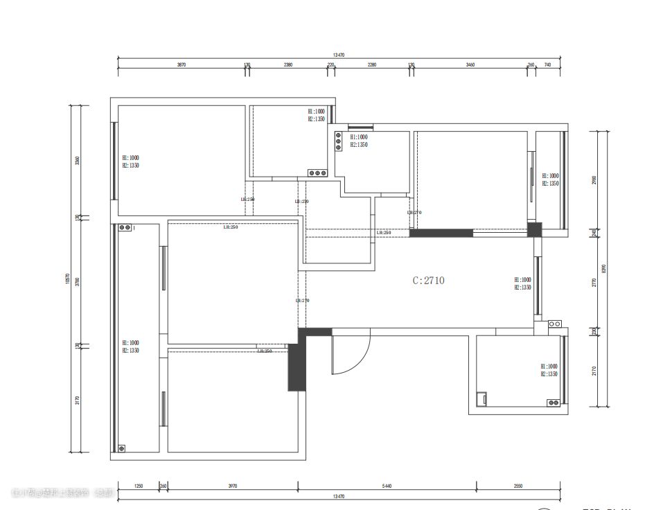
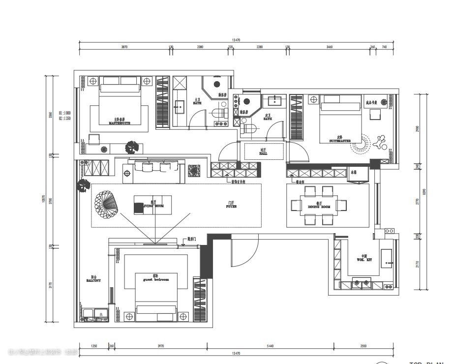
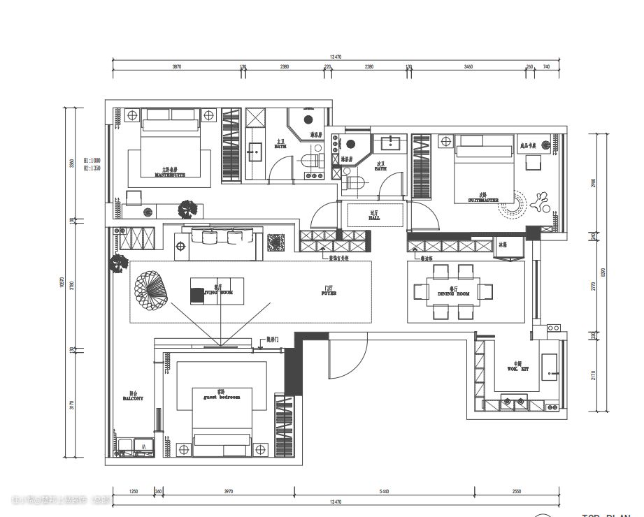
原户型比较方正,结合屋主的生活需求,空间上设计师没有做大改动;在储物功能上的设计,餐厅的餐边高柜、玄关的长排储物柜、客厅电视背景墙上的储物柜、卧室整面墙的高柜,每个空间上都大大增加了储物功能性。 Area / 面积:140㎡ Type / 户型:三室两厅 Style / 风格:现代极简风 Design / 设计师:周玉玲 Photographer/ 摄影师:关旗
客厅




整体空间色彩保持一致,选用黑、白这种家居中经典的配色永远都不会出错也不会过时,整体空间更有纵深感,开放式的客餐厅增加空间互动性。 阳台纳入客厅,整体空间就变得宽敞明亮,大落地窗让自然光线均匀的撒入室内。
餐厅



阳台包进厨房后采光也很绝,滤过玻璃移门,自然光给餐厅也带来一层美颜滤镜。大理石餐桌现代感满满,与整体定制的餐边柜适配度满分。
厨房

厨房将阳台并入后更宽敞,做长U字设计,配色上延续了客餐厅黑白灰色调,方便打理。
主卧



主卧选择浅米色装饰背景墙提升质感,实木地板打造温馨舒适的居家氛围感,深灰色窗帘与整个空间简约大气的格调很搭。
