





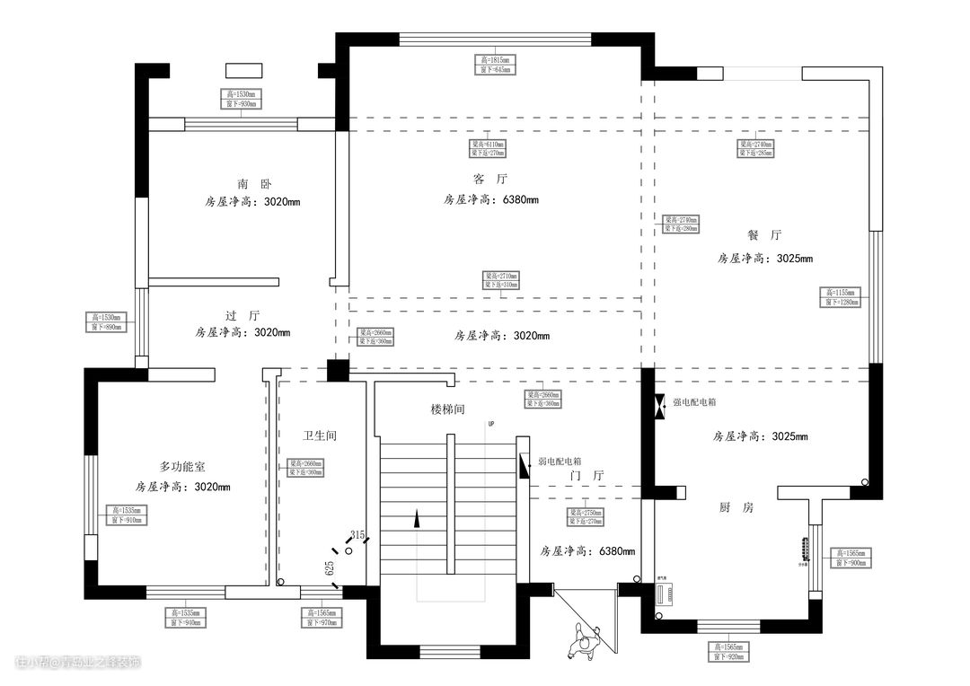
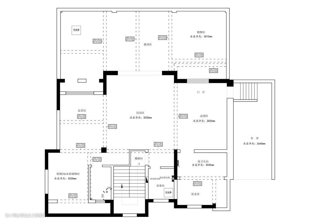
户型优缺点分析: 问题1:入户无玄关遮挡,隐私性较弱。 解决方案:增加入户玄关墙,起到室外到室内的缓冲作用,在视觉上增加私密性和隐蔽性。 问题2:厨房面积过小。 解决方案:在餐厅区域增设西厨,很好的避免了油烟,增加烹饪的空间。丰富居家生活多样性,完美的实现了中西分厨。 问题3:无家政空间。 解决方案:负一增加洗衣房,更好的提高生活质量,可以起到节约空间的作用,将家里所有清洁工具都收纳在一个空间内,让家变得整洁有序。

愉悦,叠层渐生; 生活、艺术错落多元。 家给人的满足感,从来不是一成不变的饮食起居,而是以人为本的专属定制。 一处居所,容纳生活的百种可能。一直以来,人们对于家居空间的想象和追求从未停止。生活节奏虽快,但人们对家的依赖又增添了几分,既要有人间烟火气的温馨,也要有能安静思考的独立空间,还需要能呼朋唤友畅谈人生的社交空间。

客厅以浅灰色+白色为主调,没有花哨的造型,也没有浓重的色彩,线条和材质简洁俐落,恰到好处,仅以简单而不失质感的空间设计,就给人带来一种宁静高贵的视觉感受。




电视背景墙墙上铺贴了一整块潘多拉花纹的大理石瓷砖,搭配灰色地毯, 米白色沙发,布置黑白配的石材台面茶几,显得更加现代舒适。客厅采用挑空设计,造型优雅的灰色沙发上摆放着多个靠枕,宽大的液晶电视嵌入背景墙里,设计精美的吊灯就像晶莹剔透的蒲公英一样。

步入玄关,墙面造型上以白色色调为基准,结合纹理技法,摆脱了单色地面的单调,勾勒着空间与时间同在的共时性。简洁的白色背景与潘多拉纹大理石的结合,凸显希望与自由的设计风格,又有现代艺术装置的加入,更提升了整个空间的调性和完整性。


餐厅延续客厅的整体色调,黑白配岩板台面的餐桌,搭配橙色皮艺的餐椅,右侧整体的开放式西厨区域,兼具美观与实用性。小小的绿植点缀,也让用餐氛围更加有仪式感。


厨房采用开放式设计,内置式的电器最大限度地节省空间,打造充满极简主义的吧台,在这里感受艺术之美,感悟生活之味,一日三餐,一年四季。


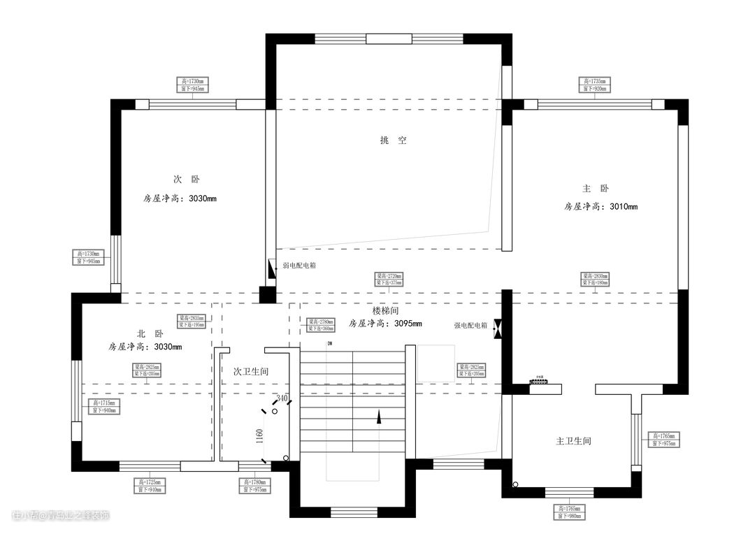
在卧室的设计上,强调的是舒展与放松,没有刻意的豪华,但流露出精致的生活情调。柔和的暖白色调, 为衣橱空间设计增添了人文气息,创造了存储空间的同时,让空间氛围达到沉稳而美妙平衡。



卧室床头柜没有多余的装饰,设计巧妙的垂线吊灯悬在床边,室外的光线透过玻璃窗洒进来,达到和谐统一。格调灰的高级感、以及自然的生机,抒写了居者平和宁静的心境和高雅的艺术追求。













地下室空间以现代风的基调,吊顶四周加入灯带,还在天花中间加入了筒灯装饰。负层采光较差,所以装修底色选择了白色,白色灯光与暖色灯光交替使用,并采用绿植来增添自然的气息。整体风格自然舒适,且具有现代化时尚气息,彰显主人的品味与时尚内涵。
