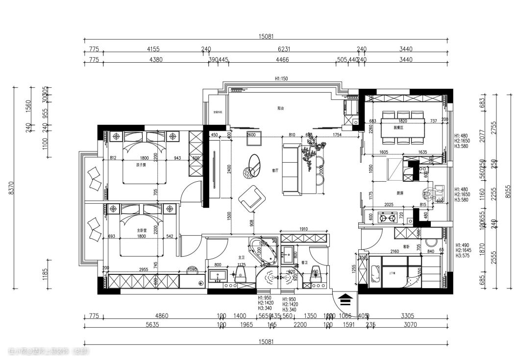
设计亮点


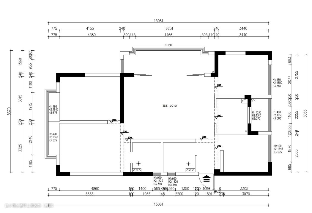
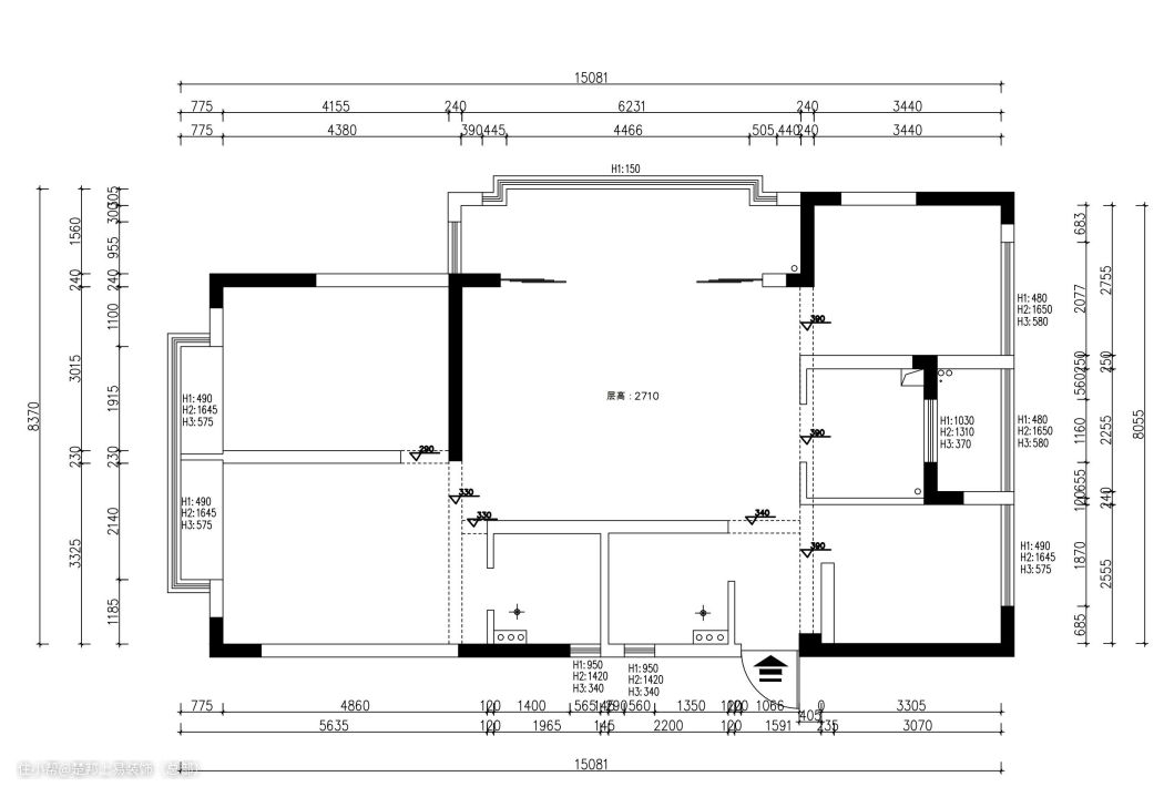
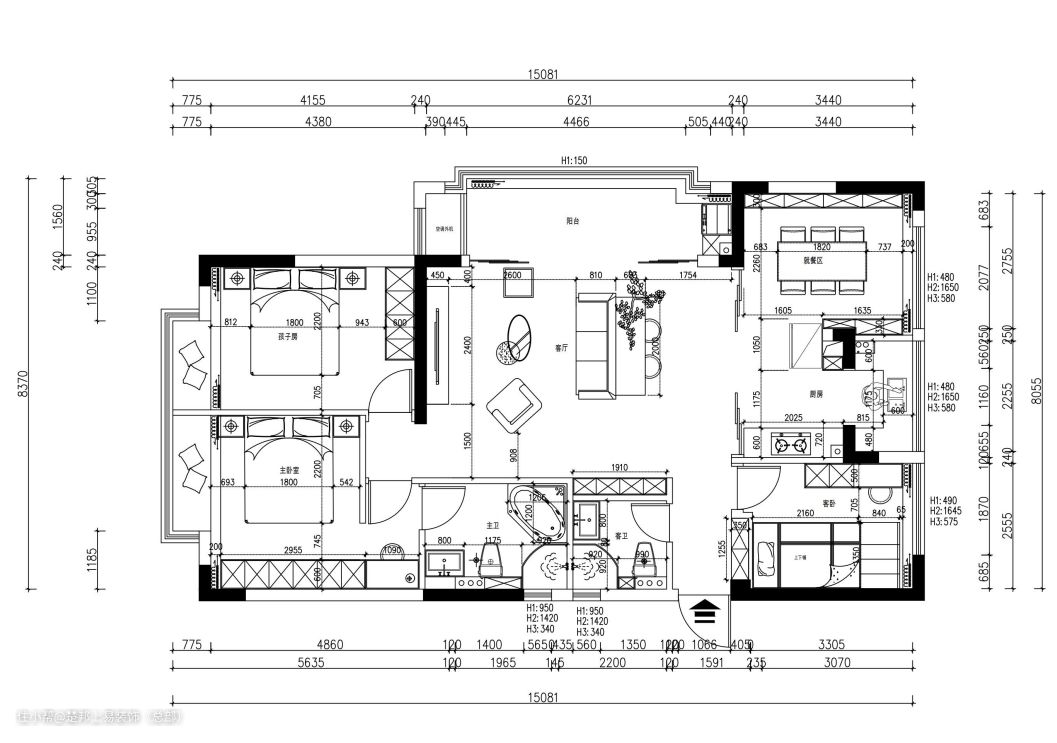
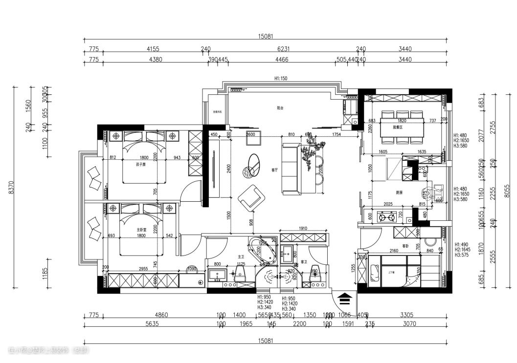
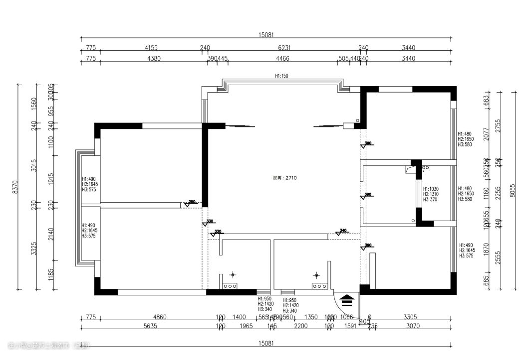
项目地址: 万家风华 项目面积: 128㎡ 设计风格: 现代简约 项目户型: 三室一厅一厨两卫 装修施工: 楚邦上易装饰 设计细节: ■ 入户右侧靠墙设计玄关柜(包含换鞋凳)+收纳柜,左侧放置球鞋展示柜,呈L字延伸至客厅,不影响入户通透感; ■ 更改主卧房门位置,缩减原主卫空间改造L型衣帽间,主卫次卫布局重新规划做独卫,主卫增设浴缸; ■ 利用动区与静区的过渡区设计一个半开放式的钢琴区,改主次卫格局后,一旁小房间则改造成小书房; ■ 西南角房间改造成儿童房,高低床满足需求,靠墙定制衣柜与学习区;
客厅



电视背景墙选择大理石上墙,增添奢华感,再拼接木格栅呈现出一种典雅、舒适又富有现代感的居住体验。大理石的奢华与木格栅的简约相得益彰,成为客厅的一大亮点。 电视机摆放在悬浮地台上,不仅节省空间,还使整体设计更加简洁利落,不留卫生死角,方便扫地机器人清洁
餐厅


餐桌一侧靠墙,留出更多走廊空间,岩板餐桌搭配皮质餐椅,低饱和的色系营造现代氛围的用餐空间
厨房

U型厨房扩大操作台面,白色台面和咖色橱柜搭配,提高了空间的纵深感和层次感。整排吊柜提供了充足的储物空间,也为整个厨房增色不少,厨房收纳根本不用担心~
主卧


主卧延续动区空间配色,统一以咖色为主,温馨有格调。木饰面上墙,中间镂空可以放置充电线等小物品,真是太方便了!靠窗成品梳妆台,早上起来迎着晨光打扮得美美哒~黑色皮质软床是主卧的视觉焦点,简洁的线条和质感带来极致的奢华与体验感。
次卧


卫生间

