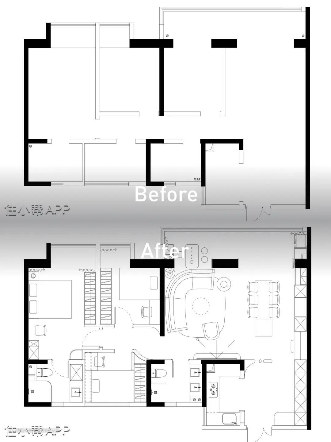
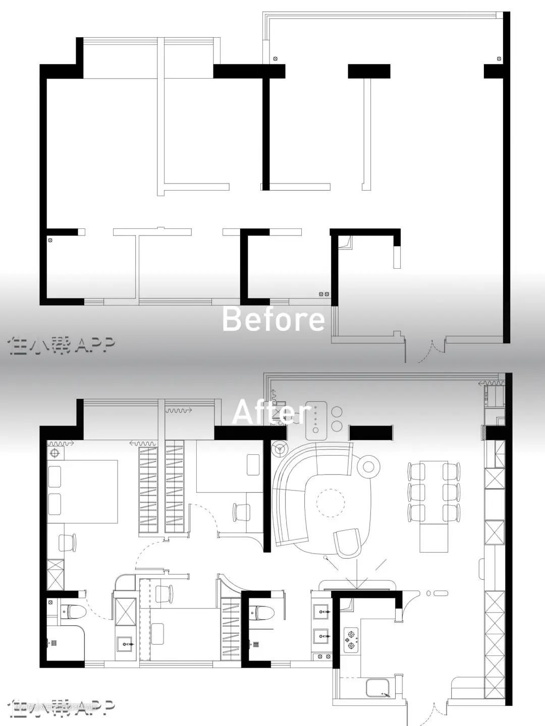
设计亮点

装修后
每一寸都凝聚着设计师对现代生活的深刻理解和独特诠释,空间中以柔美雅致的线条为代表,善用材质与比例创造现代意境,在实用的现代风格之上探寻更深沉层次的美感。
客厅







设计亮点
以空间为始,至自然而终,深色木饰面散发调性,依循立面轮廓做套嵌,强调内核的沉稳。采用不同角度光影叠加和交织的手法,与空间的悠静氛围形成互补。糅合色泽美感、大理石细腻纹理、木格栅质感,将简约气质浓缩、汇聚,树立观感重心。打磨几何廓形,利用明暗对比的关系,重塑饰面之间的差异性。刚毅存在于柔和的界面内,让空间的静与动逐渐中和中和、平缓,以至波澜不惊,曲面的柔感,成就和谐的过渡。
餐厅




设计亮点
餐桌和岛台一体化的设计,在使用中可以感受到更浓郁的氛围感,通透温润的空间让这里成为一家情感交融互通的区域。 质感丰富的原木色系铺满餐桌,烟火之地多了一份理性的从容,木材瓷器金属融合出专属格调。
厨房

设计亮点
厨房细化利用每一寸空间,将蒸烤箱冰箱全部内置,简洁的线面融入井然有序的收纳系统。
主卧




设计亮点
主卧以居者为中心,将休闲、梳妆、储物等多种功能纳入空间中,休憩之地的舒适度与开阔感被拉到最大,包容着无限的生活灵感。当光影介入,场域情态便不再孤单,木饰面以迂回气韵表达道不尽的情愫,诉说纯粹的浪漫。
次卧

设计亮点
次卧依然沿用坚实温润的木质,意蕴深悠,营造出的温柔氛围,给予居者一种归属感。
卫生间

设计亮点
干净皎洁的空间,玻璃隔断分割空间视觉,达到干湿分离的效果,创造舒适的洗浴体验。
阳台



设计亮点
和谐的木色奠定了沉稳宁静的基调,温厚敦实的木质,质朴素净,浓淡相宜,多了几分禅韵。
