
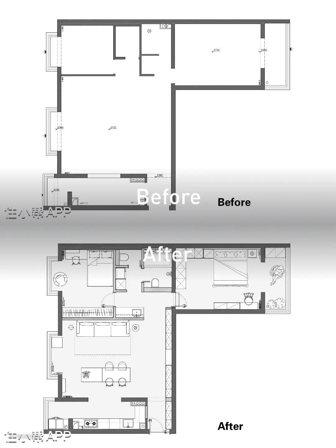
装修前
原房是不规则的手枪户两居室,过道闲置而浪费;玄关空间拥堵零碎;厨房狭长,采光不佳。主、次卫均为鸡肋窄小的暗卫,利用率低下。
装修后
设计优化: 1、调整厨房的入口,与客餐厅打通开放,延展公区的视觉空间感,纳入生活阳台的,转移收纳压力,日常下厨更为游刃有余。 2、走廊设计收纳max的满墙柜,视线一气呵成,空间利用率最大化。 3、次卧向客厅外扩,转而设计综合性储物柜,全面满足小朋友的生活需要。 4、合并两个小卫生间,拓展出一个干湿分离,拥有双马桶和浴缸,并融合家政间的多功能独卫,提升使用效率与舒适感。 5、主卧纳入套内阳台,扩大使用面积,床头设计L形衣帽间,承接屋主夫妻的收纳需求。




设计亮点
借用浪漫拱门衔接入户内外区域,玄关空间感得以扩大。伴随厨房开门方向的改变,零碎割裂的玄关重拾完整,归家仪式感渐浓。走廊满墙柜一字铺陈,观感统一流畅,闲置的廊道得以充分利用,成为小家的最强储备战力。 复合型的玄关柜,划分成鞋柜、换鞋凳和挂衣区三大功能模块,彼此互有分工,又在有限的空间内有所整合,全方面照顾入户后的一应需要,营造妥帖归家感受。
软装搭配
藏露结合的走廊满墙柜,集美感展示与功能实用为一体。一门到顶柜以木白柜门穿插的形式呈现,弱化平庸单调。质地温润的香薰、瓷器摆件和木桩点缀其间,为小家平添了几分治愈质朴的味道。



设计亮点
公区是日常活动开展的主场,屋主期待的是一个宽敞、自由的空间。以纵向排列的一体客餐厅为中心,向四周发散,将飘窗融入其中,感受尺度拓展带来的最大舒适感。米色艺术漆与木色人字拼互为彰显,渲染出自然治愈的氛围感。 摈弃的杂糅繁复的吊顶设计,留足层高的呼吸感,有别于传统的无主灯设计,天花采用预埋式椎体石膏射灯照明,与满屏的弧形元素,形成一种和谐的呼应。
软装搭配
一改以电视为中心的常规布局,客厅追求更自由随性的生活表达方式,米色模块沙发成为为数不多的家具软装,引入一丝柔软舒适的触感,更多的空间让渡于日常活动的展开,拒绝形式主义,转而关注居者的真实需求。




设计亮点
伴随厨房的开放,餐厅成为链接客厅与厨房的枢纽,开敞的LDK格局,建立起交互式的空间关系,增进家人的情感互动与交流,由客厅看向餐厨的视线,也有层次的递进,形成视觉空间的延伸,成就通透开阔的公区。餐岛一体的设计,除用餐之外,阅读、收纳和烘焙等更多场景在此交汇,衍生出丰富的生活体验。 米色洞石岩板岛台与白色岩板长桌,高低错落衔接,下方的支撑腿与储物柜,则以温润的木质呈现,不同色彩、材质与肌理碰撞对比又相互调和,达成空间的美学艺术平衡。



设计亮点
再次出现的拱门,毫不费力的完成了厨房由封闭向开放的转换,悄然模糊空间与空间的边界,让家一眼到顶的通透,厨房不再囿于采光不足,重拾明亮空间感,成为女主人大展厨艺的烹饪舞台。 厨房拓展入套内阳台,分担大体积冰箱的存放任务,空间更专注于舒适下厨体验的塑造。L型操作台面遵循洗、切、煮的环节有序展开,下厨效率事半功倍。 橱柜沿用经典的木白配色,将温柔感贯彻到底,素净的灰色地砖,则更多考虑耐脏与实用性。

设计亮点
附带阳台的主卧采光充沛,空间沿袭了奶油色的设定,双人床也选择温暖的驼色,营造温馨的入眠氛围感。床头L型衣柜围合出小型的衣帽间,床尾则配置梳妆台,空间分工合理有序。一门到顶的白色高柜配以利落黑色拉手,降低了对床头的压迫感,又时尚有型。花苞灯以吊灯与壁灯两种形式,分列床头左右,引入柔和慵懒的光影氛围。

设计亮点
小朋友居住的次卧,通过飘窗纳入、床尾综合柜向客厅外扩等改造手法,获取更开阔的尺度,给予孩子更多玩耍、休闲空间。纽扣形状的拉手与软糯的床品、窗帘,无不彰显着这个空间的童趣可爱。


设计亮点
双卫合并为独卫后,洗手台挪至与主卧床尾同侧的过道,将干湿区彻底分离,提高使用效率与舒适感。干区台面延长设计,实现洗漱与卸妆功能合一,减少不必要的走动距离。清透长虹玻璃与半墙结合,确保洗漱区域的私密感之余,又加强了干区与廊道的联动。大容量的镜柜配合悬空浴室柜,足以应对卫浴的不同收纳需要,维持空间的整洁感。
