
本项目是位于广州番禺区华南碧桂园的别墅。别墅是十几二十年前内的户型,这次业主找到我们进行翻新,就是想要更符合现代的居住生活。所以在这次翻新的过程中,我们在保留别墅原有韵味的基础的同时对布局进行了优化调整,采用了轻盈而浪漫的轻法式风格和色彩搭配,旨在打造一个既浪漫又不失现代感的居住空间。 以前的别墅都是以正方形格局为主,客餐厅一般都是分离式的设计,但奇怪的是,一道突兀的楼梯却将这两个主要功能区域生硬地分隔开来,影响了整体空间的流畅性。为了改善这一状况,我们针对楼梯进行了改造设计。通过重新规划空间布局,我们将楼梯巧妙地融入背景之中,既消除了进门即见的突兀感,又极大地释放了前厅的空间,使整体空间显得更加开阔和谐。在二楼的改造中,我们根据业主的需求对房间布局进行了调整,将原本两间房的结构更改成更加灵活且功能分明的三房布局—主卧、儿童房和书房,不仅优化了空间利用,还更好地满足了家庭成员多样化的居住需求。

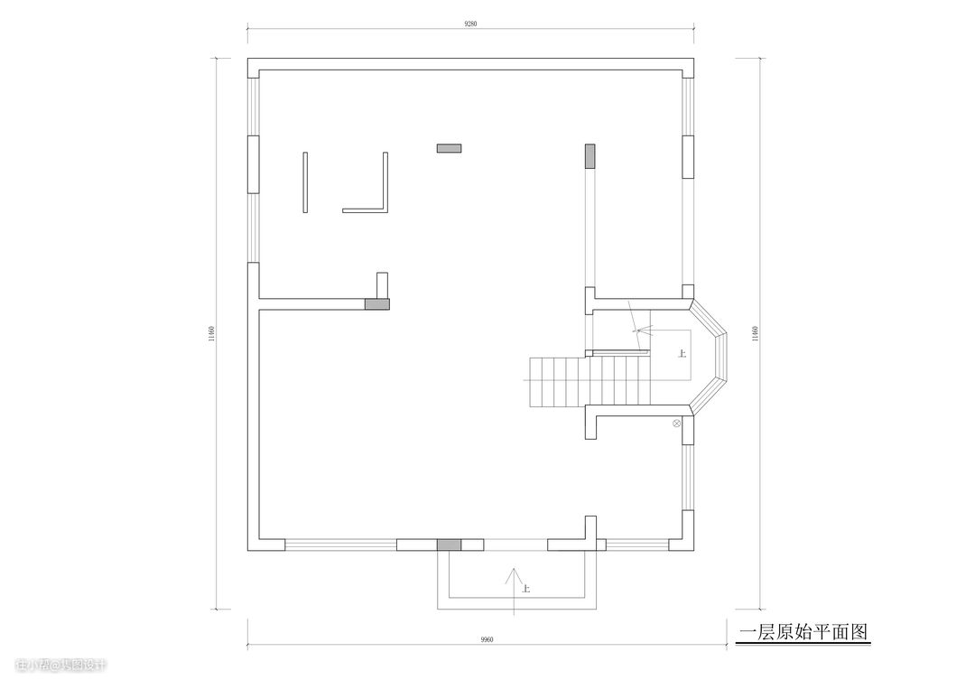
原始平面图。

新平面布局图。


客厅选用了菱花白色墙漆,不仅营造出温馨和谐的氛围,还凭借其良好的光线反射特性,显著提升了室内空间的明亮度,有效克服了别墅原先存在的光线不足难题。 客餐厅通铺鱼骨纹木纹砖,细腻的木质纹理与法式风格的色彩设计巧妙融合,既保持了色彩的简约纯粹,又避免了单调乏味之感,增强了空间的视觉层次感。

电视背景墙采用精致的石膏线条勾勒,巧妙融入了法式的浪漫情调。 设计了嵌入式电视使其与周围环境和谐相融,呈现出一种既简约又不失大方的视觉效果。左侧设计了拱形开放格,以其圆润的弧线造型与墙面完美衔接,通过弧度的过渡营造出一种柔和而温馨的氛围,与客厅整体的法式装饰风格相得益彰,确保了设计的统一性和协调性。

原有的楼梯突出来了一块,进门视觉体验感极差,业主对此颇为不满。我们将楼梯进行改造后楼梯变成了背景的一部分,视觉体验瞬间上升。

量房照片。

改造后的楼梯布局优化了从客厅到餐厅的动线,使两个功能区之间的过渡更加自然流畅,整体空间因此呈现出更加开阔与和谐,满足了业主对于空间舒适性的需求。

简约的大理石组合茶几与灰色泡芙组合沙发相互映衬,共同营造出沉稳大方的环境氛围,使空间整体效果更显时尚且富有品味。

设计了一个鞋帽间,解决了因家庭成员众多而导致的入户区域杂乱无章的问题,有效减轻了业主日常家务的繁琐与困扰。


为了空间利用地最大化,我们围绕着窗户设计了L型的储物柜,实现了高效的储物功能,在储物柜上铺设软垫立马作为换鞋凳,双重作用轻松拥有。储物柜底部采用架空设计,便于日常穿着的鞋子被轻松踢入并隐藏起来,既保持了空间的整洁美观,又提升了使用的便捷性。

在靠近楼梯一侧我们设计了定制柜,中间留开放格,方便进出门放钥匙、包包或者其他小物件,解放双手。


餐厨一体设计使得餐桌和厨房连成一线,构建了更流畅的视觉延伸效果,空间更显轻盈通透,同时烹饪与用餐的家人之间也可以更加紧密地互动,增进家庭成员之间的情感联系。

在餐桌上方,一盏极具法式风情的吊灯低垂,以它独有的光芒照亮了整个用餐区域,光影交错间,更显空间的温馨与浪漫。


采用半开放式厨房搭配吧台,这一设计赋予了吧台多重功能:既可以是便捷的传菜区,也能灵活转变为餐桌或咖啡角,丰富了空间的使用场景,满足了现代家庭对于多功能空间的需求。 同时也在餐厅与厨房之间构建起一道既分隔又通透的界限,最关键的是,通过视觉上的巧妙引导,使得厨房区域在感官上得到了显著的延展,实现了空间感与实用性的双重提升。

厨房的设计遵循了简约而不失高雅的原则,以清晰的线条勾勒空间轮廓,搭配以经典的白灰两色对比,营造出一种高级的视觉享受。白色赋予空间明亮与纯净,而灰色则增添了沉稳与质感,两者相辅相成,共同塑造出一个既现代又温馨的烹饪环境。 地面采用了法式花砖铺贴,每一块砖都仿佛承载着浪漫的故事,为厨房空间增添了一抹独特的法式浪漫气息,让人在烹饪美食的同时,也能感受到生活的美好与惬意。



公卫。


主卧. 我们通过拆除了部分墙体进行了空间重构,将主卧设计呈一字型的布局,特别增设了衣帽间,极大地提升了业主居住的便利性与舒适度。

床头背景墙用石膏线辅以暖色调灯光烘托出温柔的法式质感,飘窗改造成了兼具美观与实用的储物柜,不仅增添了空间的收纳功能,还保留了窗边的悠闲氛围,铺上海绵垫放上靠枕,在每一个休闲的时光,手捧一杯香浓的咖啡,翻开一本心仪已久的好书,让思绪随着文字飘远,在悠然自得中细细品味时光的宁静与美好。

衣柜设计了L型的开放式储物格,便于业主便于灵活收纳书籍或展示精美摆件,底部则延伸出来当作床头柜使用,极大优化了空间利用率。

用双面衣柜隔出了一个L型衣帽间,不仅高效利用了空间,还刚好避免床铺直对卫浴室的门口,营造出更加舒适的卧室环境。


主卫干湿分离设计,特别设计了小推车来放置为业主放置泡澡时所需的各类沐浴用品。在淋浴区域内设计了壁龛,用于收纳日常使用的沐浴产品,既节省了空间,又保持了淋浴区的清爽与整洁。



女儿房以充满柔美少女感的奶油粉色、白色为主,摒弃了传统的床架改用地台,床头做了收纳柜,既满足了实用性需求,又不失为室内装饰的亮点。墙上小飞象的星星灯散发着柔和而梦幻的光芒,仿佛为房间披上了一层神秘的魔法纱幔,让少女在每一个甜美的夜晚也能畅游童话的国度。

小朋友的玩具多,收纳难免会有些显乱,为此我们设计了房子形状的收纳架搭配收纳篮,它就像孩子心中梦想的小天地,温馨而富有吸引力。孩子们在将玩具一一归置其中的过程,就像是亲手将那份纯真的童趣与快乐的记忆,安全地存放进了自己专属的小房间。

为了保证孩子未来成长的储物需求,我们给小朋友打造了独立的衣帽间,拱门的设计让法式的精致感呼之欲出,拱门旁设置收纳柜更具实用性。 收纳柜底部特意留空设计,便于孩子随时取用玩具。整个衣帽间以封闭柜为主,确保了衣物与物品的整洁与防尘。


女儿房卫生间。


健身房。



儿童房卫生间。
