想要呼吸好空气?装新风系统,安装过程比选购更重要#有奖征文#
木子家ya
2019-10-15
广州的空气质量相对来说还是不错,但是因家里的旁边就是大学操场,每天早上打篮球、跑步、踢足球各种声音和灰尘让你瞬间回到大学的感觉。对于我这种声音和灰尘敏感人群实在是受不了,加上现在空气污染越来越严重,担心天天吸PM2.5,家里又有小孩,不能用健康做赌注。做了很多功课,最后参加锁定松下新风系统,购买的此款全热交换器能过滤PM2.5,能过滤掉98%的PM2.5,还有内循环功能,可以当空气净化器用。

一、为什么会选新风系统?
1、选新风系统心路历程
从净化空气来看,空调和空气净化器都是在家里内循环,而新风系统可以实现内外循环,再配合空调和空气净化器一起使用,很舒服。
空调、凉霸、风扇:对室内空气进行制冷或制热;
排气扇:机械抽风把室内脏空气单向带到室外;
空气净化器:对室内的空气进行净化和过滤,无法排出室外;
全屋新风系统:实现室内外空气交换,起到通风换气作用,并且能过滤室外脏空气,过滤和净化室内空气排出外面。

总结了一轮,最后还是决定购买安装全屋新风系统,刚好当地一个网站搞松下新风系统团购活动,大概以1万+左右的价格就搞定了,包括设计、安装、售后全部服务。
2、选网上还是实体店的新风系统?
个人建议还是选实体店的新风系统,他们相对来说会更加专业,尤其是在安装上。我有朋友是觉得新风系统就是一个高级一点机械抽风送风机器,用不着请人安装。加上他自己本身是工科毕业,会自己画图,他就是选择花了6千元网购了新风机和各种安装材料,找工人安装。最后他来我家体验的时候,发现还是有差别,风量和舒适度还是专业的新风系统安装公司做会更好。
3、产品信息分享

我选购的是产品型号FY-E25PMA,新风系统类似中央空调一样,是根据家里的面积来选对应风量的主机的。有四种主机可供选择,分别是100立方/小时、150立方/小时、250立方/小时、350立方/小时。
科普:
100立方/小时、适用建筑面积60平方的2房;
150立方/小时、适用建筑面积100平方的3房;
250立方/小时、适用建筑面积120平方4房;
350立方/小时、适用建筑面积200平方6至7房。
这个数值是参考,具体还要让安装新风系统的师傅上门实际勘测家里的情况,因为有些人家里虽然是100平,但是实用面积高,想要更好的空气体验,可以考虑选250立方/小时的主机。我就是基于这样的情况,选择FY-E25PMA,选择250立方/小时的主机。具体的产品信息如下:整套产品(含全热交换器、圆形进排风口、液晶控制器、静音箱、通风管道、五金配件、圆形管罩、安装和材料费)。

听说最近他们推出一款全屋新风系统新品:FY-25(35)ZJD1C,在原本的基础上进行了智能化和空气净化的提升,对比我之前安装的老款多了智能化,可以联网可视化PM2.5过滤情况,还有净化空气的效果。
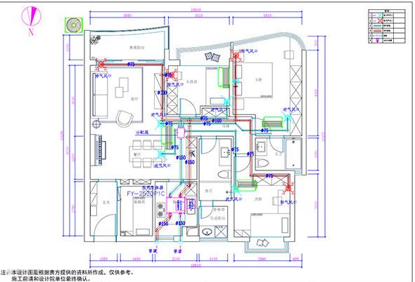
二、新风系统安装过程
1、为什么重点写新风系统的安装过程呢?
这是因为有了朋友自己安装新风系统后,一直在吐槽新风系统很鸡肋,风量不够,噪音太大,反正过程和感受体验很不好。等我选购新风系统的时候,他就告诉我一定要选择靠谱正规有实力的新风系统安装公司很重要。
事实上真的是这样!经过我自己考察了多家多个品牌的新风系统公司后,总结出来。根据自己网上做的功课随口问了几句门店的师傅,发现他们都很不专业,最后选择这家,就是看中他们是专业正规军出来。事实得到印证,新风系统除了看产品和品牌,还要看安装能力。
建议:如果你是选择松下新风系统,想要知道你够买的新风系统是否正品和专业,可以上http://pro.panasonic.cn查询,在里面选择靠谱的经销商安装新风系统。他们都是经过松下品牌专业培训,相对路边游击队安装会专业很多。
2、新风系统安装时间和正规流程
安装时间:中央空调之前和水电改造之后
正规安装流程:

1)安装公司一定要实地上门勘测,并且根据家里实际情况出设计图,定好机型。(如果没有这个步骤,那这个安装公司是耍流氓。因为新风系统不同于其他电器,一定要看家里情况是否适合安装。并且要根据家里户型情况出安装图,这是专业化第一步。)然后出最终报价签订合同。
2)吊装主机,安装管道。
3)商家和业主第一次验收,主要是测量风量和噪音情况。
4)噪音和风量测试合格后,才密封管口,包装好管道。
5)把进风口和排风口装好,调试风量,做好开关。
6)第二次验收,使用噪音仪和风速仪验收,开机前后噪音分布不能大于4分贝,并且风量不能少于设计风量80%。
3、新风系统安装注意事项
1)尽量避免梁上打孔

(金属探测仪,绿灯代表没有钢筋,红灯代表有钢筋)
梁里面都是钢筋,新风系统不可避免要在上面打通安装管道。但是专业的安装公司都会尽量避免在梁上打孔,在设计之初会考虑管道走向和主机摆放位置,并且现场初次勘测的时候就使用金属探测仪找出钢筋位置。最后出的图纸一定是尽量避免主梁,如果实在要过梁,使用功能PE管合理过梁,大大减少打孔的数量。
2)主机安装位置很关键

主机尽量要放在厨房或卫生间,这是因为风机会有噪音,另外是主机比较大,放在卫生间和厨房有吊顶,即使吊顶矮一些也不影响。而且最重要的是主机下面一定要留有检修口,让后期安装和维修都方便。
3)管路安装的要求


管路的走线要横平竖直,尽量水平走线,这样做会让风量更均匀到各个房间。尽可能少用90度弯头,这个角度弯头会使得风损减少50%。但是在风口末端可以用,因为这样可以保证末端风压,使得风更匀速。

变径管


管道的走向是离主机的管道直径大,越到出风口越小。采用这种变径管道为了减少风损,主要目的是让全屋送风都达到均衡。如果不用变径处理,都同样的管道,很有可能末端房间风量大,而中间过道地方风量小。这也是为什么有些野鸡安装团队装出来的新风系统,风量不均衡舒适度不好的部分原因。
4)进风口和出风口安装要点


新风系统排风口
同一个房间进风和出风口不要放在一起,可以左右一个。排风口建议装在门框上,而进风口窗台下方,两个口形成一个循环。如果你家新风进出口放在一起,可以说这家安装公司很不靠谱,这样装刚进来的新鲜空气就会被排出去。刚好我家里有装中央空调,安装师傅就建议我把进风口放在空调口下面,可以帮忙快速扩散冷气,省钱省事能把新鲜空气送到全屋。
总结:把这四点按照注意事项做好,基本上你家的新风系统就算是安装的很专业的了。这也是我跟这家安装公司有着10年安装经验师傅学习总结出来的。
三、使用感受分享

使用了大半年,感觉效果还是不错,特别是夏天关闭了门窗开空调和新风系统,晚上睡觉的时候也不会觉得干燥。在室内也会觉得空气很清新,但是用半年之后,发现旁边开关显示红色,提醒要更换滤芯,取出来一看,整个滤网黑的不成样子,空气真是差。

左边是使用半年的滤芯,右边是新滤芯

排风口可以自己清洗

滤芯更换频率:24小时开新风,一般6个月左右更换滤网,滤网是一次性不能水洗。200-300元左右更换一个。排风口可以拆卸出来清洗,使用厨房清洁剂自己清洗就可以了。
新风系统电费:80W~150w,一天(24小时)耗电2-3度,比冰箱还省电。

空气净化能力:我购买的是旧款,过滤室外空气,排出室内脏空气,使用起来感觉还是很舒服的。当时搞活动的时候,商家还赠送了一个松下空气净化器,两者配合着使用,使用空气质量测试仪测试后,数值还是非常不错的。
(图片来源于网络,版权归原作者,侵删)