日本62.81㎡被藏起的厨房,打造魔法一般的改造效果
住范儿
2019-12-26
日本62.81㎡隐藏式厨房
一些柜子、衣帽间藏起来已经见怪不怪了,你见过整个厨房都被藏起来的吗?
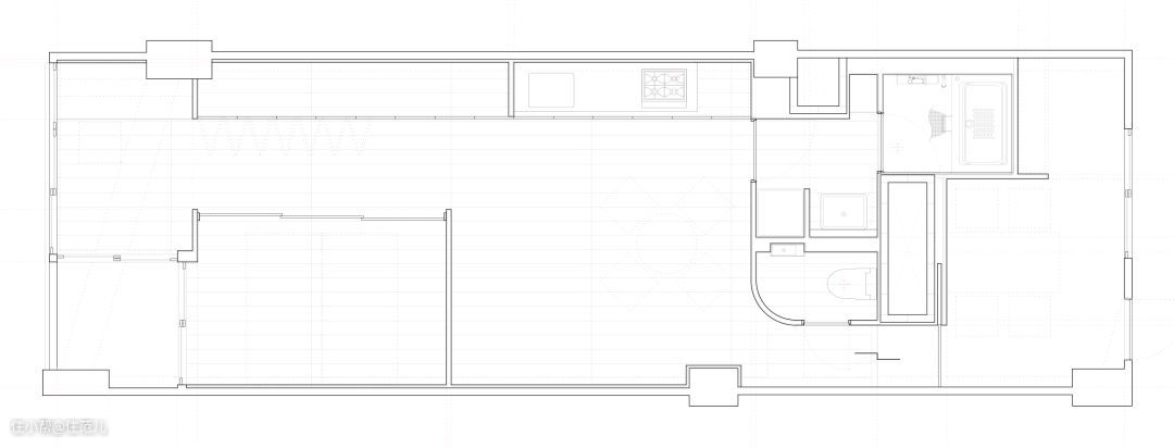
这间位于东京62.81㎡的公寓,是已经有50年房龄的老屋了。原始户型是长条一字型,采光不足,纵向走道面积也比较小。

从玄关进入就能发现,整个屋内视觉以白色和浅木色为主,天花板和墙面都粉刷成素净的白色,显得空间宽敞明亮。
灯管的线路是整齐露出的,为平淡的空间增添了一点小变化。

瑞士设计师马克斯·比尔(Max Bill)的Ulm凳子被用作边几使用。
玄关右侧的空间是卫生间和浴室的区域,从较窄的玄关走道进入客厅,更有一种豁然开朗的感觉。

客厅的布局也比较简单,单色拼布的地毯,点缀的绿植和一套桌椅就是目之所及的家具了。想让小空间留有余裕,就要减少大件家具的出现,减少视觉上的压迫。
这个圆板凳是芬兰设计师阿尔瓦·阿尔托(Alvar Aalto)的经典设计,可以好几把堆叠在一起,绝对是极简、实用又不占太多室内空间的家具了。


回到折叠公寓和隐藏式收纳的重点,这个家把整个厨房区域都隐藏在木制折叠门后面了。
这种隐藏空间的折叠门,灵感来自于日本的折叠屏风“Byōbu”,让区域划分更有变化性。
厨房和客厅相隔较近,厨房环境在视觉上容易杂乱,不使用厨房时,把折叠门一关,瞬间缓解了视觉压迫感,也符合整个房间的日式极简风格。


厨房旁边的空间就是隐藏的储物柜,同样可以通过折叠的方式打开。
连接卧室、办公区域和客厅的也是一个狭长的过道,过道左边卧室的门是三折推拉门,滑动打开不占过道的面积。
长型户型采光不足的问题,靠大面积玻璃窗的设计来缓解。


可折叠的家具被设计出来,就是为了在小户型室内面积有限的情况下,能科学的提高空间使用效率。
巧妙地运用高度差和各种可隐藏的多功能家具设计,呈现魔法一般的改造效果。
可参考的小tips:
1. 折叠门和推拉门的使用,可以节省门开合的空间,门可打开的空间也更大。
2. 小户型空间不够,可以使用轻巧灵便的小家具,更实用。
3. 原木色与白色这一类比较素雅的室内配色,能使空间显大。