18平改造难坏设计师:5口之家还要生二胎,网友:勇气
保驾护航好物研究所
2020-03-06

在北京市东城区翠花胡同的耳房里,生活着一家5口:王薇,她的老公、女儿、公婆。如今王薇还是一位怀孕8个月的二胎妈妈。

△ 改造前后对比
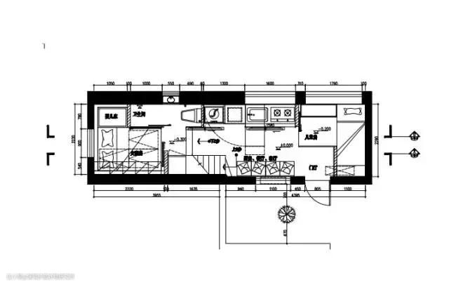
1
2.2米窄条之家 变身三室两厅宜居阳光房
只有18平米的家,由一个10㎡的平顶自建房+一个8㎡的尖顶老房组成。

房子宽度仅有2米2,这是一个只能并排站下4个成年人的宽度,这是目前为止最窄的房子!

这样一个狭窄的5口之家,马上还要迎来第二个孩子,18㎡,5+1口人,2米2的极限宽度,给设计师带来了极限考验。


△ 改造前平面图(只含一层空间)

△ 改造后平面图(一层)

△ 改造后平面图(新增二层)
2
极限宽度·挑战严峻
面积只能放下四张双人床的房子,
宽度只能并肩站下四个人,
设计师多次讨论后,
最终决定将入户门改在整个户型的中间位置,
这样原有串联的功能区就可以有效的分隔。

不过就在开工的第一天,
这个方案就被叫停了。
原来新调整的入户门,
虽然没有占用别人的空间,
但使用的是候却影响了邻居现有小院的使用,
所以设计师不得不放弃这版方案。

同时拆除工作使得原有房子的基础问题也暴露了出来,
重新加固后房子的宽度从2米2变成了2米,
本来就窄的空间,再次压缩,
设计师只能分毫必争,
一厘米一厘米的计算每一个布局。
改造难点
01
功能区呈串联形式 布局混乱
房子呈狭长型,所有的功能区都呈串联形式出现。所以房间收纳混乱,家里所有人的物品不能好好整理。


狭窄的空间里,如一张床、一张小桌、一台冰箱... 所谓客厅卧室等功能分区简直无从谈起。

02
夫妻房横亘屋腰 缺乏私密性
房子的中间是小夫妻的卧室,进出家门、去厨房或卫生间,到里屋都要经过这里。


摆了一张床以后,通道仅剩70公分,只能一人通行。因为窄,小两口的床铺与公共通道之间只有一个简易的拉帘,根本没办法安门,所以隐私性非常差。

03
老人与孙女合挤小床 生活不便
里屋是四合院耳房的一半,是老两口和小孙女休息的地方,三口人每天晚上,只能横着睡在一张两米的床上。

由与储物空间有限,5口人共用一个衣柜。所以婆婆张阿姨就当起了通勤家长,每一到两周,她都要将一部分暂时用不到的衣服杂物背回河北老家,再将换季的衣服背回来。
这样来来回回折腾的日子,已经持续了3年多。

04
局促空间 基础生活也处处遇难
家里找不到一张正常高度的椅子,全家人吃饭都用小马扎,围坐在70公分宽的矮桌旁,后背顶着冰箱和衣柜,吃饭就像打夹板一样难受。

不到2平米的卫生间,5口人使用非常紧张。除了淋浴、手盆和厕所外,还有洗衣和储物功能。洗衣机堵在卫生间门口处,进入极不方便。

局促和狭小,也导致了整体卫生情况令人堪忧,排水等设施都未妥治,老人小孩孕妇均面临着卫生间潜在的安全威胁。
05
核桃树下夜不能寐 保暖噪音烦恼多
自建房的房顶是简易的彩钢板,不仅保温隔热性差,每到秋冬还会给业主一家带来非常大的困扰。

每到秋天,门前核桃树上的果实成熟以后,遇到刮风天气,核桃就会掉在彩钢板的房顶上,发出咚咚的声音,导致一家人难以入睡。
3
二胎风波·人性关怀 设计师为孩子打造梦幻儿童房
改造的过程中,业主家小女孩和妈妈王薇之间发生了一场风波...

由于二胎的到来,王薇陪伴女儿凡凡的时间和精力变少,这让凡凡把怨气撒到了妈妈肚子的小宝宝身上。

设计师知道了这件事情以后,决定通过本次改造,帮小女孩打造一个梦幻的儿童房。让这个曾经只能和爷爷奶奶挤在一起睡觉,画画就只能趴在床上的孩子,在新家里拥有自己独立的空间,也可以感受到爸爸妈妈爷爷奶奶对她的爱并不会因为二胎的到来而减少。

装修改造后
1
客厅

△ 餐厅+楼梯
改造后的客厅在整个狭窄房间格局的大前提下,尽量疏通了一条主线,并在左右两侧安置了合理的功能区域。

△ 厨房+客厅+走廊
客厅中心的走廊线在2.2米的空间局限里,竟完全不显狭小,同时可容纳多人来往。并且设计师在两侧安置了折叠家具,需要时在客厅空间还能衍生出其他需要的功能区域。同时在客厅角落增设楼梯,轻松变出loft之家。

△ 厨房+客厅+餐厅
2
厨房
改造后的厨房镶嵌在客厅走廊边上,一扫往日‘脏乱差’的形象,放眼望去竟显得整个空间绰绰有余十分宽敞。合理的操作台和收纳家具让新厨房焕然一新,明亮的开窗使得房间不仅通风畅通,阳光也能徐徐地渗透进来。

△ 厨房
厨房的面积约1.5平米,局促、狭窄,老人做饭时几乎容纳不下其他人帮忙,所以在改造设计过程中,设计师重点关注了这一区域。

△ 厨房+客厅+餐厅
全家齐聚吃饭的场景将不再显得拥挤和局促,折叠餐桌拉伸出后,配合木坐凳便形成了宽敞的餐厅空间。

△ 厨房+客厅+餐厅(二楼角度)
3
老人房
老人房被设在新增的二层空间,宽敞温暖的大床更适宜老人休息。房间屋顶上开设天窗,解决了房间通风和光线问题,为老人打造贴心环境。

△ 老人房

△ 楼梯间
4
夫妻房
本次改造针对二胎未来不同成长阶段进行了有变化空间的设计。从婴儿出生到三个月之间,父母与新生儿将睡在一层,便于产妇行动。一层主卧床旁设置了婴儿小床。

△ 夫妻房
玻璃隔层和收纳墙体打造了私密的夫妻生活空间,床面更加宽敞舒适,让孕妇在临产前也能拥有一个舒服的休养环境,并且完全杜绝了睡觉翻身会掉下床等安全隐患。

△ 卫生间
改造后的卫生间与一层夫妻房的隔壁,设计师将房子底部全体加设了钢筋混凝土的整板基础,整体铺设防水并卷铺至墙体。洗漱和方便的空间被分隔开来,更加卫生便利、功能独立。
5
儿童房

设计师将很多奇思妙想都融入到这间迷你儿童房里,希望通过改造,帮小女孩感受爱、学习爱。

新增在二楼的儿童房空间宽阔,为了给大女儿打造一个梦幻童年,设计师贴心为她打造了一个草地画廊,不仅放下了画板工具等,还有一面可以展示作品的墙面,凡凡再也不用趴在爷爷奶奶的床上画画。

二层设置了更大的婴儿床,在二胎三至五周岁左右时,独立儿童房的床铺下方活动区可通过墙面可翻床板变化成一张新的小孩床,共两个孩子使用。

暖心设计
1
玄关处抽拉式鞋柜

折叠鞋柜为家庭增加了更多必要的收纳空间,并且出门前拉出空间后还是一个便利的穿鞋凳。
2
推拉电视墙

在极小空间内保证业主厨房、客厅、餐厅的使用功能。
3
隐藏婴儿床

在婴儿成长的不同阶段,满足不同的使用功能,孩子大一些后婴儿床位置可以做储物柜功能。
4
旋转餐桌

餐桌设计,大大满足一家6口人的就餐需求,大大节省了空间。

全家围坐一起的景象温馨动人
5
加固设施开天窗

房屋顶部设了天窗,让整个房间温暖、明亮。顶部除了用混凝土重新浇灌外,在吊顶内部也加设了岩棉,起到降噪、保温的作用。

6
梦幻云彩灯

为了给凡凡一个温馨可爱儿童房,设计师还为凡凡亲自做了一朵可爱的云彩之灯。
小户型我来教你装↓↓↓点下方“了解更多”,立领设计师300名业主0元全屋设计+报价方案↓↓↓
↓↓↓