拜托了开发商,多做一些「垃圾」户型吧 #装修经验#
住范儿
2020-04-21
年前去谈事情,听到这么一个消息:
有地产商非常奇怪,为什么现在的年轻人那么热衷于改户型。
简单一点的改个开门位置、隔个衣帽间。
动静大的,把所有能拆的墙都拆了。


原因很简单:现在大家的需求越来越个性了,单一的“好户型”很难满足所有人的需求了。
我在法国留过学,也到过北欧日本的人家,他们的户型非常丰富,价值观也很多元。
一栋不大的楼里,可能会有十几个大小不一的户型供人选择。
现在国内房地产主流市场,挑户型的逻辑非常简单而且单一:
● 户型方正
● 南北通透
● 明厨明卫
● 客厅主卧朝南
● 房间多多益善
● 偷面积多多益善
但除了符合以上标准的完美户型之外,还有大量看似不好的户型,其实居住体验并不差。
正好我一直都在看房、包括这些年去过很多家访,我会从真正购房者的角度聊聊,什么样的可以叫好户型。
尤其对于一二线城市来说,能够拓宽选择范围,在有限的预算里,淘到很多看起来并不“完美”,但居住体验同样不赖的房子。
查看我们的更多视频:
B站 @住范儿
抖音 @住范儿大狮子
厨卫不能小
我看户型第一个先看厨卫。
厨卫小、相互紧挨着,旁边还有承重墙的,除了一小部分可以抢救,剩下的住起来一定不舒服。

厨房和卫生间看似不起眼,但非常大地决定了生活品质。
而且因为这两个空间涉及大量的上下水管线、通风管道,意味着马桶、水池、灶台的位置基本都被限定住了,更不可能满屋子乱挪位置。

比如我们之前研究日本的小户型,40㎡的套内,还要拿7个㎡出来做卫浴空间,非常大手笔。
除了卧室,整个公共区域都打通,做餐厨客一体。
尽管是个小户型,住起来也都不会觉得拥挤。

但国内实际的情况却是:
厨卫面积被压缩到极致。
更多的空间留出来给客厅、给卧室,边边角角才安排厨卫。
现在还有大量的厨房里放不进一台正常尺寸的冰箱,做饭拿个东西得里外来回跑。
80年代前的卫生间甚至2㎡都不到,就是要你站在蹲坑上方洗澡,刷牙都要去厨房水槽,更别提洗衣机了。

在2004~2006年之前的户型,为了方便上下水管的布置,厨房和卫生间都紧紧贴在一起。
尤其在广东还有非常多卫生间在厨房里的设计。
加上厨卫旁边一般都是承重墙,想扩都没法扩。

这样的厨卫不是不能用,但就是憋憋屈屈。
人在里面住久了,会非常辛苦。
户型可改动
很多户型乍一看不错,但是完全没有改动的空间,每面墙都被限制住了。
价格合适、地段合适、配套合适,就是户型不合适,这房子到底买还是不买?
户型如果可以改,哪怕原始户型有问题,也是可以入手的。
后期装修多花一两万砌墙拆墙,非常划算。
窝囊二居变高配
像这个北京的户型,地段非常好,步行10分钟双地铁,单价比马路对面便宜近一万,而且是周围难得的小户型。
98年的55㎡小二居,只有一个小暗厅,如果当二居使用,非常凑合。

但要是能拆改,把暗厅、厨房、次卧打通变成一个大LDK,再扩一下卫生间面积,就是方圆3公里都没有的高配一居。

当然实际情况是,这两面大概率是承重墙不能动。
所以厨房做不了开放,但次卧仍然可以拆掉。

五种用途的厨房
好的户型,还能适应各种不同的生活习惯。
比如这一套户型,厨房和餐厅相连,原本是常规的独立厨房。

但它稍微改改,就能有非常多种用法:
把隔墙完全拆掉,就是开放式厨房
▼

担心油烟,或者有其它需要
也可以把灶台单独隔开,做中西分厨
▼

开放式隔出来一个生活阳台,便于晾晒
▼

靠内侧的位置隔一个国外常见的
独立食品储藏室或杂物间
▼

不用处处完美,有舍有得
南北通透、明厨明卫的完美户型,人人都想要,但不是人人都负担得起。
无奈理想丰满,钱包性感。
所以好的户型,其实不用处处完美,反而应该“把钱花在刀刃上”,该好的好,该省的省。
而且现在科技发达,很多所谓的问题其实早不是问题。
暗空间
现在的楼越盖越大,中间没有采光的暗空间就是个问题。

但暗空间只要利用好了,并不影响居住,还可以有效降低买房成本:
储藏室/衣帽间/设备间
使用频率极低,完全没有必要自然采光。
卫生间
使用频率低,而且都有通风井,只要开排气扇,肯定不会有异味、通风问题。
卫生间的异味通常是从下水道返上来的,和暗卫无关。
拓展阅读家里一股屎味儿?因为这些没做好
厨房
如果做了开放式厨房,餐客厨连在一起,厨房就不需要单独开窗户了。
日本住宅大多都是这样的设计,但国内建筑规范不允许(主要是因为燃气)。
拓展阅读 中国不承认开放式厨房

卧室
卧室晚上睡觉,白天就不呆在里面了。
只要能解决通风,有没有自然采光并不要紧。
日本很多住宅的卧室,采光很弱或没有窗户。

比如像这个巴黎的户型,户型也是对向采光,和国内一些二居非常相似。
但它厨房没有采光,直接做成开放式,和整个客厅一起接受大窗户的采光,开发商不需要挖空心思给厨房加窗户。
(右滑查看相似户型)


又比如这个俄罗斯套内88㎡的户型,虽然只有单面采光,但把采光都给了两个卧室和客厅。
靠内一侧的暗空间,就安排给了走廊、卫生间、储物间,空间利用非常合理。
而且这个大手笔的玄关设计,居住体验比很多国内同类户型要好很多。
关于这个户型的更多美图,可以在今天的灵感家栏目里看到。



通风
除了南北通透,很多户型的通风多多少少有点缺憾。
更别提有暗空间的房子。
这个问题用新风系统就能很好的解决。
像是商场、办公楼、机场、医院,很多都没有自然通风,依赖新风设备进行换气。
很多欧美的高层豪宅,窗户直接封死,完全依赖新风。

给大家做个简单的数学题:
100㎡的房子,新风系统一套2万。
主机功率90~120W,24小时耗电3度不到。
按最高梯价8毛钱一度电算,一年电费也就840块钱。

新风系统用十年,成本也就三万不到,但房价如果低10%,省下的钱就相当可观了。
室内温度
西向、顶楼的屋子价格低,除了漏水,就是夏天比较热。
这个问题解决起来也很简单:空调买大一号,开的时间长一些。
说到底也不过是笔经济账,就和前面讲的新风一样。
乍看觉得浪费电,但房子便宜的就也许不止这个数了。
顺便说一句,漏水这个问题,也是便宜几百,贵则一两万能彻底解决的问题。

我父母家就是顶层,住了十几年从来没漏过水。
符合自己的生活方式和需求
看房的时候,多想想屋子之后可以怎么装修、怎么布局,捡漏的可能性非常大。
这种小厅大卧的户型,其实很适合在主人床边放婴儿床,或者提供给需要用轮椅的老年人居住。


有的大一居,面积足够,自己隔成两居,也绰绰有余。


在这一点上,建议买二手房一定多和几个中介聊。
好的中介,能帮你找到最适合你的房子。
大小适宜,给每个人居住的尊严
讲户型,就没有办法脱离买房。
大城市的房价越来越贵,大量刚需关心的,并不是哪个户型好,而是根本买不起房子。

2005年的国六条,要求地块70%的户型面积必须在90㎡以下,俗称70/90政策。
这个政策出来后,市场出现了大量的89㎡小三房。
这种小三房虽然面积紧巴巴的,但总价不高,非常受刚需欢迎。

下面这个户型出自贵阳神盘花果园A区。
建筑面积43.66㎡的两室一厅,基本已经小得不能再小了。
(彩图家具尺寸明显不合比例)


测算实用面积约34㎡,单面采光,厨卫全明,几乎没有空间浪费。
该有的部分一个不少。
在2015年之前,这样一套房子只需要20万左右就能买到。
说到花果园,这个小区紧挨着贵阳老城区,密度极高,住了40多万人,一层楼9户,一直被本地人诟病脏乱差。
但正是因为这个超级大盘的存在,压制了贵阳房价很多年。

图源:见水印
很多曾经在其它省份打工的贵州人,也得以实现省城购房的梦想。
大量回流人口,给贵阳的经济起飞奠定了基础。
到目前为止,连续9年,贵阳的GDP增速一直保持全国城市前列。
2019年,贵州省GPD增长率8.3%,全国第一。
就像全球卖得最好的汽车,是5万不到就能载一家7口人,拉人送货两不误的五菱宏光。
真正好的户型应该大小适宜,先满足基本的居住需求,再去做各种享受和升级。
一个好的市场,应该各个面积大小的户型都有齐备。
尤其要在市中心和交通方便的位置,有数量充足的小户型。
哪怕住得挤一点,也能让年轻人和新移民找到归属感。
在这一点上,上海比北京好,广州比上海好,东京比广州好。
这四座城市的居住幸福感,恰恰也是按这个顺序排列的。
我心目中的好户型
说了这么多,好户型不但住得舒服,还要买得起。
下面分享一些我心目中不错(我会入手)的户型,以供参考。
国内户型以建筑面积标注,海外户型以实用面积标注
一居室
● 北京·保利金泉70㎡ 2008经典一居布局,虽然朝北但都是大落地窗,采光非常好,而且还有一个生活阳台。前面举例的百变厨房就来自这个户型,整个小区的二手房在厨房这部分有各种不同的改造。

● 广州·万科云城36㎡ 2015
麻雀虽小五脏俱全,上下双卫设计,如果有需要,工作区还可以分割出一个独立房间。
LOFT是商业土地,可以规避掉部分住宅建筑规范,实现更高效的土地利用。
这种户型如果是70年产权非常值得入手。


瑞典·哥德堡64㎡ 1903
国内避之不及的手枪户型,但结构合理,独立门厅有充足的收纳空间,厨房里可以放下餐厅。

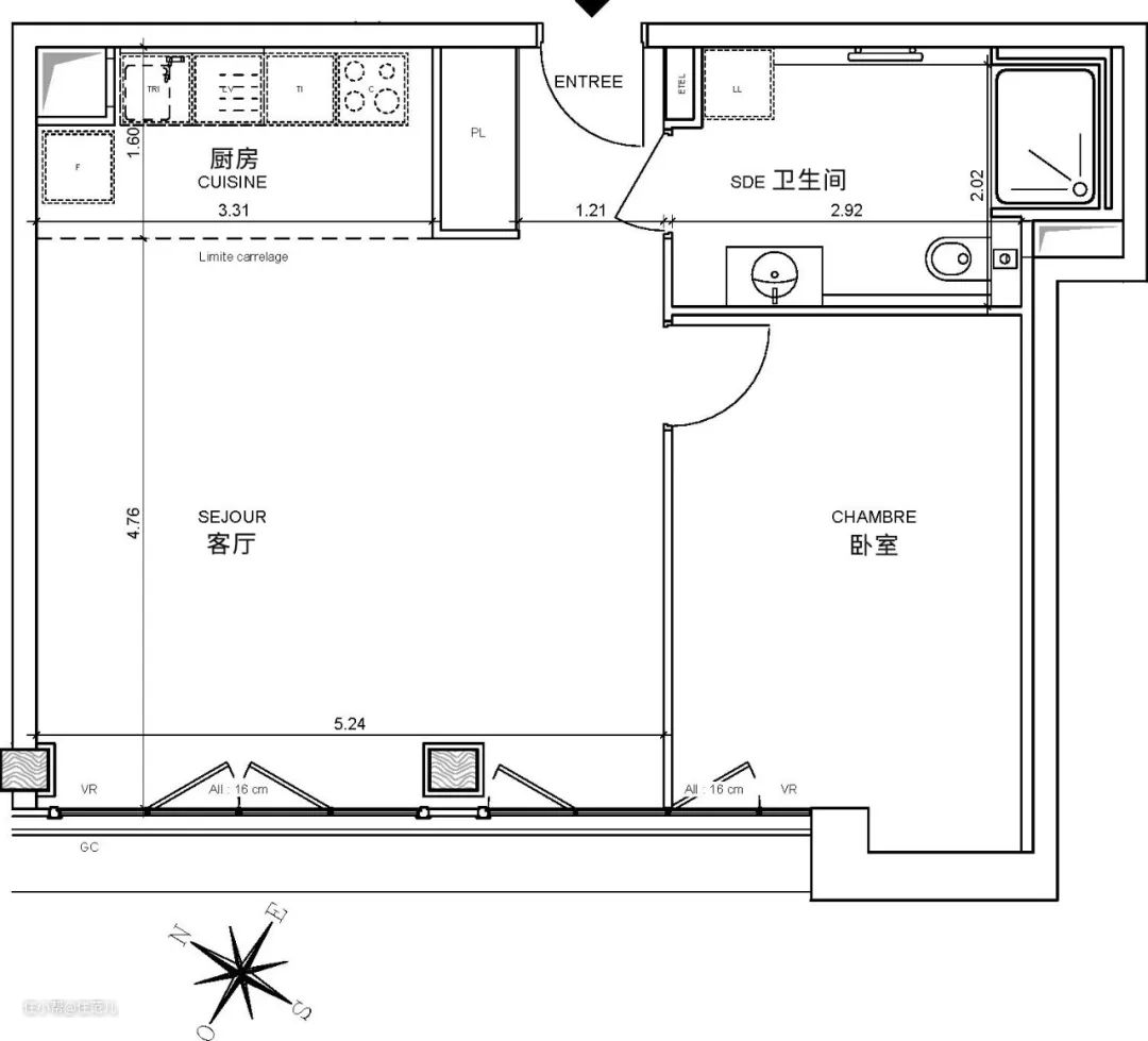
● 巴黎·AIR DU TEMPS 52㎡一居 2020
户型方正,利用率高,没有任何一面多余的隔墙。

二居室
● 青岛·万达维多利亚湾99㎡
标准的南北通透舒适二居,没有多余的面积浪费,最重要的是厨房足够大,并且有可能改造成开放式。

● 巴黎Hors Du Temps 87㎡ 2020
厨卫相当舒展,公共区域宽敞,最重要的是大小储物空间都有相当精细的设计,而且柜体均是嵌入式的。
上海万科翡翠公园有类似布局户型。

三居室
● 惠州·新力东园118㎡ 2020
经典的南北通透、舒适三居布置,玄关特地预留了玄关柜,厨房结构可分可合,主卧有黄金衣帽间。

● 郑州·万科世曦90㎡ 2019
几乎可以说是90㎡小三房的唯一最优方案。

● 法国图尔·Mosaik 82㎡ 2020
从玄关处有严格的动静分区,加上横厅和大露台,完全参考豪宅理念设计的中等户型。
露台面积10㎡另计

● 巴黎·100㎡ 1800s
由两个单位合并的三居室,从厨房进入主卧的设计看似离经叛道,但仔细一想对空间的利用还是非常高效。

你理想中的户型是什么样呢?
快在留言区和大家分享吧!