LOFT公寓户型设计爆款是什么样的?看完这8个户型你会有所收
泰大结构创新
2020-05-19

随着“类住宅”产品的成熟,具有夹层的LOFT公寓作为一种灵活的建筑空间划分方式,在市场中的地位越来越重要。其优势主要体现在可变性强,空间集约利用,宜居住宜办公等。可以预见的将来,会有更多的LOFT产品出现,这些产品的定位将突破原来的年轻化,时尚化标签,朝着更广阔的市场迈进。本文中,小编将总结并预测下未来市场可能会火爆的LOFT公寓类型。
竖向空间分区
LOFT公寓所属用地性质多为商业属性,根据不同地区容积率算法的规定,产品层高在4.2米到4.8米之间,以4.5米层高最为常见。4.5米左右的空间用于日常居住功能较为奢侈,因此设置夹层就有了市场需求。可以判定,竖向空间的设计,即如何“隔两层”,决定了LOFT公寓的成败,是所有产品需要讨论的第一话题。
LOFT公寓的动静分区,一般也随着结构板的划分而自然形成。常见的做法是入户层为动区,设置客厅,厨房,餐厅,夹层为卧室等静区。同时随着市场的细分,也出现了利用LOFT楼板做两层均独立入户的产品,本文也会在稍后的篇幅中介绍到。
LOFT公寓的竖向设计成败与否,可以概况为:如何在满足结构强度,声学,设备等的硬性要求下,用尽可能轻薄的结构板平均分割上下两层。因为板的厚度,直接决定了可使用层高的大小。传统的设计中,125mm到180mm的板即可满足分割的要求,但是容易忽略的是,二次装修中,各种管线、灯具和电缆会极大的减少层高,因此实际中空间的高度需要不止减去板的厚度,还需要减去电缆管线的高度。很多产品的失败,往往就是只考虑了土建部分,忽略了二次装修所带来的“高度损失”。
各个设计师也在“节省高度”方面做出了“极限”的探索。LOFT夹层做法也有好几种方案,近期出现的TD-LOFT夹层做法厚度较小,因为其采用了“一体化设计法”,其做法的精髓在于将各种管线电缆、建筑面层和吊顶集合楼板设计,包括吊顶和面层的建筑完成总厚度一般为125mm甚至更小,这就为LOFT竖向空间的舒适性带来了很大的好处,夹层平面布置的灵活度也有所提高。
平面空间布局
和普通住宅一样,动静分区,流线组织,功能布局同样是LOFT公寓所需解决的问题。由于有夹层的存在,LOFT公寓平面布局重点在于通高的位置,楼梯的布置以及一二层功能的衔接方式。传统中的LOFT户型在入户层设置客厅,餐厅,厨房等对外空间,是为“动”区。夹层设置卧室,家庭室等对内空间,是为“静”区。和传统住宅类似,其卫生间也需要保持上下对位,管线也需要尽可能对齐优化。而挑空的空间多为对层高要求较高的客厅、活动区,且挑空往往结合楼梯进行设置。
笔者根据多年的实践和总结,对已存在的模式进行总结和对比,列出以下几个典型LOFT户型分别做出分析介绍。
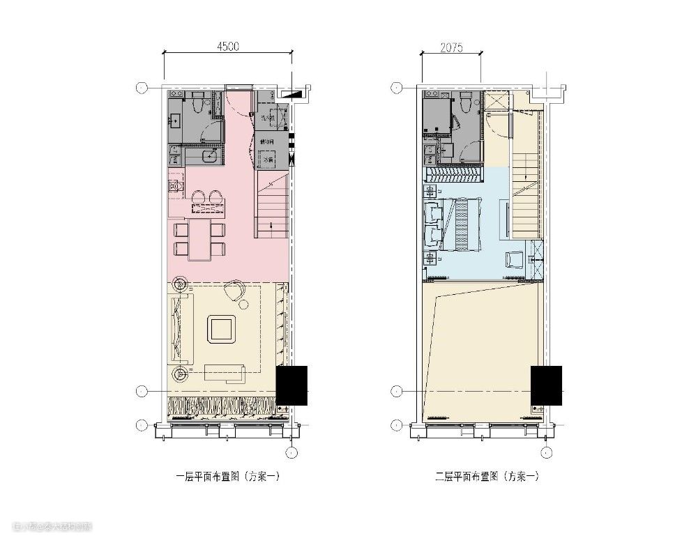
A户型

A户型房间是集约式LOFT的典范,其空间模式适用于新婚夫妇或三口之家,同时具有改造为工作生活一体化SOHO空间的灵活性。该户型开间4.2米,两开间恰好用足一跨柱网宽度。进深8.5米,将住宅进深几乎用到最足。
该户型消解了所有交通空间,不出现纯粹的“走廊”。一层的“动区”中,入户的玄关走廊、卫生间的入口空间、楼梯上人空间以及厨房的操作空间直接合一,在入口处最集约的解决所有对外功能。向阳的一侧布置需要严格采光的卧室,充分利用有限的开间。而卧室、厨房中部的位置为公共活动区域,设置餐厅和休闲区,该区域位于户型中央,适合组织日常起居生活。值得注意的是,通往夹层的楼梯巧妙设置为了休闲区的空间点睛之笔,其梯下空间可结合室内装修,作为电视柜或者书柜,不浪费一平米面积。
夹层空间是主卧室所在层,是私密生活的空间。包括卧室、卫生间、活动区,夹层布局和一层布局高度对位,产品极其成熟。同时,主卧室可以享有一个 “中空”,虽然空间集约,但极大增加了生活的趣味性。
值得指出的是,A户型以及小编之后介绍的几乎所有户型,都采用了一个“小心思”,极大的提高了生活的品质。从A户型二层可以看到这个“小心思”所爆发出的巨大市场潜能。众所周知,公寓的公共走廊,除去做电缆桥架、通风管道等设备空间外,其高度是浪费的。而该产品将走廊上空的空间,巧妙的设计进了公寓,变成了产品中的衣帽间。从图中可以看出,通过室内的两级台阶,产品可以直接借用公共走廊上的空间作为衣帽间或者储藏室,该解决方式,将从根本上解决LOFT产品面积小,储藏空间不足的缺点。
B户型

与A户型类似空间尺度,B户型采用半跨柱网,即4.3米开间,其进深则达到10米。B户型减少了二层对位的卫生间,相应的增加了一个卧室,这种增加可以更好的应对客群上对卧室数量的需求。由于进深的增加,入户方式也改为侧面入户,这样设计极大的增加了厨房的操作台长度,甚至可以出现一个日常餐饮的吧台。可以预见,吧台将成为入口空间的亮点,丰富了餐厨体验趣味。
相比起A户型,多出的进深使得B户型将活动区扩大成为了一个完整的客厅,客厅结合楼梯,在户型中部达到一个小的空间高潮。B户型具有的空间向心力非常明显,动静分区也更加的明朗。
同时由于户型进深的增大,使得整个户型可以存在尺度合理的三个卧室,这给户型的使用带来了更多的可能性。该产品也因此更加适合有一个小孩的家庭,或是经常有访客来访的家庭。可以预测的是,很多住户会将位于内侧的卧室,灵活改为工作室,将夹层整个变为主人私人活动空间。
C户型

C户型,D户型两种户型是LOFT公寓所能探讨的一个重要方向。实际的设计和地产开发当中,“面宽”是极其宝贵的资源,“进深”往往有较多的充裕。所以,该户型更多的为了讨论小面宽,大进深下的设计方法。而两种户型也不约而同的将通高空间放到了靠近窗的一侧,这也是这类空间设计的要诀,即:强调交际,强调公共空间的吸引力。
C户型的客群受众是单身公寓,或是集工作生活为一个空间的自由职业者。这类人群,对卧室的数量,卧室品质的需求,小于对工作区的关注。因此,更好的工作、交际体验,才是解决这类人群空间需求的不二法门。
根据户型的平面图可以看出,至少在4M的面宽下,完全满足一个“单身公寓”需求没有任何问题。在丁克家族,单身贵族大规模存在的市场环境下,C户型将着力点放在了提高公共空间品质上。少掉的一间卧室,被打造成了通高的工作室,品茶间。将阳光最好的空间重点打造为日常生活最常去的地方。C户型动静分区明显,面积集约,且产品定位极其清晰,具有良好的市场潜力。
D户型

D户型与C户型相仿,然而其产品定位略有差别。D户型的关注点,更多的是去打造一个非常有吸引力的客厅。从平面可以看出,D户型的客厅是所有设计当中,最完整,品质最佳的一个。这样的设计对市场上追求交际,追求家庭生活的新婚夫妇,单身白领具有非常大的吸引力。
值得注意的是,D户型并未将通高空间结合楼梯设计。楼梯位于入口处,从入口即分开动静流线。这样设计的目的也是为了让客厅更加完整。相比C户型,D户型强调“生活”本身,上下对齐的卫生间,也让主人在日常起居中,更方便的使用。虽然D户型只有一个卧室,但是所带来的空间品质全方位提升,仍然对于市场中追求空间和生活品质的年轻人有相当的吸引力。
E户型

E户型空间类型同构与A户型,但是仍然有所区别,首先,E户型采用了更大的开间,达到4.4米,而进深则达到了10米。更大的开间意味着中部的通高活动区可以有更好的空间体验,楼梯可以放置在通高空间的另一侧,从而让活动区空间更加完整,楼梯下墙然成为了活动区的背景墙,在装修中,这部分将会获得更大的设计灵活性,既可以设计为随着楼梯上升的书柜,也可以作为储藏空间使用。 E户型定位为简约和舒适,两个卧室临窗,较为宽阔的尺寸可以将其中一个改为双床卧室,便于二孩家庭和老人家庭。
F户型

相比之前介绍的户型,F户型有所不同。其设计是典型的“双层独立分户”房型,也就是俗称的“双钥匙”户型。
该户型平面尺寸与A户型接近,然而却是“集约”的极致。虽然每层面积接近,但通过入口的楼梯划分,夹层和入户层可以属于两个完全不同的业主。该产品的受众类型,是刚刚脱离“无产”的年轻人,从平面图可以看出,虽然上下两层分属于两个不同的业主,但是“麻雀虽小,五脏俱全”,两层都具有卧室,起居室,卫生间,厨房,储藏等功能,两层通过严格的对位,具有结构的合理性和空间的均好性。 另外,考虑到二层需要一个楼梯达到,因此附送的“公共走廊上空储藏”,将会是对二层的补偿。也就是说,一层送楼梯下空间,二层送公共走道上的空间 ,各有卖点。
G户型

与F户型一样,G户型是“双钥匙”户型。同时在所有户型中,G户型的空间最为紧凑,对使用者属性的划分也最为灵活。
与F户型不同的是,G户型在主入口进口一米左右深处设置分户门,将竖向空间分隔成的两个空间完全独立,使用者可以灵活居住使用。G户型追求上下两层空间的完整性,即:两层既可以是一户人家,也可以出租给另一户使用,彼此之间可联系也可完全独立。从平面图可以看出,入户层平面和夹层平面都有完整的起居,卧室,卫生间,餐厨,储藏空间。
G户型将生活区放置在了靠近窗的一侧,并且创新的采用了“榻榻米”这一节省家具高度,增加空间体验的特色设计,具有阳光的餐厨空间,也更适合日常接待客人的需求。
结语
带夹层的LOFT户型为不同需求的居住者提供了量身定做解决方案,其较大的灵活性在房地产市场中既可以作为主力产品出售,又可以作为调节产品满足设计指标要求。至少在笔者所描述的几套户型中,就可以找到满足各个年龄段,各个购买力群体要求的产品。值得一提的是,这些户型内部变化丰富,外部却可以统一在比较规整的柱网中。因此,这些产品只要通过合理的设计,就可以在同一楼盘中自由组合。
另外,一些适合公寓的新技术也会为公寓空间加分,如最早在日本流行的整体卫浴系统,可将卫浴空间做到高度集成不渗漏;TD-LOFT超薄夹层技术可以加大头部空间,提升使用感受;成品艺术楼梯则可以提高装修品味。LOFT夹层的进步,不仅是产品空间的优化,也是建筑技术的进步。