红砖墙、空中走廊、螺旋爬梯...养猫的家这样装修太赞了
曲美家居
2020-06-03
猫是一种神奇的生物,它们让人类心甘情愿“为奴”,称它们为“主子”。但想做一名合格铲屎官,可要花费一番心思~
随地可见的猫毛如何处理?怎样消灭猫粑粑臭臭的味道?怎样给猫咪一个舒适有趣的家……

养猫没有那么容易,每只猫有它的脾气快乐养猫,在曲美(北京)北五环旗舰店,就有一个「喵时光」主题样板间,为猫奴们提供了一个装修参考。


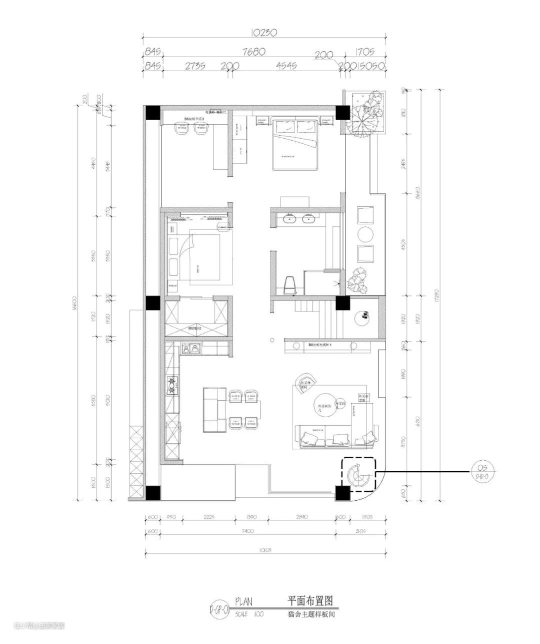
喵时光主题馆空间平面图
在家也能打造喵咪游乐场
「喵时光」在坊间有个更为亲切的名字——“猫舍”,客厅一角专门设置供猫咪爬行的旋转楼梯,墙壁几幅憨态可掬的猫咪挂画,电视柜旁的木质猫窝,无不宣示着这是一个养猫人的家。

为了让猫咪可以更无拘无束地发挥自己的天性,在客厅墙面上,为它特别留出了一份没有被人类的审美约束过的地方——一块原始的红砖墙,在这里它可以随意的抓挠,就像在自然环境里一样。


收拾猫咪四处遗落的毛发很简单,除了平时勤于梳理猫毛,再备一个小型吸尘器即可轻松解决;若杜绝猫粑粑味儿,可以试试将猫砂放在阳台等通风处,我们还可以为它打造一个相对隐蔽的独立空间,并及时清理。
在「喵时光」的客厅与卫生间之间,就为猫咪打造了专属空间,一个真正的“猫舍”。

这里猫窝、猫粮、猫盘、猫爬架、猫砂盆、猫粮收纳柜一应俱全,甚至还有一个蓬松柔软的法兰绒“猫咪”小秋千。
面对此景,眼前似乎立刻浮现出猫咪花式玩耍、玩累后打呼酣睡的样子,那画面让人忍俊不禁,又忍不住贪看。
除了这些常规的操作外,为了满足猫咪喜欢探索垂直空间的习惯,在客厅到猫窝之间还特别设计了一个空中走廊,刚好是猫咪可以舒适躺下的宽度。如此一来,猫咪便多了一个可以“太空漫步”、居高临下“俯视众生”的走道。

一抬头,你可能就会瞥到它自在的步态,令整个空间充满放松的舒适感,你在快节奏里绷紧的神经也瞬间松弛下来。
在足够宽敞的客厅里,你可以“瘫”在宽大舒适的沙发上,尽情欣赏“主子”款款迈动优雅的“猫步”,或者拿线团和它一起玩耍,时间似乎变得缓慢。
暖心设计,治愈系风格
猫咪是一种很治愈的生物,而「喵时光」的整体空间风格也采用了日系“治愈风”。
它纯粹简单,却处处熨帖到位,那份美感润物无声;它不事奢华,却洋溢别样温情,任外面的世界狂风暴雨,回到家便是晴天!
整体以麻灰、原木色与白为主色,色彩自然宁静,氛围温暖而治愈。

猫走廊、天花板、墙壁踢脚线、床头定制背景墙、卫生间定制收纳柜等处大面积的木质元素运用,带来大自然的温暖与质朴气息。
搭配同色系的电视柜、衣柜、床头柜,以及餐桌椅和茶几,与麻灰色组合,以橙红色靠包、孔雀蓝床品提升色彩饱和度,色彩协调而富于微妙的层次感,凸显“治愈风”的主题。


通透是「喵时光」的另一大特色。开放式厨房设计,半封闭的电视墙结构,卫生间“腰部”的玻璃窗,无不放大了空间的格局。让空间更加通透阔朗,流畅的动线设计,充满流动的自在与舒适。




在主卧的外侧阳台,还特别开辟了一个休闲角落。两把藤编椅,一个同款茶几,两盆龟背竹点缀,组成一个小小布景。
你可以于此尽情放空,冬日里撸着猫咪晒太阳,夜晚吹吹凉风、欣赏月光,时光莫不静好!

日本知名动漫制作人川村元气在《如果世界上不再有猫》里说:
“不是人类饲养了猫,只是猫愿意陪伴在人类身边而已。”
一开始以为猫咪离不开主人,后来才发现是我们离不开猫咪。我们给予猫咪食物与暖床,猫咪却在治愈我们的心灵,给予陪伴和安慰。
养猫是一种生活方式,因为它们的存在,让我们多了一份牵挂和责任感。
不管这段陪伴是长是短,都永远是温暖心头的「喵时光」。

更多家装设计案例,欢迎光临曲美家居全国门店,找到你的灵感!