300m²现代别墅 | 演绎至美大宅
潍坊元筑装修设计
2020-09-06

实用 / 美学 / 品质 / 设计
WeiFang . 2020 . DESIGN

ORIGINAL DESIGN
元筑原创设计案例
Area:300m²
Style:现代轻复古
House Type:六室四厅
Chief Designer:刘志诚
Service Pattern:全案设计
Project Address:山东潍坊
Completion:2020
Design Agency:潍坊元筑设计
About Owner
此案空间以暖色调为主,通过黄铜、木饰面、大理石等材质,搭配出既具自然风味又存现代精致的设计,平衡生活的美。关乎生活的趣味,以及对家、对生活最本真的热爱。
我们元筑设计师十分擅长将当下的流行趋势、丰富的纹理、质感的中性色调进行融合,这座300㎡的城市别墅,在设计师的巧妙布局下,将实用性美观性都得到结合。
Original Structure

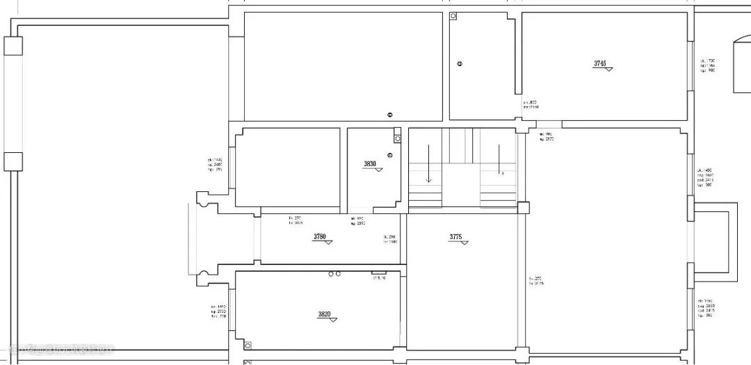
一楼原始结构图

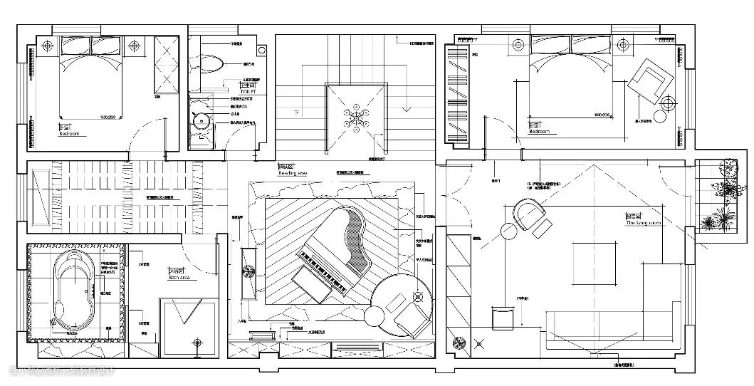
一楼平面布置图

二楼原始结构图

二楼平面布置图

别墅园林布置图
01
Vestibule

入门处储存与展示兼备
力求简洁实用
切实考量生活的需求
同时兼顾美学的呈现
让设计自如有序的铺展开来

02
Living Room

来自于这个家的人、物、空间与自然
衍生为功能、材质、色彩、美感
应用于家居空间
结合现代审美和舒适性
演绎另一种生活状态

设计贴近现代生活
空间贴近自然
在材质和用色上形成相辅相成的互补关系
大气朗阔
散发出平稳又均衡的内涵气质
让设计蜕变为生活艺术

平衡对空间尺度的思考
客厅充斥着简而不俗的现代感风情
设计师将个性和状态拿捏得刚刚好
保持着恰到好处的氛围
02
Biningroom

餐厅表现舒适自在
需要先满足居住者的具体需求
自然动线的引导及收纳功能的规划

公共开放式设计
开敞联合分区明确
为多彩的生活有爱的互动创造条件
03
Diningroom

生活习惯和活动轨迹
在设计中体现空间的价值
得到充分发挥
秉承着简洁、稳静的特色
主卧的整体氛围平稳、安定
04
Living Room

设计的意义
是兼顾功能与审美
居住功能的延展与优化也在这里体现
05
LeisureArea

空间功能设计由生活而来
阅读区、钢琴区、亲子空间
融入居住者的日常兴趣与习惯
让他们对这个家拥有更深的归属感
06
Bedroom

主卧空间被体验
联结和美感也保持同步
删繁就简、舍去不必要的颜色与图形
有序不紊乱地传达
07
Bedroom

光线自由传递在空间环境中
随着光线位移一点点地
勾勒静谧的睡眠环境与精致的格调
08
TOILET

卫生间以黑色马桶和浅棕色搭配
时尚质感的大气空间
洗手台精致与时尚
让整个空间更有艺术感

卫生间配色非常
欧美杂志风的既视感
所有材质、色彩都来自空间的延续
设计更完整,自带高级格调
个性却不失品味

家,是一种生活态度的表达
结合屋主的生活习惯和实际需求
所做的细节设计
为屋主创造兼具个性化和实用化
创造新的、更优质的生活体验

设计师:刘志诚
用设计开一道治愈处方,通过空间的营造,让时光慢下来,让情绪放松下来,让生活在这个空间的每个人,都知道自己很重要,让我们在家自在且随性的补充能量。