知晓这五点保障未来几十年的居住舒适
设计师方圆
2020-09-10
从设计的角度我们装修新房不应该只考虑眼前,一定要长远考虑到!
一.前期结构改造
并不是所有的户型都是多面采光、坐北朝南、南北通透,还是有很多户型采光通风不是很好,动线也不合理,房屋面宽不合理,厨房区域小,生活阳台区域又偏大,所以要进行结构改造。比如旧房进行翻新改造,精装房局部改造等。
改造时可以考虑承重墙不动,能打的墙全部打掉,做好采光通风,房屋面宽适度。首先以100平方米以内的两居室为例:起居室的面宽最低在3.8-4米,厅要大于20平方米;主卧要大于12平方米,面宽在3米左右;客卧要大于10平方米,面宽也在3米左右;厨房要大于3平方米;设置一个2平方米左右的储藏间非常有必要。
另外,110平方米以上的三居室的起居室一般面宽要大于4米,面积要大于24平方米。一般来说,客厅面宽与进深比例在3.9∶4.2就比较舒服,三居室可设双卫。
二.水电施工,这些注意!
水电改造是家装中十分重要的一个隐蔽工程,虽然施工的工期不长,但是考虑到以后我们生活的个性化便利和舒适度,就很有必要做好!
比如越来越多的家庭电器需要足够的电源设备提供,就需要足够的插口,全屋的插座应尽量处于同一水平位置。还要事先想好水电线路,想好与水有关的设备,比如热水器,饮水机,洗衣机处用水,空调,马桶,洗漱台的位置等诸多细节。
1.水管有两种布管方式,水管走天和水管走地,它们的优缺点:

(做了一个表,方便大家查看保存)
水管走天优点:
①方便日后检查和维修。
②如果出现漏水问题不会漏到楼下,避免影响令居,引起纠纷。
水管走天缺点:
①需要多浪费大约三分之一的水管,费用也相应更多。
②为了遮挡这些水管,也需要做一定吊顶处理,同样需要增加部分费用。
③如果水管接头爆了,家里的墙纸、家具很可能都要泡汤。
④PPR管子理论寿命是在地下50年,但是在空气中最多10年。
⑤管子暴露在空气中,不管怎样肯定没有在地上固定得好,而且水压稍微大点,整个管路都会哐当响。
水管走地优点:
①对比水管走天,整体费用相对便宜一点。
②水管走地是在地面埋着,管子四周是夯实的土,对于管子固定有好处,也可以保证管子的使用寿命。
水管走地缺点:
①如果水管出现问题不好维修,需要将地板或地砖撬开。
②如果出问题的地方是在地板下方,地板也很可能要泡汤。
③如果漏水,将渗到楼下邻居家里,可能还需要赔偿一定费用。
“水走天、电走地”最大的优点是便于今后的维修,所以:
a.预算充足的情况下,建议考虑采用“水走天、电走地”的方式,或者是水电全部走顶的方式。
b.北方因为地面有地暖,更适合采用“水走天、电走地”的方式。
c.不论“上天”还是“入地”,都有各自的优缺点,做好规划,减少接头,这才是避免管线处问题的最佳方法。
2.水电没有做预放线,结果后面还要改水电,多花了冤枉钱不说,还一肚子气。
要根据需求与实际情况预估水电改造费用,预设水电改造线路,让施工人性、透明。
3.开槽不规范,事后准后悔。记住先弹线再开槽;并且最好用开槽器,开槽深度保持在30~35mm。
4.水电走线需要弄清横平竖直和点到点区别。
a.横平竖直优点就是整洁美观,后期施工方便,但缺点及时成本开销大。
b.点到点布线优点就是成本开销小,缺点就是不好看,因为布线杂乱无章,后续施工也需要小心别破坏线路。
个人认为预算不够的可以选择点到点,日后施工小心就行;预算足够的当然就可以追求高品质的横平竖直。

5.水电点位没有布全,日后加装真的很麻烦!!!热水、冷水、排水、网线接口、电视电话接口等等,都必须一一核对。
全房屋插座布置:
a.玄关鞋柜旁边没加一个插座,烘鞋器啥的以后想用都麻烦。
b.沙发旁边没多装几个插座,台灯、手机都需要充电的时候真的很绝望……空调处预留一个插座(三孔带开关),沙发两侧各预留一个插座,客厅空间可以预留1-2个。
c.电视柜背后插座没多做几个,当机顶盒、电视、投影仪、幕布插座、游戏机,这些同时使用时就emm……至少需要安装3个。
d.卧室要安装双控开关,床头两边都要安装插座。电视2个,空调一个(三孔带开关),电脑一个(三孔带开关带网线),预留1-2个。
e.厨房没多置备几个插座,家用电器同时使用时就不好办了。厨房吊灯双回路控制一个,玄关灯双控一个,装饰效果灯开关一个,水槽下一个(可装小厨宝等),水台边一个,操作台上2-3个(用于小电器/带开关),微波炉一个(三孔开关),预留1-2个。
f.餐厅电冰箱一个(三孔带开关),餐桌边1-2个,预留1-2个。
g.书房电脑一个(三孔带开关),空调一个(三孔带开关),书桌边一个(台灯),预留1-2个。
h.卫生间洗衣机一个(三孔带开关),吹风机一个(三孔带开关),电热水器一个(三孔带开关),预留1-2个。
i.阳台洗衣机或者一个备用插座。

三.防水:
超重要的一个工程,没有做好以后就偷着哭吧!不只是费钱、还费神!
卫生间、厨房、阳台防水都要做。除了卫生间防水必须做两层,其余都一层;卫生间防水高度至少180cm(淋浴处花洒高度180cm,往下的部分所以都要做防水),完事儿后闭水试验;回填记得要用碳渣。卫生间外侧需要防水外翻;包管也要做静音处理。

卫生间的防水特别特别重要,在这里再多说点:
1.卫生间地面先做找平。如果要更换卫生间的地砖,在将原有地砖凿去之后,一定要先用水泥砂浆将地面找平,然后再做防水处理。这样可以避免防水涂料因薄厚不均而造成渗漏。
2.接缝处要涂刷到位。卫生间墙地面之间的接缝以及上下水管道与地面的接缝处,是很容易出现问题的地方。在施工中,一定要督促工人处理好这些边边角角的地方,所有防水涂料一定要涂抹“到位”。
3.墙面处理也很重要。在一般的卫生间防水处理中,墙面上也要做大约180厘米高的防水涂料,以防积水洇透墙面。

4.防水实验一定要做。在卫生间施工完毕后,将卫生间的所有下水堵住,并在门口砌一道25厘米高的“坎”,然后在卫生间中灌入20厘米高的水。在48小时后,再检查四周墙面和地面有无渗漏现象。这种48小时的防水实验,是保证卫生间防水工程质量的关键。

5.保持下水通畅。卫生间中所有的下水管道,包括地漏、卫生洁具的下水管等,都要保持通畅。这样才能从根本上避免“水淹七军”惨剧的发生。
四.泥木:
1.吊顶用更环保耐用的轻钢龙骨,防火且不容易变形;底部用石膏板,增加吊顶的牢固性。
a.轻钢龙骨吊顶,主挂件间距600—800mm,采用6—8mm吊杆,主龙骨间距小于等于1000mm,主挂件距主龙骨顶端小于等于300mm,次龙骨间距小于等于400mm,加强次龙骨间距小于等于1200mm,封两封墙需石膏板饰面。
b.木龙骨吊顶,沿顶龙骨固定点在小于等于400mm。每1000mm以内用膨胀栓做加固处理,沿墙龙骨固定点在小于等于400mm,龙骨方格小于等于400mmX400mm,木龙骨小于30mmX40mm,造型可采用九厘板或木芯板制。在封板前对木龙骨做防火处理,防火涂料必须在地面涂好。
c.所有龙骨都应固定牢固,做调平处理时按1/200mm起拱,有吊灯的位置需加设吊杆和龙骨框架,吊顶平整,误差2000mm以内小于等于2mm,3000mm以内小于等于3mm,5000mm以内小于等于5mm,水平误差同上。
2.吊顶转角“L”形,有效防止吊顶开裂。
3.层高过于矮的房屋不建议做复杂的吊顶,容易增加压抑感!!!

4.瓷砖铺贴,墙砖要湿贴,地砖要干贴以及涂刷瓷砖胶。如果空鼓,会出现砖体脱落、开裂等问题!判断是否空鼓用空鼓锤,击打听声音判断。


贴砖:
a.水泥砂浆的比例为1:1.25-1:1.3之间。
b.整体墙面空鼓率不超过3%。
c.所有阴阳角要用45度角切割碰角铺贴。
d.厨房卫生间阳台这些地方,铺贴坡度为2%左右。
五.施工工艺:
1.地面水泥砂浆找平施工工艺:基层清理→弹线→贴灰饼→刷素水泥浆→水泥砂浆找平→养护

2.地面石材铺贴施工工艺:地面清理→试拼→水泥浆结合层→铺贴石材 →养护→晶面处理

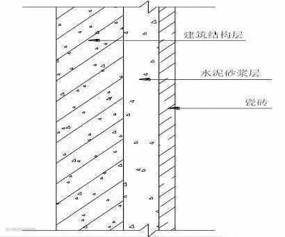
3.地面釉面瓷砖铺贴施工工艺:地面清理→瓷砖浸水湿润→水泥砂浆结合层→安装标准块→铺贴地面砖→勾缝→清洁→养护

4.地毯铺设施工工艺:基层处理→地毯剪裁→ 钉倒刺板挂毯条→铺设防潮垫→铺设地毯→细部处理及清理

5.实木地板铺设施工工艺:安装地龙骨→撒防蛀粉→安装防潮多层板→ 铺贴防潮膜→铺实木地板
6.沐浴房地面石材施工工艺:地面清理→水泥浆结合层→铺贴石材 →养护→晶面处理

7.轻钢龙骨石膏板隔墙施工工艺:隔墙放线定位→安装天地龙骨→安装竖向龙骨→安装横向龙骨→龙骨内敷设隐藏管线→门洞口、窗台口加固→封一面石膏板→填充隔音棉→进行隐蔽验收→再封加一面石膏板

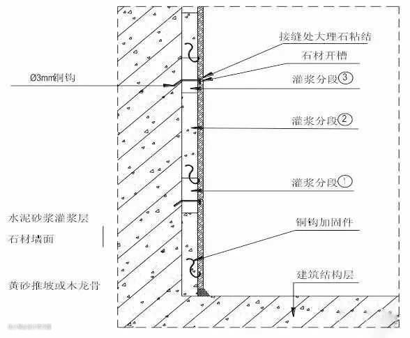
8.石材灌浆施工工艺:石材排板放线→预排石材→板材固定→灌桨→嵌缝

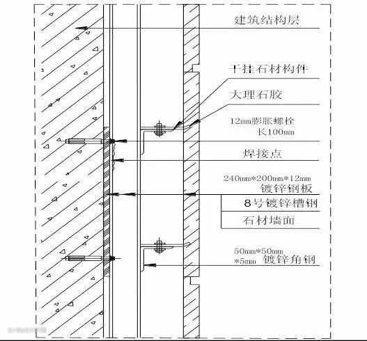
9.墙面石材干挂施工工艺:石材排板放线→安装钢骨架→石材安装→打胶收口

10.墙面瓷砖铺贴施工工艺:处理基层→弹线→瓷砖浸水湿润→摊铺水泥砂浆→安装标准块→铺贴地面砖→勾缝→清洁→养护

11.轻钢龙骨石膏板吊顶施工工艺:弹出天花完成面线→吊杆安装→安装主龙骨→安装沿边龙骨→安装次龙骨→龙骨调平→进行隐蔽验收→安装石膏板

12.金属板吊顶施工工艺:弹线→安装沿边龙骨→安装吊挂杆件→安装次龙骨→安装罩面板→安装压条

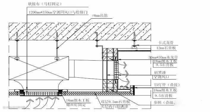
13.空调风口安装工艺:空调回风口、出风口、换气扇等处要求设置木边框,便于风口及设施安装以及防止冷凝水。

14.漆施工工艺:铲除原始涂料→界面剂(墙固)→石膏修复→腻子处理2遍→打磨墙面→底漆处理→免漆处理2遍。