中央空调的主要构件设计问题解析
关雎DESIGN
2020-10-21

本文内容,我们主要解读以下2方面的内容:
1、中央空调主要构件设计问题解析!
2、中央空调安装流程大揭秘!
01.中央空调主要构件设计问题解析
1.主要构件有:室外机,室内机,三口(出风口、回风口、检修口)和管道。
室外机最主要的就是注意尺寸问题。要结合业主的房型给业主提供合理的配置建议。

常见外机尺寸↑
厚度:320-450㎜,大部分区间在400㎜以内。
宽度:一拖六以内大都900-960㎜宽,一拖七及以上等约1100㎜
高度:800-1000㎜
常见一托二至一拖五,1380-1650㎜常见一拖四至一拖六及以上掌握大致尺寸问题之后,我们可以给业主提供合理的建议。
有多个位置可放时,室外机应放在管道长度相对较短,施工难度较低,通风良好的地方。如碰到改需的客户,规划外机位置时我们更需要详细的产品尺寸做后盾。

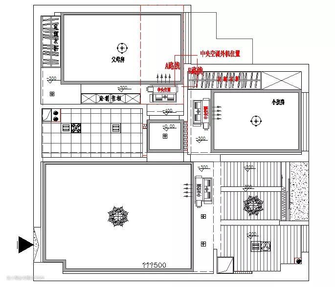
如上图中我们需要在右下角留置一个中央空调外机位,知道外机尺寸后,我们还会纠结留多大的问题吗?
2、室内机的注意事项。室内机设计的知识面很多,下面我会从七个知识点进行解析:A:吊顶的预留空间是否足够室内机藏于吊顶,最影响的莫过于吊顶高度。在我们常用设计中,考虑到机子厚度和造型影响,我们一般普遍吊顶高度300㎜高,吊顶厚度600宽。

中央空调吊顶高度↑由于现在的机型越做越薄,现场我们可以根据内机厚度稍微调整吊顶高度。


有水泵的中央空调吊顶高度会薄些↑
附:室内机常规尺寸
厚度:180-220㎜
宽度:450㎜左右。长度:客厅1000-1300㎜左右,卧室大部分在700㎜宽只有掌握这些尺寸我们吊顶设计的时候才不会出错。B:室内机与家具的关系:空调方安装室内机的时候,要注意平面布局上有没有柜子,如有,则要错开(此处常容易造成返工)。
另外还由比较常见的中央空调设计在衣柜上。这种一般是侧送侧回,虽然回风没有问题,但冷凝水的问题还是不容小觑。如若可能,尽可能不要这样设计。另外如果要这样设计,出风口回风口间隔至少保证一米,检修口通常安装在衣柜里。

柜子上方中央空调图示↑

柜子上方中央空调内部结构↑
C:室内机与吊顶的关系:
1、吊顶侧面有贴石膏线的,在施工时我们要告诉空调方预留石膏线位置(内机不要过高),不然容易产生下面这种错误。

石膏线被迫割断,影响美观↑
2、如果内机出风口位置既有石膏线造型,又有实木线条或者金属造型,那么我们要重点考虑吊顶高度够不够。

侧面有造型时要把造型高度考虑进去↑
3、客餐厅的两个内机通常设计在同一区域,如果客餐厅中间有梁阻断,我们要根据梁的高度另行设计。

如上图所示,客餐厅中间有梁,且高度有270mm,很明显不适合上图中的规划。如果梁的高度在150mm以内,那么我们把内机吊下一点,不会影响出风的高度即可,吊顶也不会很高。
D:室内机与灯光槽的问题。
有中央空调的灯光槽设计可谓是又爱又恨。很多装修公司已经明令禁止中央空调处设计灯光槽,这都是因为血淋淋的赔偿事件。如果实在想要灯槽的效果,有以下几种方案:方案1:做三面灯光槽,中央空调那一面不做,其实也好看的。

三面灯光槽↑
方案2:增加灯槽与出风口的距离(一般是加大吊顶高度,使出风口高于灯槽一定程度,此方法只能稍微改善)

加大高度差示意↑

缺点:吊顶高,空调效果一样会受影响↑
方案3:把做了中央空调的那一截单独加出来齐平灯带宽度。

此方法常用来救急,改造成本太大的时候加出来↑缺点:整体性差,美观度下降。

出风口加出侧面图↑
方案4:在中央空调出风口的灯带上加一块透明材质,既不影响通风又不影响灯光效果。

透明亚力克倾斜角度,使风容易出去↑
方案5:做复杂跌级吊顶,把灯槽设计在出风口之上。

灯带在出风口上方,营造效果↑
方案6:以上所有方法除了方案1和方案5,基本上都不怎么尽如人意。
目前市面上大金有一款灯槽专用机。其实也就是送风方式不一样,出风口和灯光带不在一个平面了,自然影响不到。(下送侧回)
灯槽机热风模拟↑

‘灯槽机’与常规机的区别↑3、三口(出风口,回风口,检修口)的注意事项。
A、风口尺寸问题:出风口高度一般在140-160㎜之间(这点很重要,很多造型立面设计需要计算材质尺寸长度可定制,弧形异形可做)。
回风口尺寸为260㎜,检修口一般是350*350㎜,或者400*400㎜左右。(可定制),通常回风口和检修口为了美观会做成同一条线上同等宽度。出风口的材质以优质的ABS和木质材料为宜,尽量避免铝合金材质,容易结露。B、家装中央空调常见气流组织形式有以下几种。

这里的“送”是指出风口,(出风口又叫送风口),“回”是指回风口。
上文讲到大金的灯槽机是下送侧回的形式,加上这种,家装常用的气流组织形式,就有了四种方式。其中侧送下回占据了绝大部分。
侧送下回中回风口和检修口有以下几种组合方式。

上短下长,回风口检修口分开设计↑

上下等长,回风口检修口一体设计↑

上长下短,出风口整体加长↑
C、加长出风口怎么制作。
加长出风口在视觉上比较大气美观,整体性强,在讲解设计的时候我们要提醒业主注意跟商家确认是否加长风口。在效果图里我们也要做上去给业主更直观的感受。

如上图中,假风口位置也切割了,过多的裸露位置容易积累灰尘。

加长出风口正确做法↑
PS:采用此方法时,在开工前要跟预算师确认需要增加的费用,不然后期自己要掏钱。

加长出风口完成状态↑
另外在黑白灰等风格中,我们还可以将加长部分出风口位置喷成黑色或者深灰色的漆,会更加有质感。

加长出风口刷黑色效果↑
4、管道配件及安装的注意事项。管道配件等这块辅材我这里不做细讲,因为这里最重要的是安装。俗话说的好,中央空调三分产品七分安装。对于中央空调的安装,一定要慎重选择专业的供应商。
我们在设计时需要重点注意的是管道的走向,实在不能避免的,开孔尽量往梁中部偏下的位置(这里钢筋最少),此外开孔大小不建议大于80mm,大于80mm需要上报物业批准。

另外,很多新手设计师室内机规划了位置,但对管道的走向并没有做到心中有数,常常会导致现场需要加吊顶(要把管道隐藏)的尴尬事,碰上总标榜一口价的业主,这个钱往往也是设计师赔。

如上图所示如果小孩房衣柜是定制到顶的柜子的话,建议管道从父母房走(A路线),那么图中红色线框内必须吊部分顶把管道藏起。
总之,在做隐蔽工程时,设计师要一万个心细,不然一不小心就掉坑里去了中央空调安装流程大揭秘!
最后,便于让你更好的理解中央空调的构造,我给你准备了几张动图,咱们接下来直接看图,大致了解内机的安装流程即可。
动图演示一↑
步骤一:内机定位安装
步骤二:冷媒管加保温棉
步骤三:冷媒管吊装
动图演示二↑
步骤四:冷媒管连接内机
步骤五:安装内外机电源线和通讯线
步骤六:冷媒管安装
步骤七:冷媒管焊接
动图演示三↑
步骤八:安装排水管
步骤九:安装冷凝水管
动图演示四↑
步骤十:安装进出风口
步骤十一:安装外机
动图演示五↑步骤十二:检测管道气密性
步骤十三:加入冷媒
步骤十四:铺设地暖(如有)
不怕闪眼的看下合集吧,哈哈
今天我们讲了中央空调各构件在设计中需要注意的问题,最后用一张导图来总结一下:


『关雎DESIGN专注分享装修设计、材料、施工、实景干货,让你少掉坑』
『喜欢的朋友记得点赞、收藏、+关注哦』