35㎡单身公寓设计,美观大气啊!
云南俊雅装饰
2020-10-22

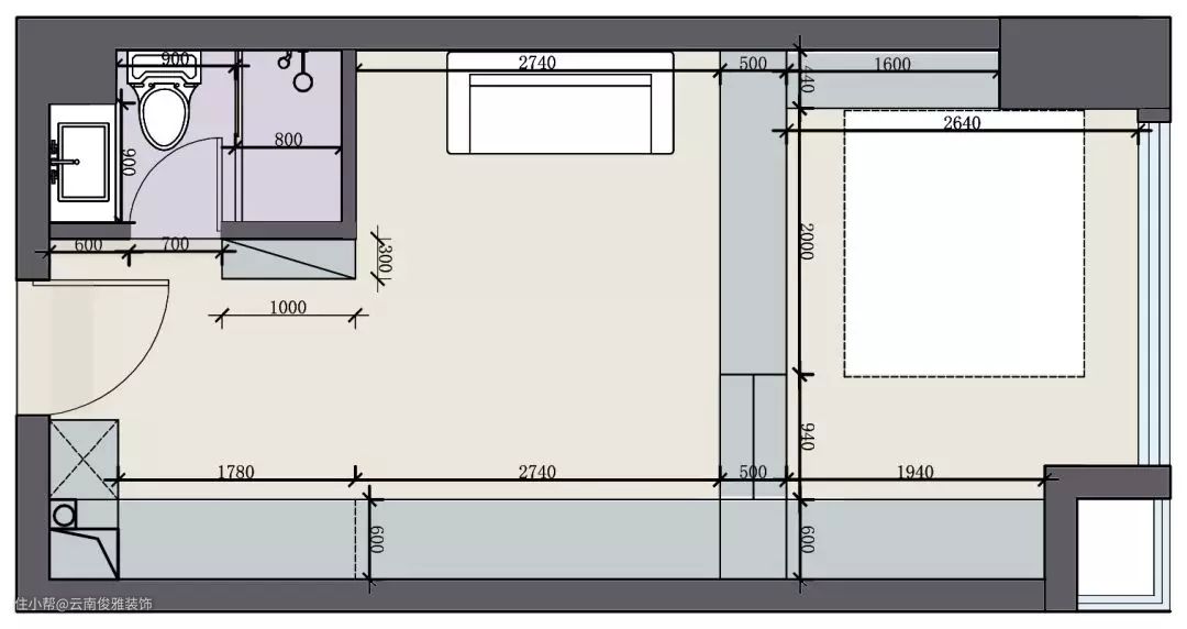
这套小户型只有35㎡,好在户型方方正正,设计师也设计的特别的好,该有的都有整体看起来也美观大气。
玄 关


入户之后左手边是卫生间和鞋柜,右边是开放式的厨房,简洁舒爽
客 厅




客厅的风格很是清新,墙面虽然掺杂了多种颜色,但是浅色打底反而让空间凸显了一种清爽之感




餐厅+吧台



卧 室








厨 房



卫生间


卫生间的面积仅有3㎡,但是也做了干湿分离,干区设计的非常好,刚好放下了洗衣机
云南俊雅装饰
2020-10-22

这套小户型只有35㎡,好在户型方方正正,设计师也设计的特别的好,该有的都有整体看起来也美观大气。
玄 关


入户之后左手边是卫生间和鞋柜,右边是开放式的厨房,简洁舒爽
客 厅




客厅的风格很是清新,墙面虽然掺杂了多种颜色,但是浅色打底反而让空间凸显了一种清爽之感




餐厅+吧台



卧 室








厨 房



卫生间


卫生间的面积仅有3㎡,但是也做了干湿分离,干区设计的非常好,刚好放下了洗衣机