110㎡现代轻奢风格,外表简洁奢华,内在大气稳重!
星彩焕新装饰
2020-11-02
导语:轻奢风格除了要外表简洁奢华,内在也是相当重要的,每一位业主都希望能打造一片能让自己身心完全放松的家具环境。一位名设计师曾经说过,轻奢装修风格就像冬天里的一张羊绒被,能让你得到最温暖的呵护。

原始户型图 三居

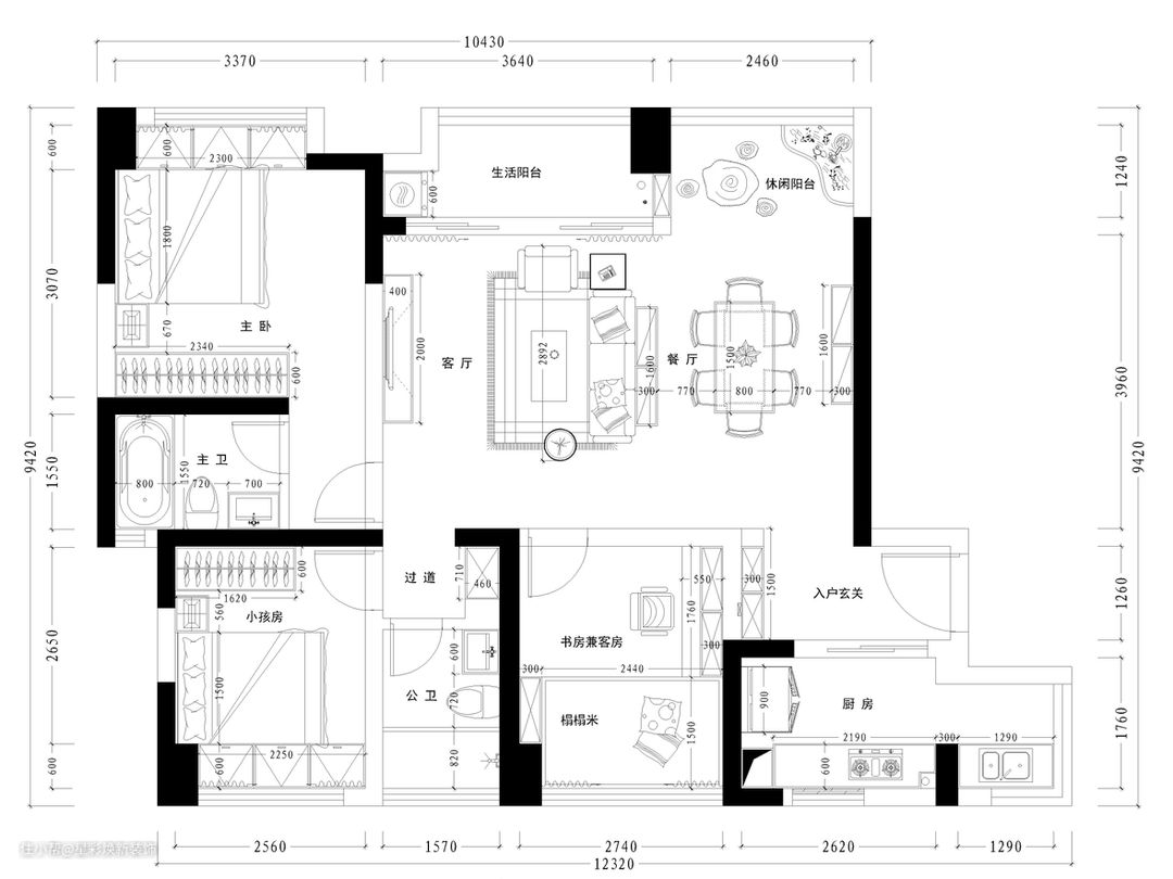
平面布局图 三居
每一套精装房都像一个胚体,需要我们去定义,与其说是设计一个家,不如说是呈现一种“生活态度”。
黄姐家的精装房改造,是去年秋天接下的一个改造设计。初见黄姐,可爱可亲,先生绅士大度,女儿开朗活泼,还有正在蹒跚学步的小弟弟。了解完一家的设计需求后,便开始着手于房子的测量工作了。
到工地,最先引人注目的便是入户的地砖拼花,整体的装修风格平淡无奇,电视墙和主卧背景墙都用了较老气的硬包,然而却没有足够的收纳空间。如此种种让黄姐一家不甚满意,而设计的魅力正在于将原本不美的空间打造得令人心动。
黄姐一家对未来新家的期望,就跟他们给人的印象一般,要有女主人的清新温柔,男主人的稳重守护,与小朋友们的活泼可爱。而风格之外,功能也是改造中的一个要点。
这次的改造,首要的便是对原户型中的不足之处加以改造,在不改动硬装的前提下,设计师拆掉电视墙和床背景的硬包,让软装搭配拥有更大的发挥空间。
有了孩子后,总是会突然发现家里空间不够用了,于是在被拆掉的客厅电视墙基础上,增加收纳空间,用以展示、储存小朋友的玩具等杂物。
家具都使用倒圆角的,增加空间的安全性,让家里的小朋友能够健康快乐的成长。

来自西班牙的NOMO挂钟将单调的墙面变得灵动起来,柔和的线性感使空间更轻盈、活泼。

沙发由不同幅度及角度的组合组成,可躺、可坐,人性化的设计满足了人们在家的各种慵懒姿态,使人能够100%的放松。

ARKETIPO的组合式茶几,一高一低的大小组合,轻便、灵活,能满足小朋友的身高需求。

Tideman的单椅体态沉稳得恰到好处,给人十足的安全感,它像守护者屹立在客厅的一隅,使整个客厅空间温馨但稳重,平衡了空间的女性化色彩。

内嵌式的电视墙更加美观,而除此之外,它还是一整面的收纳柜,改造后的空间更干净简洁,也更加实用。

小朋友总是活泼好动的

设计师细心的将家里有棱有角的地方都做了倒圆边处理,让家里每一寸细节都是安全的。

餐厅的墙面用PU线条做了造型,并用蔷薇色做了一个跳色,用较低的成本做出更加美观的效果,是整个餐厅空间的点睛之处。

温柔的杏仁黄带来更加舒缓的视觉感受。

细花白大理石餐桌,搭配上绵软的丝绒餐椅,低调又别致。

海军蓝与砖红色形成鲜明的对比,冷静与热情在同一空间得到最大尺度的释放。

差异化色温丰富了床头空间的层次,不设主吊灯,摒弃压抑感,让卧室氛围更加轻松。

金属材质的台灯,在冷静的色调中脱颖而出,成为点缀的亮点。



WITTMAN的WINGS BED是空间的亮点,像个天使一样守护着睡在上面的小朋友。
可折叠的“耳朵”是小主人的最爱,她还骄傲的向幼儿园的小朋友说,我的床有耳朵哦,还会动呢!

边柜弥补了床头边几缺少的收纳功能,与WINGS BED一起制造出时尚又复古的低调奢华感。


蓝色衣柜与正红色的床形成冲突,大胆活泼的配色,更能刺激小主人的感官发育,
契合房间主人年龄阶段的成长需求。

立体卡通可爱台灯

老人房间一改传统刻板印象,而选用明快清新的豆沙绿色调。

浅灰色床头配以同色系乔纳森床头柜,大气稳重。

整个房间温柔舒适,给老人以最轻松的私人空间。

休闲阳台
阳光透过轻纱变得温柔,一枝绿植从简简单单的透明玻璃花瓶中伸出,
仿佛岁月静好,夫妻二人可在这里一起度过一段安谧平静的时光。