60平米现代简约风格小户型室内装修效果,走心的低调奢华设计!
沈阳极简家全屋定制
2020-12-09
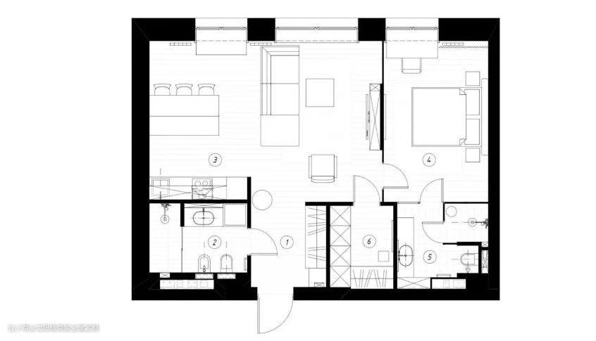
今天要介绍的是60平米现代简约风格小户型室内装修效果图,平面布置图在文章末尾哦~

玄关处看似非常简洁,实际上花了很多巧妙地小心思在里面。

右侧是一个镂空鞋架,内侧安装了灯带,非常的有质感,另一边紧紧连着灰色的落地衣柜。

隐藏于玄关柜中的衣帽间,墙面上贴着一块全身镜,壁橱的灯带非常的实用,同时也十分的美观。

别看这个小卫生间面积不大,但是里面的壁挂式马桶、妇洗盆、洗漱台、淋浴间、暖气片一应俱全。


洗衣机和烘干机也紧凑的被安排在其中。

厨房墙面上的几何花纹、黑色的壁柜,尽显高级感,吧台的设计独到,家里来了朋友在上面喝酒聊天非常有氛围。

岛台后面靠窗的位置,定制了一个带有置物功能的飘窗,从而赋予生活更多的情调。

客厅电视墙居中摆放,既承担了收纳、隔断的作用,又分别明确了主卧与客厅的动线。

电视机墙的两边侧面挖空,安上透明的玻璃,并且放上了画架,艺术气息十分浓厚。

简约的沙发和茶几,搭配灰色地毯非常的温馨。

主卧就在电视机背后,窗前放置了一张桌子,一个小小的办公区域应然而生。

干净利落的线条让房间看起来十分的简洁,墨绿色的背景墙配上灰色的床品营造了舒适的睡眠空间。

主卧里还配置了一个卫生间,真的是非常便利的设计了,干湿分离,日常使用需求都能满足。

地板的花纹精致独特,整个家里层次分明,设计也恰到好处,让人心生爱意。

你喜欢这样的设计吗?大家还想看什么装修风格请在评论区留言哦~
END