囧渣变王炸!8种最奇葩户型逆袭合辑!
西安金地新家整装
2020-12-19
谁不想拿个规规矩矩的王炸户型?
但钱包只容许我去买“奇葩”!
其实手里有奇葩户型并不可怕,
只要利用设计手法「对症下药」!
奇奇怪怪的户型改完后也能惊喜连连!
小新今天就来跟各位屋主爸爸们分享~
「奇葩户型的拯救大法」

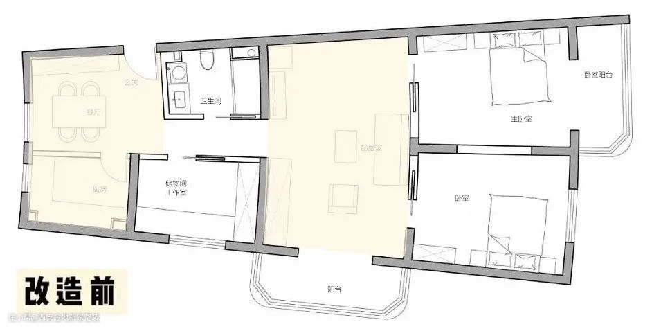
细长扇形:90S老宅
弧形墙面 | 非垂直转角 | 采光差
世纪90年代老房,平面是细长的扇形。因室内有大量的弧形墙和非垂直转角,导致很多空间无法合理利用,采光也不理想。入户即餐厨,因两空间各自独立且有面弧形墙,空间显得特别拥堵。

▲原始户型图

▲平面布置图
打通餐厅、厨房,形成开放式空间,墙面贴瓷砖,连通餐厨的弧形横墙拉直;客厅一分为二,一半纳入主卧,一半改为起居室;连接起居室的次卧改客厅,两空间由玻璃折叠门分隔,方便灵活变化。


拆除餐厅、厨房中间的隔墙后,导致老旧管道裸露。利用拆不掉的柱与梁,在厨房入口做了个圆角拱形门,既能美化空间,也能将管道隐藏。

从走廊进来就是客厅,分给卧室1/2后,剩下的部分被改成了一个能办公、阅读、招待朋友的起居室。而隔壁原本的次卧,则被改成了现在的客厅。

香港遗风:钻石型
客厅鸡肋 | 空间难利用 | 视觉感差
钻石型,据说是跟风香港楼盘的设计,为了在住宅紧密情况下保持采光通风问题,可是客厅沙发-茶几-电视非常不好摆放。

▲原始户型图

▲平面布置图
放弃平行执念,沙发与电视形成钝角关系,保持全屋通透感,利用多功能电视架调整视角,简称:放弃治疗。


电视-沙发非平行布置,每天下班躺沙发一角正好能对到电视,奇葩户型没有想象那么难搞嘛。

最奇葩户型:多边异形
空间尴尬 | 异形空间多 | 家具难摆放
多边异形一居室,卧室与卫生间各有一个凸角,空间不方正,利用率低,斜墙一多,使用起来和看起来都尴尬。

▲原始户型图

▲平面布置图
解决不可改造的怪户型1大法宝:定制家具!定制家具可以随墙而定,无论是多奇异的空间,都能用定制家具来找平。


卧室定制整墙柜子,结合衣柜和书柜,在拐角处增添工作区。大面积白柜门,让又怪又小的空间保持视觉清爽,比方正设计更灵动。


卫浴凸出的尖角,原先是蹲厕,移管道安装浴缸,凸角位置砌高做小平台,变成随手可用的收纳位,甚至以后给小孩洗澡,抱坐在这里都方便。

斜坡户型:不规则几何
空间感差 | 储物空间少 | 形状不规则
这个户型根本无法描述它的不规则形状。像坡跟鞋一样的玄关和客厅,一进门就找不到东西南北,还多出一截暗示你做飘窗的矩形窗户。

▲原始户型图

▲平面布置图
加砌一道电视墙,围合出方正客厅,让客厅空间规整。主卧拐角做定制异形飘窗地台,解决卧室空间难利用且增大储物功能。


玄关柜转角处打斜规格,与客厅窗户平行。增加电视背景墙,“拉直”空间,同时区隔客餐厅。靠窗空间抬高20cm,打造休闲区,增加空间更多功能。

缺角大王:手枪型
过道狭长 | 户型奇葩 | 户型难利用
这个手枪型户型绝对是“缺角大王”,奇葩指数都爆表了,通透性差,动线超级绕。户型让整体空间变得非常难利用,储物空间严重不足。

▲原始户型图

▲平面布置图
为了要个方正的客厅,随墙定制L型卡座沙发,怪异夹角用电视柜进行填补,厨房无采光,开传菜窗引入自然光线,加强采光。

经过狭长玄关,电视夹在墙角,与L型卡座、餐桌形成相对,收纳转移到过道位置,整体提高利用率。一边下厨一边还可以看管在客厅玩耍的孩子。

阳台原本有个突出的户型飘窗,设计利用台面拉平,形成八角空间做储物柜,使异型阳台变得规整,同时增加空间储物性,把户型弱点变成优点。

斜角墙体:三角厨房
厨房异形 | 空间难利用 | 户型奇葩
厨房和衣帽间I型、L型、U型很普遍,但这家三角形空间连小新都大开眼界。厨房与卧室呈直角梯形,各凸出一个三角区,房子怎么住都不舒服。

▲原始户型图

▲平面布置图
利用大型的定制橱柜和衣帽柜弥补户型尖锐的三角形,从空间上让户型平整。

厨房沿着三角两边,定制两排地柜+吊柜,最深处作为烤箱位置,也没有浪费。

卧室用衣帽间填平三角形最难利用的空间,再沿窗定制三角书桌,在光线最佳的区域进行工作学习,也弥补了尴尬空间难利用问题。

糟老房子:怪异蝶形
全屋直角少 | 多边异形客厅 | 无玄关
原始户型是大一室一厅,因为是蝶型,所以客厅和厨房的隔断墙是斜的,而且该墙承重,所以这堵墙造成了布局上很大程度的困扰。

▲原始户型图

▲平面布置图
原始多边形大厅难利用,无玄关,生活没有仪式感。将整体大厅一分为三,收纳区+客厅区+餐厅区,还居然有地方做个小玄关。

沙发与电视保持对立,取消电视柜,留出更多面积做布局。沙发背后的斜墙三角区,摆放小圆桌做餐厅,让整个客厅与餐厅动线洄游。


半圆的阳台,实在不能放洗衣机了,就改用免钉挂钩,在户型墙面收纳清洁工具,洗衣机挪到卫生间去,解决了问题。

斜角户型:奇葩一刀切
空间破碎 | 利用率低 | 斜角空间
50㎡的小空间被分隔的独立而琐碎,由于斜角利用困难,造成很多空间被浪费。入户就是一个斜角空间,墙体棱角过多,斜角的厨房过道狭窄,放不下大冰箱,卫生间被挤压成异形空间。

▲原始户型图

▲平面布置图
厨房移到客厅。玄关与卫生间之间重新砌墙,设置盥洗干区和洗衣区,小阳台分隔淋浴房和如厕区。在房中心围着原来的卫生间风道,设计多功能四面组合柜,开发成衣帽柜+电视墙功能。

直墙与原来的烟道墙围合出一个斜角区,改成杂物间,补充玄关的收纳空间。缓解斜面不规则感,原来玄关柜也被改成顶天立地的双开门柜体。

四面柜刚好在房屋的中间,将原来斜角的户型变成了方正的“回”字结构,很多浪费的空间也都利用上了,四周形成洄游动线,生活起来也更加方便。
/ 改造奇葩户型小tips /
看了这么多户型还是不知道怎么改?
① 用好定制柜,沿墙划出方正区间、化零为整,白色顶天立地柜更隐身。
② 把鸡肋空间留给次要区域,比如衣帽间、工作区、书房,作为收纳使用。
③ 调动家具位置,沙发与电视墙不一定正对视。
④ 在合适的位置增设一堵隔断,让无处安放的家具有所依靠。
⑤ 弧面墙不适合打造定制柜,但免钉挂物是个不错的提高利用率办法。
⑥ 遇到尖角位,抬高做地台打造休憩区,白纱帘遮挡尖角的不适感。
买到又囧又渣的户型屋主们心里不要慌!
只要巧妙设计土渣户型也能变为王炸户型!
如果屋主们手里也有头疼的异形户型~
欢迎后台投稿发给小新
小新安排专业爆改设计师为你变废为宝