92㎡现代轻奢风三居,奶茶色为主色,打造温柔恬淡宜居空间
西安峰光无限装饰
2020-12-19
建筑面积为92平米的三居室,奶茶色弥漫于整个屋子之中,温柔恬淡,舒缓平和。并融入轻奢元素,与奶茶色相呼应,简直把温柔的气质推到了极致,彰显独特的高级感。
图赏

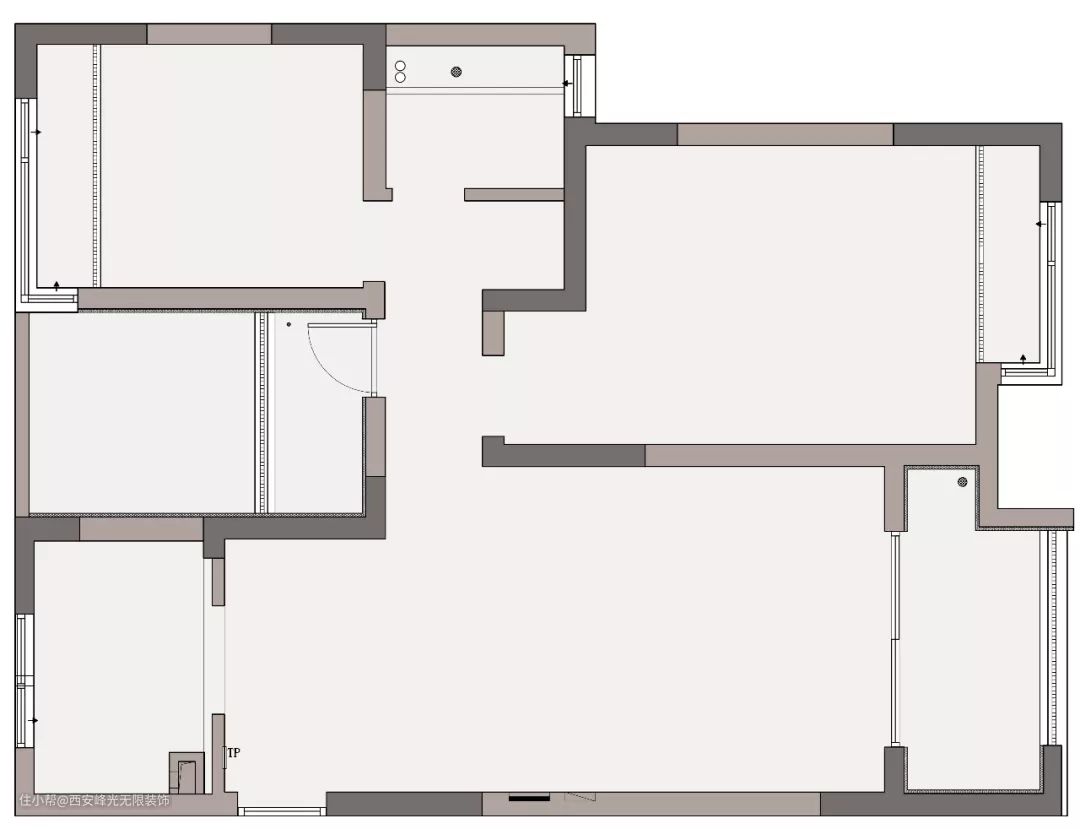
▲原始结构图

▲平面布置图
| 客厅 |

客厅采用无主灯的设计,利用均匀分布的筒灯、射灯和灯带完成客厅的照明,使整个空间看起来更加开阔,极具层次感。

奶茶色的电视背景墙,恬淡之中,有种浅浅的与世无争的小温暖。悬空设计+原木色的电视柜,不仅可以增加更多收纳,在视觉上也为空间营造了轻盈感。

皮质沙发的慵懒随性搭配轻巧别致的暖色单人沙发,结合刚柔并济的茶几,再铺上一块温柔质感的地毯,享受自然轻奢的独特品味。
| 餐厅 |

客餐厅采用一体化设计,让空间利用率达到最优化。电视背景墙紧挨着开放式与封闭式相结合的储物柜,奶茶色与木色的结合,兼具美观与实用。


餐厅选择了一款直径1.1米的圆桌,圆润的外形更显灵活。米白色的餐椅,将美感与舒适融于其中。

餐厅的金古铜色的吊灯,造型美观精致,为空间增加时尚感。
| 厨房 |

U型的厨房,橱柜与整屋相统一的奶茶色,放上一款多门的冰箱,搭配上白色的瓷砖,整体清爽而实用。
| 主卧 |

主卧的床头背景墙贴上了浅灰的花色墙布,搭配上灰色的床品,衣柜采用与整屋统一的奶茶色,整体温馨淡雅,更易入眠。

| 儿童房 |

儿童房选择了淡淡的、暖暖的色调,柔和而温馨。

一款云朵造型的床,给孩子带来软软可爱的视觉以及触觉效果,非常有爱。

衣柜和门同样定制了奶茶色,提升了空间的明度,云朵拉手与床头呼应,展现一种恬静、温婉的高级感。
| 书房 |

书房采用榻榻米+衣柜+书桌一体式定制,实现收纳空间最大化。

书房两侧的定制柜储物力不亚于一个衣帽间,实用性很强。
| 卫生间 |

洗漱区定制了一款椭圆形镜柜,旁边点缀两个圆球壁灯,呈现出更别致的空间视觉效果。