15天软装改造出租房 前后对比图让人惊叹 租房也不将就!
九鼎装饰
2020-12-23
今天分享的案例是两居室出租房改造,只花了15天的时间,老旧过气的出租房变身北欧风格小窝。
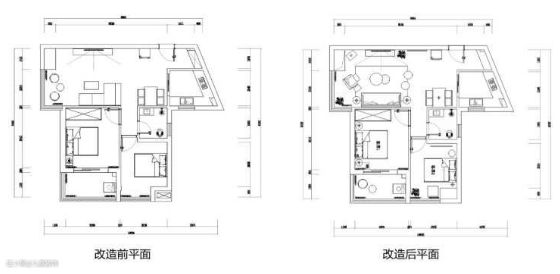
户型图

因为是出租房,所以硬装没有太大的改动,保留原有的格局,仅在平面布置上做调整。
玄关

改造前:非常简易的装修设计,大白墙和鞋柜都有些泛黄,墙面上残余的几个洞影响美观。
改造后:鞋柜和墙面重新粉刷,搭配绿植和相框,平添几分明亮与惬意。安装糖果色衣帽钩,装饰效果和实用性都很不错。
客厅

改造前:昏暗低沉,家具和灯具看着都有点老旧了。
改造后:墙面重新粉刷,暖色调让空间多了一份温馨感。布艺沙发搭配组合式茶几,简约时尚。吊灯和轨道灯结合,营造良好的居家氛围。

改造前:原电视墙设计风格老旧,墙上的贴画看着有点土气。
改造后:电视墙直接刷成浅灰色,安静内敛、简约有质感。木色的电视柜贴近自然,绿植和盆栽的布置让空间更有活力。
餐厅

改造前:大白墙已经开始脱落,家具和灯具也过时了。尤其是吊灯,红黄蓝的色调非常扎眼。
改造后:暖色调的墙面和沙发墙保持一致,隔板架的设计让空间不单调。厚重的餐桌椅换成简约款,空间更显通透。

改造前:大白墙和木地板的搭配,粉色蕾丝边的蚊帐有点辣眼睛。
改造后:浅灰色的背景墙搭配两幅装饰画,丢弃蕾丝边蚊帐,床头做软包处理,搭配颜色相近的床品,效果简约舒适。

改造前:原本的阳台则被杂物堆积,窗帘也过时了。
改造后:清除杂物释放空间,窗帘更换成白色,质感轻柔透光又提高私密性。绿植和休闲桌椅的布置,将阳台一角打造成休闲区。

改造前:原本的儿童房大白墙搭配家具,简单了事。
改造后:浅蓝色的背景墙用装饰画点缀,清新有活力。床头的软包设计提高舒适性,软装搭配兼顾了沉稳和活泼,让儿童房不显沉闷。
结语
出租房这样改造,你觉得如何呢?在硬装不改的前提下,稍微调整布局,改变软装搭配,空间就焕然一新了。