350m²现代设计,豪宅下的一隅静宁!
佳园装饰全案体验馆
2020-12-24

户型:别墅豪宅风格:现代简约面积:350㎡装修方式:半包装修工期:180天位置:千年美丽造价:45万元
方案说明
住宅设计的本质在于回归到生活本身,“生活”是线性流逝的、鲜活动人的、充满变量的存在,天然带着海德格尔笔下的“常青”之色。如何更好地回归生活,与设计师对生活的态度、认知与体验息息相关。能让生活立体饱满、合人心意的设计一定离不开细腻的共情、敏锐的观察与对生活的深度思考。
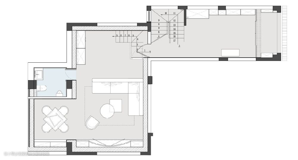
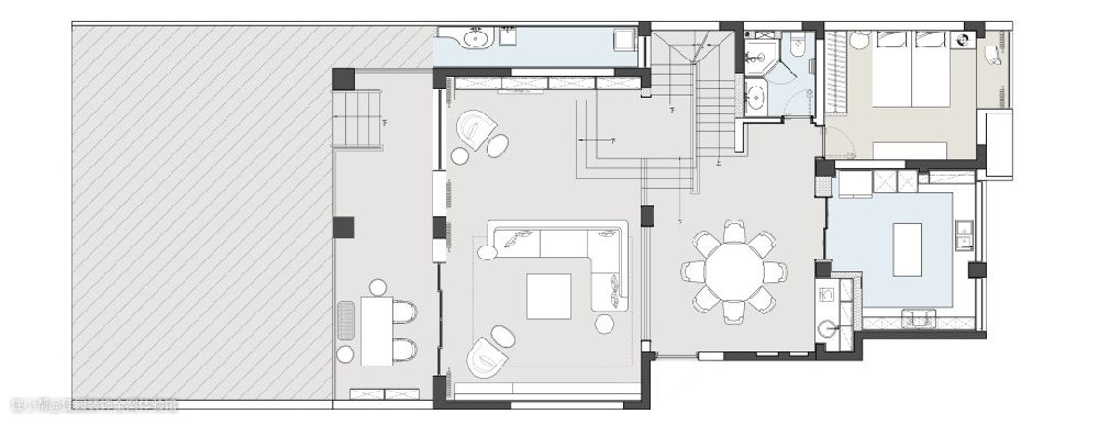
户型图

负一层平面设计图

一层平面设计图

二层平面设计图
客厅

空间最初的入户门厅设置在一楼餐厅旁,业主归家后需要先从负一楼车库出来再通过公共楼梯才能入户,为了解决这种不便,我们将动线进行了调整与优化,把入户门厅移到负一楼车库处,使业主的归家线路更为合理、便利,并利用车库的充裕空间增设大鞋柜与换鞋厅,增加收纳空间的同时,也营造了良好的卫生环境。

为了兼顾负一楼下沉空间的高度,我们在一楼休闲厅的书柜处做了整体抬高的平台,使之与负一楼的楼梯间一起,形成更为错落有致的空间层次感。


客厅以低调内敛的灰色调为主,结庐人境,无车马喧,温文尔雅。简约方正的线条勾勒出家具陈设的清朗俊逸,富于几何的理性魅力。

休闲厅为客厅的补充空间,位于楼梯平台旁,沉稳质感的书柜铺满整面墙,如源头活水般浸润着整个空间,正是“书卷多情似故人,晨昏忧乐每相亲”。
餐厅

厨空间中原有的小窗被改造为两扇大玻璃窗,引入自然光,使室内明亮通透。同时,我们将中厨面积扩大并增设中岛台,在餐厅一侧设置备餐操作台,作为中厨备餐的分流地,沟通餐厅与中厨之间的对话,实用便捷,满足了传统四川家庭的厨房所需。
卧室

二楼主卧的整面玻璃窗引景入画,将小区水景和自家后花园的美景尽收眼底。衣柜做了隐藏处理,让空间简净有序。
儿童房

十岁的女儿正是处在梦幻般的年纪,清新甜美的糖果色,线条柔和的童话拱形门,都在小心翼翼地呵护着孩子的烂漫与童真。


女儿套房包括卧室与书房。书房没有过多的装饰,去繁从简,使女儿能够更加专注、安心地投入学习之中。窗边设置红色的小沙发,方便女儿可以随时凭窗阅读。
书房

毗邻主卧的书房,增设露台,使空间内外贯通,形成了一条顺畅而独特的观景动线,凭窗揽景,极目赏天舒。
其他

在改造入户动线的同时,我们将楼梯原有的单向动线进行了调整,打通负一楼的楼梯间,将其作为连接一楼会客厅和负一楼影视厅的交通枢纽。

我们利用多功能厅与花园的层次落差,引自然光入室,优化了空间的通风和采光,加之暖色调的应用,让空间变得温暖热烈起来,适合约聚好友,暂离繁忙日常,畅快欢娱。


一楼老人房沉静朴素,大气简约,符合老年人的身心需求。我们遵循适老化设计原则,置入可分合的双人床,床垫及床箱可根据需求进行拆解,舒适而实用。逸出容器的倔强枝丫,为素雅的空间,平添几分风骨。