案例欣赏 | 400㎡ 顶级别墅,最纯粹的豪宅设计!
山东逢顺吉装饰有限公司
2021-01-19

优雅不是要传达低调,还是要抵达一个人的精华层。
本案满足了人们对于奢华空间那种趋于本能的需求,同时也照顾到精英家族所习以为常的舒适生活体验。
1F客餐厅


该层主要为社交聚会服务。双层挑空的客厅空间,通过对家具尺寸与布局调整,延续了无可比拟的开阔感。

刻有凹槽的壁柱和壁龛无疑会唤起客人对奢华享受的实质憧憬,大量柔和的灰阶色在各个方面叠合,辅以豪华的材料色调 - 豪华的深色天鹅绒,白色大理石,古董黄铜,手工陶瓷,目之所及一气呵成,和平共处。


客厅茶几的灵感来源于万神庙的外部形状,该茶几一共由45根白色大理石组成,序列式的大理石组合给人正式,庄严的感受。

如何将毫无心意的所谓“贵族欧式”重新演绎,那就是将装饰主义提纯,促使复古与现代的无缝融合,将那些最极致高雅的装饰和日常的材料交织一起。


家族和客人在这里从事各种休闲活动,明媚的阳光传达着最舒心的松弛感,相信这里没有什么会令人沮丧或阴沉。

对装饰主义进行提纯,提取它鲜明的元素,将先锋艺术感融入到家居中 - 从家具的选择,色彩的搭配,以及陈设摆件的归置协调,每一个细节的铺排,彰显出微妙的富裕感之余,亦讲究一丝丝惬意的捕捉。


餐桌上,露珠仿佛随时在流动,朝阳随露珠而始,又随露珠的凋零消逝,宛如一场梦幻的盛宴。
1F套房

一层的套房(长辈房),专门为植物学教授父母设计成植物标本主题房间。

为这个家族设计的人设将通过软装陈设展示于别墅的各个角落,欢迎客人进入他们精神世界。
2F儿童房
二层是男孩房以及女儿房,以《梦游理想世界》为主题。梦境是儿童安置臆想,偏爱,相信,观察,猜测的精神容器。小朋友们梦游般天马行空的思维模式,让他们的生活充满了无限的可能。

男孩的房间就像一座生活实验室,收藏着他对大航海梦的热爱。

桌子上放置着加勒比海盗中的“珍珠号”模型,及小主人制作轮船的手工工具,床右侧的玻璃展柜放置着小主人珍爱的轮船模型。

以艺术感作为出发点,女儿房掌握了法式风格精巧设计的精髓,黑白简约的经典色调和那抹丝绒酒红的巧思运用,让房间充满着趣味性。

墙纸采用进口的手工肌理墙纸,搭配作为壁饰的日本舞扇,两者十足的手工感让人体会到匠人们的严谨与细致。

揉合采光的纱帘营造空间氛围,让寝居蒙上一层甜梦般的朦胧美。
3F主卧
三层是主卧、手工室与大露台,这层最贴近自然,让人联想到古希腊对于自然的崇拜与田园诗的兴盛。设计师以希腊神话里“春之使者”Persephone 作为灵感来源,她就像穆夏笔触中衣香鬓影的四季女神,织锦绸缎间将繁花映衬得更加炽烈。


主卧里,灰绿色的调色板和花卉墙纸,仿佛长在树木上的新芽,生气勃勃。

壁纸的原本是日本画家Toshio Tabuchi 的《山楂花季》,柔和的色彩及质感花纹图案使空间在明亮的光线下更显清新舒适。

我们采用了明亮的木质边柜和樱花艺术品摆件,以现代的方式带来明媚春天感觉,在充斥着日光的日子里,让空间唤起宁静安逸的氛围。


3F书房

三层有一方手工室兼具书房,随处可见的书籍,绘画,版画和折衷的装饰性物品于各处集合,不停加深客人“进入知识分子的豪宅”的印象,却不至于局促不安。



3F露台

在三层露台,裸露的砖色墙面勾搭上室内的随性自然家具陈设,勾勒出度假般轻松的场景。
-1F休闲区



负一层则以《歌剧魅影》为主题,内饰熨烫着舒缓的精致,就像在告诉客人什么才是纯正的奢华,什么才是繁华年代的象征。



“独立于风格之外,构建独特空间”一直秉持着这样的设计理念,以现代方式重新阐释空间体验。对于这座别墅,它是那种一眼之间的“真正的豪宅”,是一件完整的杰作,是一封手写的拜帖,宣告着这个家族对生活的要求与热情。
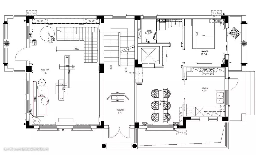
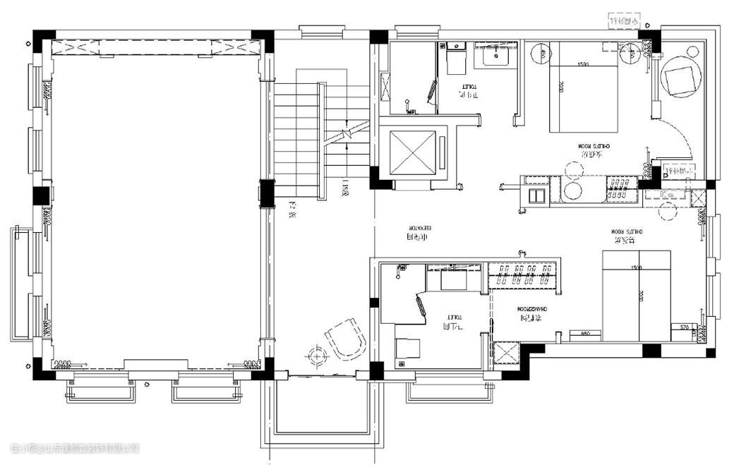
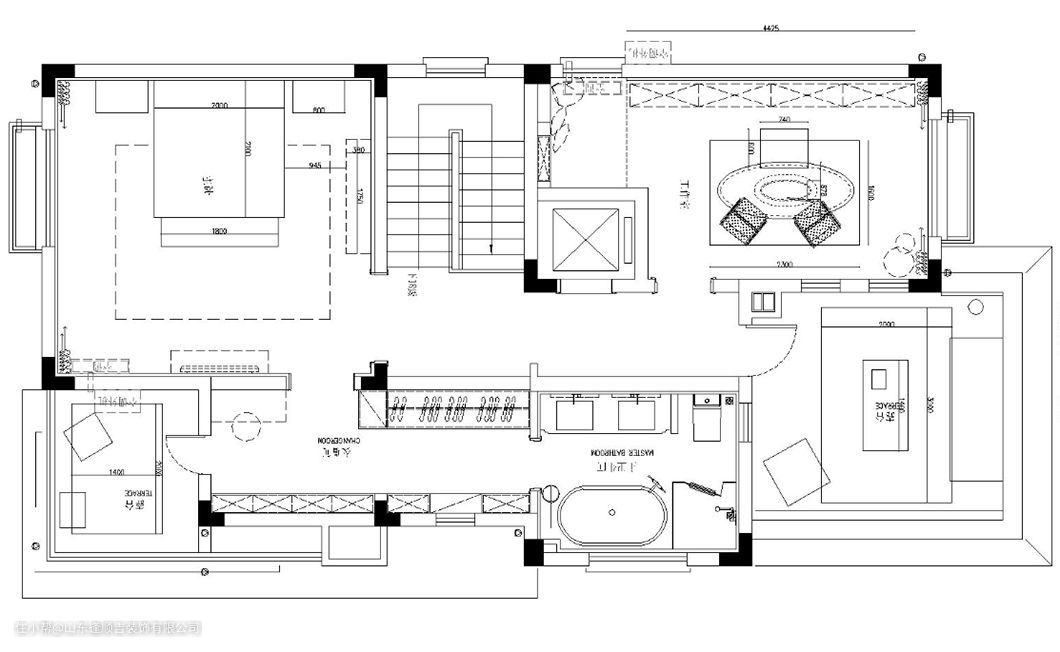
平面图纸

△1F平面图

△2F平面图

△3F平面图

△-1F平面