140㎡新中式风格,让人沉醉的格调之美
蜂鸟巢装饰
2021-01-21
方案说明
新中式风格的设计虽然拥有许多的古典元素,但是实用的材料全会现代化的材料。这样的设计运用了现代的材料和科学技术进行设计成功的,所以选择的装修材料应该尽量的与传统的古典元素形似。同时采用现代化的材料所体现的古典文化,也拥有了不同于传统古典文化的形式。
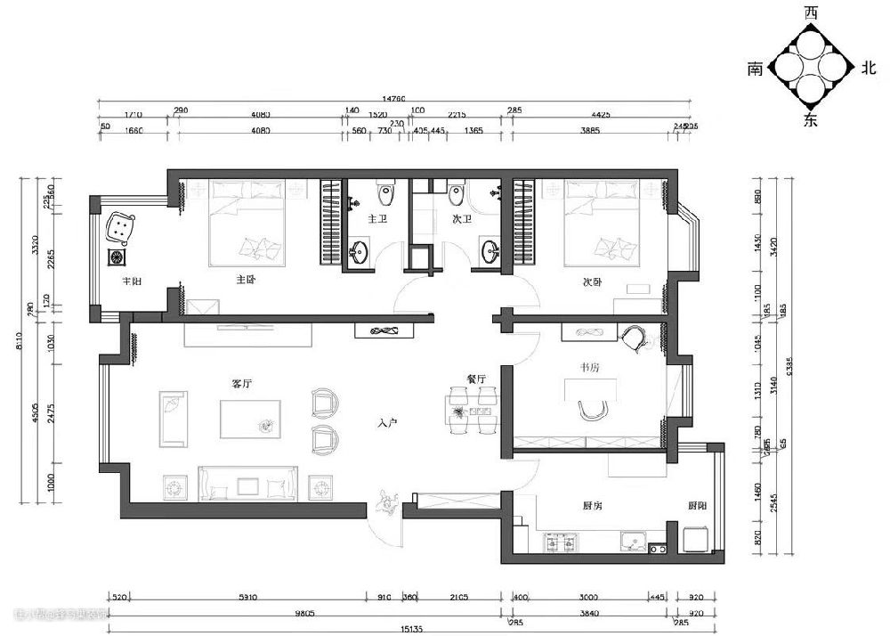
户型图

平面布局图:户型很方正
客厅

客厅和餐厅中间放有艺术挂件

客厅整体以灰色为主,家居是胡桃木,高端大气

简约的风格,配上山水风背景墙加上白色布艺,简约而不简单

窗帘选择蓝色布艺
餐厅

墙上挂画具有中国传统的元素和风格,能够展现出很好的装饰效果。

新中式家具古典、质朴的内涵显现,又符合现代人追求的时尚感、实用性。
卫生间

浴缸和冲淋器的组合能同时满足两代人不同的洗澡习惯
儿童房

色彩以淡雅为主,创造出柔和宁静的气氛,呈现出安静、悦目、舒适、沉稳的格调。

书房

书房布置采用浪漫情趣的插花可以使宁静的卧室富有生活的气息。
其他

新中式风格卧室在色彩方面秉承了传统古典风格的典雅和华贵,但与之不同的是加入了很多现代元素,呈现着时尚的特征。

新中式风格卧室在配饰的选择方面更为简洁,少了许多奢华的装饰,更加流畅地表达出传统文化中的精髓。

为了给居室增添几分暖意,饰以精巧的灯具和雅致的挂画,使整个居室在浓浓古韵中渗透了几许现代气息。