9.4万打造102㎡黑白灰极简主义客厅,奶灰色现代厨房
天津Banana家装
2021-01-21
= 基本信息 =
房屋地址:津南区 仁恒文熙花园
装修类型:毛坯新房首装建筑面积:102㎡ 三室两厅一厨一卫
实际完成费用:9.4万元
设计:Banana家装 主案设计师 –何慧娜
施工:Banana家装 金标施工 – 朱工工程管家:Banana家装 资深监理 – 郑工装修亮点:极简主义客厅、电视背景墙地砖上墙工艺、灰色系现代厨房

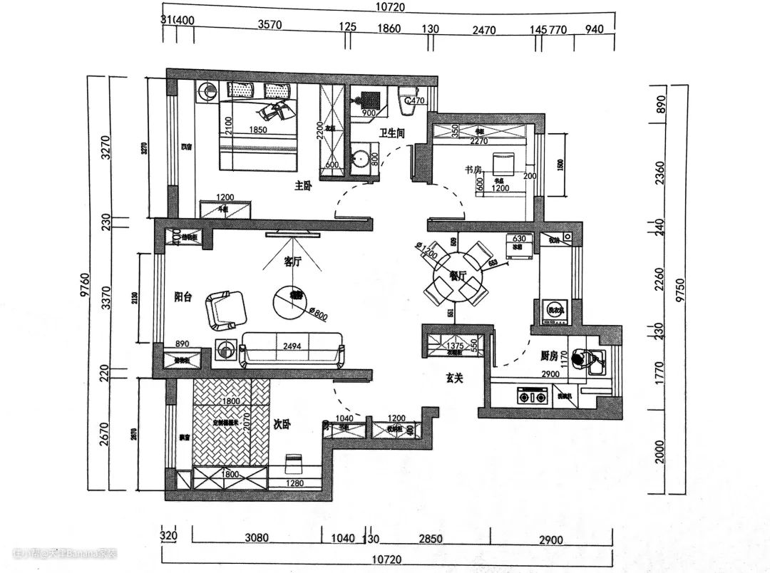
= 平面户型 =

▲ 平面布置图
= 设计综述 =
我们与业主沟通的过程中,了解到业主张女士一家人偏爱浅色系,并且要满足一家三口的储物需求。
主案设计师何老师在客餐厅的设计中,运用了“黑白灰”的纯粹色调,勾勒出极简主义风格。为后期软装搭配留下了无限可能。
其次一家三口的居住需求,对收纳功能有很高的要求。设计师在衣柜、书柜安排了足够的储物空间,以及儿童房入门处设置了一个矮柜,增加储物,不浪费空间。
一个能够满足风格大气简约,又有实用性的房子,就这样和大家见面了~
= 完装效果 =
- 客厅 -
▼

▲ 瓷砖:依诺设计 电视背景墙 地砖上墙工艺
德国进口都芳漆(欧盟蓝天使认证环保)

客厅的整体风格是以“黑白灰”为主调的极简主义风格,沙发背景墙融入了美式石膏线元素,增加墙面装饰性,提升视觉感受。
电视背景墙采用地砖上墙的工艺,打造大理石花纹质感的背景墙,营造出客厅的通透感和品质感。

▲ 客厅整体视角
灰白色为主调,搭配客厅大面积的窗户,使得采光更好,阳光能很好的进入到室内。

客餐厅整体地面瓷砖使用了圈线设计,白色深灰浅灰递进,结合金色美缝,搭配出丰富又融合的视觉效果。
- 餐厅 -
▼

▲ 瓷砖:依诺设计 电视背景墙 地砖上墙工艺
德国进口都芳漆(欧盟蓝天使认证环保)

餐厅与客厅相连,通铺灰色亮面瓷砖+圈线设计,整体色彩简洁明亮。
餐厅连接一个生活阳台,右侧为厨房区域,活动动线方便合理。
- 生活阳台 -
▼


为了充分利用空间,设计师在小阳台的左侧设置了储物柜,右侧摆放洗衣机。满足了更大的生活需求。
- 厨房 -
▼

▲ 橱柜:欧标E0级环保板材柜体 恒茂经典(套餐标配)

▲ 墙面瓷砖:博德精工
厨房依然保持着“黑白灰”的颜色搭配,选用奶灰色肤感膜橱柜,搭配黑色质感把手,打造现代感厨房。
墙面选用干净透亮的白色瓷砖,搭配奶灰色橱柜,厨房整体显得干净整洁。


▲ 台下盆(升级加购)
根据厨房户型,设置了L型橱柜,左侧为洗菜区。水盆升级为台下盆,更加便于整理和清洁台面,不易藏污纳垢。

▲ 地面瓷砖:依诺设计
厨房的地面选用灰咖色瓷砖,实用性上不仅耐脏耐磨,视觉上与橱柜面板颜色相衬,色调和谐。

▲ 厨房门:什木坊 实木复合烤漆门
厨房门选用白色实木复合烤漆门,搭配透明玻璃。白色木门百搭美观,透明玻璃打造通透感。
- 主卧 -
▼

▲ 地板:英仑地板(宜家IKEA样板间专用)
乳胶漆:德国进口都芳漆(欧盟蓝天使认证环保)

▲ 主卧内部视角
主卧区域,色彩变得丰富起来,主色调为甜杏色,也是卧室比较常用的色系。
浪漫、舒适的感觉,填满卧室空间,让人不自觉的放松下来,缓解疲惫。

▲ 英仑地板 时尚人字拼(套餐标配)
卧室选用舒适感强烈的地板,人字拼铺贴,增加地面的变化感,丰富视觉感受。
选择与墙面同色系的地板,利用白色踢脚线进行分割,突显干净柔和的品质感。

▲ 卧室门:什木坊 实木复合烤漆门

卧室门选用了百搭的白色实木烤漆门,带有凹槽造型,丰富木门的质感,显得不会单薄。
搭配黑色优质把手,有颜又有范儿~
- 书房 -
▼

▲地板:英仑地板(宜家IKEA样板间专用)
乳胶漆:德国进口都芳漆(欧盟蓝天使认证环保)

书房色调与主卧统一为甜杏色,加入木质调家具,以及人字拼地板的衬托。
将书房的优雅、静谧很好的体现出来,营造了适合办公或者看书休闲的氛围。

▲ 英仑地板 时尚人字拼(套餐标配)

▲ 书房门:什木坊 实木复合烤漆门

- 儿童房 -
▼

▲地板:英仑地板(宜家IKEA样板间专用)
乳胶漆:德国进口都芳漆(欧盟蓝天使认证环保)

儿童房全屋涂刷了很有少女心的粉色,搭配白色榻榻米设计,满足储物需求,美观性也很好。
用心的为家里的小朋友,营造出幸福的学习、生活氛围。

▲ 卧室门:什木坊 实木复合烤漆门
全屋的柜体以及木门都统一为白色,入门处增加了一组柜体,丰富储物空间,可以将孩子的玩具、书本摆放进去,保证屋内的整洁。

▲ 黑色优质锁具(木门自带)
- 卫生间 -
▼

▲ 卫生间瓷砖:依诺设计(套餐标配)

灰色调卫生间,墙面使用亮面瓷砖,地面使用哑光瓷砖,两种材质碰撞。
亮面瓷砖突显了卫生间的通透质感,地面哑光瓷砖,更加耐脏耐用。

▲ 全屋开关:罗格朗 legrand

▲ 卫生间吊顶:罗格朗 legrand(以上均为套餐标配)

▲ 卫生间门:什木坊 磨砂玻璃门
卫生间使用了私密性更好的磨砂玻璃门,灰白色搭配,保持了全屋的主色调。
以上就是本套102㎡ 极简主义风格,津南区 仁恒文熙花园 新房装修实拍案例的全部内容。更多实拍完装案例,敬请期待。